EXHIBIT 10.2
Published on May 10, 2018
Exhibit 10.2
NET LEASE AGREEMENT
(2777 Orchard Parkway, San Jose, California)
For and in consideration of the rentals, covenants, and conditions hereinafter set forth, Landlord hereby leases to Tenant, and Tenant hereby leases from Landlord, the following described Premises for the term, at the rental and subject to and upon all of the terms, covenants and agreements set forth in this Net Lease Agreement (“Lease”):
1. Summary of Lease Provisions.
1.1 Tenant: Calix, Inc., a Delaware corporation (“Tenant”).
1.2 Landlord: Orchard Parkway San Jose, LLC, a California limited liability company (“Landlord”).
1.3 Effective Date: March 9, 2018.
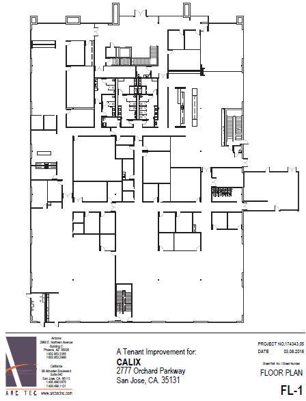
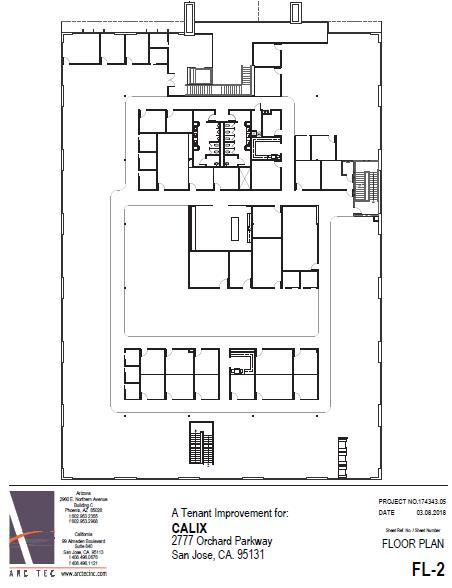
1.4 Premises/Building: That certain space shown cross-hatched (or otherwise identified) on the floor plan attached hereto as Exhibit A, consisting of approximately sixty-four thousand nine hundred ninety-one (64,991) rentable square feet, comprising all of the rentable area of that certain building commonly known as 2777 Orchard Parkway, San Jose, California (“Building”), the location of which Building is shown (or otherwise identified) on the site plan attached hereto as Exhibit B. The Building constitutes a portion of the “Project” described in Paragraph 2.1. (Paragraph 2.1)
1.5 Lease Term: Eighty-seven (87) months (plus the partial month following the Commencement Date if such date is not the first day of a month), unless sooner terminated pursuant to the terms of this Lease. If the Commencement Date is other than the first day of a calendar month, the first month of the Lease Term shall include the remainder of the calendar month in which the Commencement Date occurs plus the first full calendar month thereafter, provided, however, that the inclusion of any partial month in the first full calendar month shall not entitle Tenant to any additional free base Rent. Any free base Rent shall be applied on a daily basis so that Tenant does not receive additional free rent if the first month includes a full calendar month plus any partial month. Subject to the terms and conditions of Paragraph 1.8 below, the base Rent payable by Tenant for the first three (3) full calendar months (and not including any partial month included as part of the first month) of the Lease Term shall be conditionally abated. (Paragraph 3)
1.6 Commencement Date: August 1, 2018, subject to the provisions of Paragraph 3 below. (Paragraph 3)
1.7 Ending Date: The last day of the eighty-seventh (87th) full calendar month following the Commencement Date, unless sooner terminated pursuant to the terms of this Lease. (Paragraph 3)
1
1.8 | Rent: During the Lease Term, Tenant shall pay Rent for the Premises to Landlord in accordance with the schedule set forth immediately below: |
Lease Months During Term | Monthly Rent | Monthly Rental Rates Per Rentable Square Foot (NNN) |
01- 03 | $0.00* | $0.00* |
04-15 | $175,475.70 | $2.70/RSF |
16-27 | $180,674.98 | $2.78/RSF |
28-39 | $185,874.26 | $2.86/RSF |
40-51 | $191,723.45 | $2.95/RSF |
52-63 | $197,572.64 | $3.04/RSF |
64-75 | $203,421.83 | $3.13/RSF |
76-87 | $209,271.02 | $3.22/RSF |
*The Rent payable during each of the first three (3) full calendar months of the Lease Term is actually One Hundred Seventy-five Thousand Four Hundred Seventy-five and 70/100 Dollars ($175,475.70) per month; however, Landlord agrees that such monthly Rent during the first three (3) full months (not including any partial month included in the first month of the Lease Term if the Commencement Date is not the first day of a month) of the Lease Term shall be abated so long as there is no Default by Tenant beyond any applicable notice and cure period for which Landlord terminates this Lease in accordance with its terms as a result thereof. In the event there is a Default by Tenant beyond any applicable notice and cure period for which Landlord terminates this Lease in accordance with its terms as a result thereof, then the un-amortized portion of the abated Rent, and, if applicable, Converted Amount (as defined in the following grammatical paragraph) (which abated Rent and Converted Amount shall be amortized over a period of eighty-seven (87) months) shall become immediately due and payable following written demand of Landlord and Landlord shall be entitled to include such un-amortized portion of the abated Rent and Converted Amount in the amount of rentals that it is otherwise entitled to recover from Tenant under Paragraph 14.2.1; provided, however, that Landlord shall not be entitled to recover such unamortized abated Rent and Converted Amount to the extent that such recovery would be duplicative of amounts that Landlord is otherwise entitled to recover pursuant to California Civil Code §1951.2 and/or §1951.4, as applicable. Tenant’s obligation under this Lease to pay Tenant’s percentage share of Operating Expenses shall commence as of the Commencement Date of this Lease (or, if applicable, the commencement of the Beneficial Occupancy Period described in Paragraph 3.4 below) and shall not be conditionally abated as provided above.
Tenant shall have the one-time right, upon written notice (“Conversion Notice”) given to Landlord on or before the Commencement Date (time being of the essence), to “convert,” as contemplated in this grammatical paragraph below, a portion of the abated Rent described in the immediately-preceding grammatical paragraph, in an amount not
2
to exceed One Hundred Eighty Thousand Dollars ($180,000.00) (such amount being the “Converted Amount Maximum”), to defray any Change Order Costs and/or the cost of performing any Extra Work (both as defined in the Improvement Agreement attached hereto as Exhibit C (the “Improvement Agreement”)). The amount that Tenant elects to convert, if any, shall be set forth in the Conversion Notice (any such amount, subject to the Converted Amount Maximum, being the “Converted Amount”). If Tenant timely delivers a Conversion Notice in accordance with the terms and conditions of this grammatical paragraph above, then: (A) the Converted Amount shall be made available by Landlord to defray any Change Order Costs and/or the costs associated with any Extra Work; and (B) the last occurring installment(s) of abated base Rent shall be reduced, subject to any applicable proration, by the amount equal to the Converted Amount. Solely for purposes of illustration, if Tenant elects to use the Converted Amount Maximum, then: (x) Tenant shall be deemed to have converted the entire third installment of abated base Rent (i.e., One Hundred Seventy-five Thousand Four Hundred Seventy-five and 70/100 Dollars ($175,475.70)), and a portion of the second installment of abated base Rent, in an amount equal to Four Thousand Five Hundred Twenty-four and 30/100 Dollars ($4,524.30); (y) the abated base Rent shall be reduced by such Converted Amount; and (z) Tenant shall pay, on the first (1st) day of the third full calendar month of the Lease Term, (i) the monthly installment of Rent due and owing for the third full calendar month of the Lease Term (i.e., One Hundred Seventy-five Thousand Four Hundred Seventy-five and 70/100 Dollars ($175,475.70)), plus (ii) the amount of Four Thousand Five Hundred Twenty-four and 30/100 Dollars ($4,524.30), with the result that the monthly installments of base Rent shall be abated for only the first full calendar month, and a portion of the second full calendar month (but no portion of the third full calendar month) of the Lease Term.
Concurrently with the execution of this Lease, Tenant shall pay to Landlord the sum of $175,475.70 which shall be credited against the first full month’s Rent payable hereunder.
1.9 Use of Premises: General office, research and development and any other legally permitted uses so long as the Premises are used in each case in compliance with zoning ordinances and other applicable Laws (Paragraph 6)
1.10 Tenant’s percentage share of Operating Expenses: One hundred percent (100.00%) with respect to the Building and sixty-four and eleven one hundredths percent (64.11%) with respect to the Project (Paragraph 12)
1.11 Letter of Credit: Six Hundred Twenty-seven Thousand Eight Hundred Thirteen Dollars and 06/100 Dollars ($627,813.06) (Paragraph 5)
1.12 Addresses for Notices:
To Landlord: Orchard Parkway San Jose, LLC,
c/o South Bay Development Company
1690 Dell Avenue
Campbell, CA 95008
Attn: Scott Trobbe
With a courtesy copy to: Berliner Cohen, LLP
3
Ten Almaden Boulevard, Eleventh Floor
San Jose, CA 95113
Attn: Harry A. Lopez
To Tenant: Calix, Inc.
1035 N. McDowell Boulevard,
Petaluma, CA 94954
Attn: Jim Sanfillippo /Facilities Department
1035 N. McDowell Boulevard,
Petaluma, CA 94954
Attn: Jim Sanfillippo /Facilities Department
With a courtesy copy to:
Calix, Inc.
2777 Orchard Parkway
2777 Orchard Parkway
San Jose, CA 95131
Attn: General Counsel
Attn: General Counsel
CalixLegal@calix.com
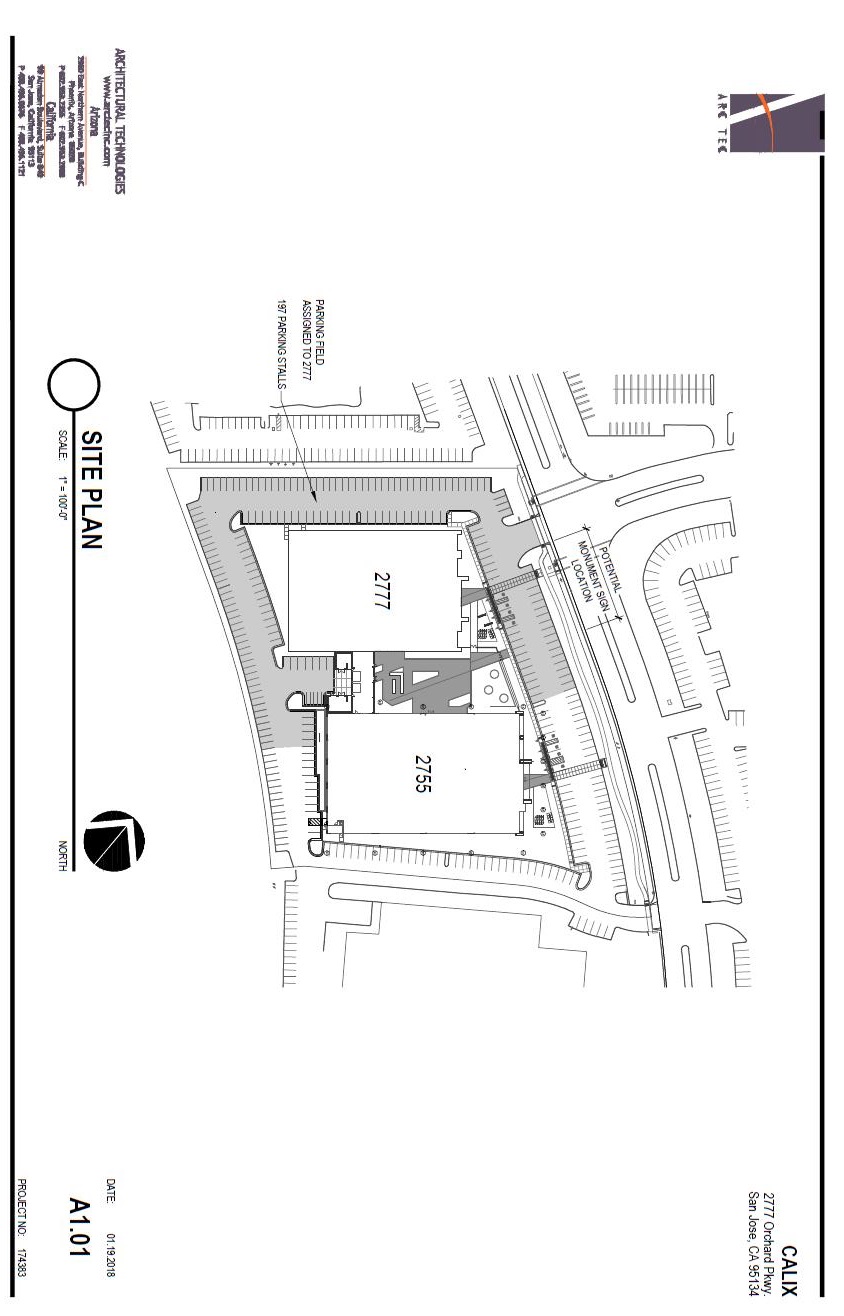
1.13 Right to Use Parking Spaces: All of the parking spaces (i.e., one hundred ninety-seven (197) spaces) within the portion of the Common Area delineated as the “Tenant Parking Area” on the site plan attached hereto as Exhibit B (“Tenant Parking Area”). (Paragraph 11.2).
1.14 Summary Provisions in General. Parenthetical references in this Paragraph 1 to other paragraphs in this Lease are for convenience of reference, and designate some of the other Lease paragraphs where applicable provisions are set forth. All of the terms and conditions of each such referenced paragraph shall be construed to be incorporated within and made a part of each of the above referring Summary of Lease Provisions. In the event of any conflict between any Summary of Lease Provision as set forth above and the balance of the Lease, the latter shall control.
2. Property Leased.
2.1 Premises. Landlord hereby leases to Tenant and Tenant hereby leases from Landlord upon the terms and conditions herein set forth, those certain premises (“Premises”) referred to in Paragraph 1.4 above, consisting of the entire rentable area of the Building, and shown cross-hatched on the floor plan attached hereto as Exhibit A. In addition, Tenant shall have such rights in and to the Common Area (defined in Paragraph 11.1 below) as are more fully described in Paragraph 11.1 below.
The Building (i.e., the building in which the Premises are located) is commonly known as 2777 Orchard Parkway, San Jose, California. The “Land” shall mean and refer to all of the real property described on Exhibit F attached hereto. Any reference in this Lease to the “Parcel” shall be deemed a reference to the Land. The Land, Building, the adjacent building, consisting of approximately thirty-six thousand three hundred eighty-three (36,383) rentable square feet, commonly known as 2755 Orchard Parkway (the “2755 Building”), and any other building(s) or improvement(s) now or hereafter located on the Land are referred to herein collectively as the “Project.” Landlord and Tenant agree that all measurements of area contained in this Lease, including, without limitation, the size of the Premises, Building and Project, are an approximation which Landlord and Tenant agree are reasonable. All such approximate measurements of area contained in this Lease also are conclusively agreed to be correct and
4
binding upon the parties, and any subsequent determination that the area is more or less than shown in this Lease shall not result in a change in any way in the computations of Rentals.
Subject to Tenant’s exclusive right to use the Tenant Parking Area in accordance with the terms and conditions of Paragraph 11.2 below, Landlord reserves the right to grant to tenants of the Project, and to the agents, employees, servants, invitees, contractors, guests, customers and representatives of such tenants or to any other user authorized by Landlord, the nonexclusive right to use the Land for pedestrian and vehicular ingress and egress and vehicular parking.
2.2 Improvements. The leasehold improvements to be constructed by Landlord for Tenant’s use in the Premises are set forth in detail in the Improvement Agreement and such leasehold improvements are collectively referred to therein as the “Tenant Improvement Work”. The Improvement Agreement is incorporated herein by reference. Landlord and Tenant each agree that it is bound by the terms and conditions of the Improvement Agreement and that it shall timely perform its respective obligations thereunder. If a transfer of Landlord’s interest in this Lease (other than as a result of a foreclosure) occurs prior to the substantial completion of the Tenant Improvement Work, Landlord shall cause the transferee thereunder to expressly assume Landlord’s obligation to complete such Tenant Improvement Work pursuant to its express obligations under the Improvement Agreement accruing after the date of such transfer. Except as otherwise expressly provided in this Lease or in the Improvement Agreement, Landlord shall not be obligated to construct or install any leasehold improvements in, on or around the Premises, Building or Project or to provide any tenant improvement allowance to Tenant.
Landlord represents and warrants the following to Tenant, as of the Effective Date:
(i) | Landlord has full power, authority and legal right to (1) execute and deliver this Lease and (2) perform and observe the express provisions of this Lease on the part of the “Landlord” to be performed or observed; |
(ii) | There are no conditions or circumstances, financial or otherwise, that will materially impair Landlord’s ability to perform its obligations under this Lease, including the Improvement Agreement; |
(iii) | Landlord’s execution, delivery, performance and observance of the provisions of this Lease will not result in a breach or violation of (1) any applicable law, (2) any provision of Landlord’s organizational documents, (3) any court order, judgement or decree, or (4) any material agreement or instrument to which Landlord is a party; and |
(iv) | No additional consent, approval or authorization is required for Landlord to enter into, deliver or perform its obligations under this Lease. |
2.3 Acceptance of Premises; Existing Violations; Warranty Period. By taking possession of the Premises, Tenant shall be deemed to have accepted the Premises as being in good and sanitary order, condition and repair and to have accepted the Premises in their condition existing as of the date Tenant takes possession of the Premises, subject to all applicable laws, covenants, conditions, restrictions, easements and other matters of public record and the reasonable rules and regulations from time to time promulgated by Landlord governing the use of any portion of the Project and further, to have accepted tenant improvements to be constructed by Landlord pursuant to the terms of the Improvement Agreement as being completed in accordance with the plans and specifications for such improvements subject only to completion of items on Landlord’s punch list, if applicable.
5
Landlord will use commercially reasonable efforts to complete all punch list items within thirty (30) days of the date of the punch list. Tenant acknowledges that, except as otherwise expressly provided in this Lease, neither Landlord nor any of Landlord’s agents, employees, affiliates, or property manager have made any representation or warranty (express or implied) as to the suitability of the Premises for the conduct of Tenant’s business, the condition of the Building or Premises, the compliance of the Premises with any codes, laws, ordinances, rules or regulations, or the use or occupancy which may be made thereof and Tenant has independently investigated and is satisfied that the Premises are suitable for Tenant’s intended use and that the Building and Premises meet all governmental requirements for such intended use.
Notwithstanding the foregoing, Tenant shall in no event be obligated to correct (and/or incur any cost in connection with the correction of) any Existing Violations (as defined below), to the extent such correction of Existing Violations was required to be performed with respect to the Base Building (as defined below), and/or with respect to the Tenant Improvement Work, in connection with the performance of the Tenant Improvement Work (i.e., at the time such Tenant Improvement Work was performed) pursuant to the terms and conditions of the Improvement Agreement. To the extent the (a) Building Systems and/or Building Structure (both as defined in the following grammatical paragraph) (for purposes hereof, collectively, the “Base Building”) and/or (b) the Tenant Improvement Work, fail(s) to comply with any applicable Laws (as defined in Paragraph 6.1 below) (including the Americans with Disabilities Act of 1990, as amended (“ADA”)) that were in effect with respect to the Base Building, and/or with respect to the Tenant Improvement Work, at the time the Tenant Improvement Work was performed, in all cases as then locally enforced and interpreted, and in all cases without regard to Tenant’s specific use of the Premises, then, solely to the extent any work (including any ADA work) relating to such non-compliance was required to be performed (or would have then been required to be performed had the violation been known by the applicable governmental authority) at the time the Tenant Improvement Work was performed (if applicable, any such required work being “Existing Violations”), then Landlord shall perform such work as may be necessary (in Landlord’s reasonable discretion) to correct any such Existing Violations. Notwithstanding the foregoing, (i) Landlord shall have the right, in Landlord’s reasonable discretion, and at Landlord’s sole cost, to contest the need to perform any work relating to such Existing Violations, including, without limitation, the right to apply for and obtain a waiver or deferment of compliance, the right to assert any and all defenses allowed by law and the right to appeal any decisions, judgments or rulings to the fullest extent permitted by law and (ii) Tenant’s right to enforce Landlord’s obligation to perform (or cause to be performed) any such work relating to Existing Violations shall be limited to circumstances in which non-compliance would (a) materially impair the safety of Tenant’s employees or create a health hazard for Tenant’s employees, (b) materially impair Tenant’s use and occupancy of, or access to, the Premises (or any material portion thereof) for typical and customary general office purposes, and/or (c) impose liability upon Tenant under applicable Laws.
In addition, Landlord hereby agrees, represents and warrants that, as of the Commencement Date (as defined in Paragraph 3.1 below) (“Warranty Commencement Date”) all of the following shall be in good working order and condition (“good working order and condition” shall mean that (i) with respect to sub-clause (y) below, the items in question are operating in accordance with the specifications therefor for normal and customary general office use (and without regard to Tenant’s particular use of the Premises) and (ii) with respect to sub-clauses (x) and (z) below, the items in question comply with the plans and specifications therefor, a copy of which has been provided to Tenant): (x) the structural elements of the Building, including the roof structure (and, for purposes hereof, the roof membrane), foundation, slabs, load-bearing walls, columns, shafts, windows, window frames and all exterior and common area glass and cladding (collectively, “Building Structure”); (y) the mechanical, electrical, plumbing, sanitary sewer, heating, ventilation and air conditioning, fire, life-safety and other systems in and serving the Building (collectively, “Building Systems”); and (z) the Common Area (as defined in Paragraph 11.1 below) (including the redwood trees located along the front of the Project (collectively, the “Redwood Trees”) and other landscaped
6
areas, and the Tenant Parking Area constituting a portion of such Common Area). Commencing upon the Warranty Commencement Date and continuing for a period of three hundred sixty (360) days after such Warranty Commencement Date (such period being the “Warranty Period”), except to the extent caused by or resulting from Tenant’s fault, neglect or misuse, Landlord shall, as Tenant’s sole and exclusive remedy, as soon as reasonably practicable following Landlord’s receipt of Tenant’s reasonably-detailed written notice during the Warranty Period (time being of the essence), perform (or cause to be performed) the repair, replacement, maintenance, adjustment, and/or other work reasonably necessary to address and/or correct, at Landlord’s sole cost and expense, any failure(s) of any of the items described in sub-clauses (x), (y) and (z) of the immediately preceding sentence to be in good working order and condition as of the Warranty Commencement Date (including, to the extent necessary (in the reasonable discretion of Landlord and Tenant), the removal and/or replacement of the Redwood Trees).
2.4 Certified Access Specialist. For purposes of California Civil Code Section 1938, Landlord hereby discloses to Tenant that, as of the Effective Date, to Landlord’s actual knowledge, the Premises have not undergone inspection by a Certified Access Specialist (“CASp”). Pursuant to California Civil Code Section 1938(e), Landlord hereby further discloses to Tenant the following: “A Certified Access Specialist (CASp) can inspect the subject premises and determine whether the subject premises comply with all of the applicable construction-related accessibility standards under state law. Although state law does not require a CASp inspection of the subject premises, the commercial property owner or lessor may not prohibit the lessee or tenant from obtaining a CASp inspection of the subject premises for the occupancy or potential occupancy of the lessee or tenant, if requested by the lessee or tenant. The parties shall mutually agree on the arrangements for the time and manner of the CASp inspection, the payment of the fee for the CASp inspection, and the cost of making any repairs necessary to correct violations of construction-related accessibility standards within the premises.” Notwithstanding the foregoing and/or anything to the contrary contained in this Lease, Landlord and Tenant hereby agree and acknowledge that, in the event Tenant desires to obtain a CASp inspection, then:
(x) Tenant shall provide Landlord with no less than five (5) business days’ prior written notice and, upon receipt of such notice, Landlord shall have the right to, among other things, have one (1) or more representatives present during such inspection.
(y) Tenant hereby agrees and acknowledges that it shall (x) provide Landlord with a copy of any and all findings, reports and/or other materials (collectively, the “CASp Report”) provided by the CASp immediately following Tenant’s receipt thereof, (y) at all times maintain (and cause to be maintained) the CASp Report and its findings (and any and all other materials related thereto) confidential and (z) pay for the CASp inspection and CASp Report at Tenant’s sole cost and expense. If Tenant receives a disability access inspection certificate, as described in subdivision (e) of California Civil Code Section 55.53, in connection with or following any CASp inspection undertaken on behalf, or for the benefit, of Tenant, then Tenant shall cause such certificate to be provided immediately to Landlord.
(z) If the CASp Report identifies any violation(s) of applicable construction-related accessibility standards (“CASp Violation(s)”), Tenant shall immediately provide written notice to Landlord of any and all such CASp Violation(s) (any repairs, modifications and/or other work necessary to correct such CASp Violation(s) being collectively referred to herein as the “CASp Work”). If any CASp Violation(s) are identified in such CASp Report, then (i) to the extent such CASp Violation(s) constitute work that Landlord was required to perform in connection with the Tenant Improvement Work in order to comply with applicable Laws (including, but not limited to, the Americans with Disabilities Act of 1990, as amended and locally enforced) in effect as of the date that the Tenant Improvement Work was substantially completed (in all cases without regard to Tenant’s particular use of the Premises, and/or any alterations, additions and/or improvements installed by or on behalf of Tenant),
7
then Landlord shall, at Landlord’s sole cost and expense, perform, or cause to be performed any such CASp Work relating to the Tenant Improvement Work or (ii) with respect to any and all other CASp Violation(s) identified in such CASp Report, including, without limitation, any and all such CASp Violations relating to any alterations, additions and/or improvements installed by or on behalf of Tenant, Tenant shall, at Tenant’s sole cost and expense, perform, or cause to be performed, the CASp Work relating thereto. The party that is required to perform the CASp Work in question (the “Performing Party”) shall commence (or cause the commencement of) such CASp Work no later than fifteen (15) business days after Landlord’s receipt of the CASp Report in accordance with the terms and conditions of this Lease (including, without limitation, Paragraph 13 below). The Performing Party shall diligently prosecute (or cause to be diligently prosecuted) to completion all CASp Work which is the obligation of such Performing Party in a lien free, good and workmanlike manner, and, upon completion, obtain an updated CASp Report showing that the Premises then comply with all applicable construction-related accessibility standards. Any and all cost and expense associated with the CASp Work and/or the updated CASp Report (which the Performing Party shall provide to the other party immediately upon the Performing Party’s receipt thereof) shall be at the Performing Party’s sole cost and expense.
Without limiting the generality of the foregoing, Tenant hereby agrees and acknowledges that: (i) Tenant assumes all risk of, and agrees that Landlord shall not be liable for, any and all loss, cost, damage, expense and liability (including, without limitation, court costs and reasonable attorneys' fees) sustained as a result of the Premises not having been inspected by a Certified Access Specialist (CASp); and (ii) Landlord may require, as a condition to its consent to any alterations, additions or improvements, that the same be inspected and certified by a Certified Access Specialist (CASp) (following completion) as meeting all applicable construction-related accessibility standards pursuant to California Civil Code Section 55.53.
3. Term.
3.1 Commencement Date. The term of this Lease (“Lease Term”) shall be for the period specified in Paragraph 1.5 above, commencing on the later of (such later date being the “Commencement Date”): (A) August 1, 2018; or (B) the earlier of (i) the date that the Tenant Improvement Work is substantially completed or (ii) the date Tenant occupies the Premises (or any portion thereof) for the conduct of its business operations therein. Such improvements shall be deemed to be substantially completed upon the occurrence of the earlier of the following:
(a) The date on which all improvements to be constructed by Landlord have been substantially completed except for punch list items which do not prevent Tenant from using the Premises for its intended use, and either the appropriate governmental approvals for occupancy of the Premises (which shall include, without limitation, a temporary certificate of occupancy or its equivalent) have been issued or all building permits issued with respect to such improvements have been signed off by the applicable building inspectors; or
(b) The date on which all improvements to be constructed by Landlord would have been substantially completed except for such work as Landlord is required to perform but which is delayed because of any of the following (each, a “Tenant Delay”): (i) fault or neglect of Tenant, its agents, contractors and/or subcontractors (including, without limitation, delays caused by work done on the Premises by Tenant, its agents, contractors and/or subcontractors); (ii) delays caused by change orders requested by Tenant or required because of any errors or omissions in plans submitted by Tenant (except to the extent due to the fault or neglect of Landlord); (iii) such work as Landlord is required to perform but cannot complete until Tenant performs necessary portions of construction work it has expressly elected or is expressly required to do, in each case within the timeframe that Tenant has been expressly provided to complete such construction work; and (iv) any event constituting a Tenant
8
Delay as described in the Improvement Agreement attached hereto as Exhibit C. Notwithstanding the foregoing, no Tenant Delay shall be deemed to have occurred unless and until Landlord shall have sent Tenant a reasonably-detailed notice of the action, inaction or event that constitutes a Tenant Delay and Tenant shall not have cured the same within two (2) business days after Tenant receives such reasonably-detailed notice.
If, pursuant to the express terms and conditions of Paragraph 3.1(b) above, the improvements to be constructed by Landlord are deemed to be substantially completed before such improvements are actually substantially completed, then Tenant acknowledges that: (x) the Commencement Date shall be deemed to have occurred, and therefore Tenant’s obligation to pay Rentals (subject to the conditional abatement of base Rent referred to in Paragraph 1.8 above) shall be deemed to have commenced on such earlier date, and not the date of actual completion of such improvements (but in no event prior to August 1, 2018); (y) the improvements to be constructed by Landlord shall be deemed to be substantially completed one (1) day earlier than the date of actual substantial completion for each day that actual completion is delayed by reason of a Tenant Delay; and (z) as soon as possible following the actual Commencement Date, Landlord shall provide to Tenant a reasonably-detailed statement of the number of days of Tenant Delays, and the conditional abatement of base Rent referred to in Paragraph 1.8 above shall be shortened by the same number of days.
When the Commencement Date and Ending Date become ascertainable, Landlord and Tenant shall specify the same in writing, in the form of the attached Exhibit D, which writing shall be deemed incorporated herein. Tenant’s failure to execute and deliver the letter attached hereto as Exhibit D within ten (10) business days after Tenant receives written request from Landlord to do so (subject to any legitimate disagreement by Tenant with the terms thereof, which both parties shall use reasonable efforts to resolve) shall be a Default by Tenant hereunder. The expiration of the Lease Term or sooner termination of this Lease is referred to herein as the “Lease Termination.”
3.2 Delay of Commencement Date. Landlord shall not be liable for any damage or loss incurred by Tenant for Landlord’s failure for whatever cause to deliver possession of the Premises by any particular date (including the scheduled Commencement Date (i.e., August 1, 2018)), nor shall this Lease be void or voidable on account of such failure to deliver possession of the Premises to Tenant, on or before August 1, 2018, or any other date, with the Tenant Improvement Work substantially completed. Notwithstanding the foregoing, if the Commencement Date has not occurred on or before the later of (i) August 1, 2018 or (ii) the date that is one hundred twelve (112) days after the date that Landlord’s contractor shall have obtained any and all building permit(s) and/or approval(s) deemed necessary or desirable by Landlord to commence the performance of the Tenant Improvement Work (the expiration of such one hundred twelve (112) day period being the “One-For-One Rent Credit Trigger Date”) for any reason other than Tenant Delay and/or any Force Majeure Delay (as defined in Paragraph 7.1 of the Improvement Agreement) (it being the intent of the parties that such One-For-One Rent Credit Trigger Date shall be extended one (1) day for each day of any such Tenant Delay and/or Force Majeure Delay), then, as Tenant’s sole and exclusive remedy as a result thereof, Tenant shall receive a credit against the Rent due with respect to the Premises (any such amount being the “One-for-One Rent Credit”), which One-for-One Rent Credit shall be in the form of an extension of the conditional abatement of base Rent referred to in Paragraph 1.8 above, equal to one (1) day for each day that shall have elapsed between the One-For-One Rent Credit Trigger Date and the Commencement Date.
3.3 FF&E Installation Period. Prior to the Commencement Date of the Lease, Tenant and its approved contractors shall have the right to enter the Premises solely to (i) install Tenant’s furniture and furnishings and Tenant’s telephone and telecommunication wiring and cabling in the Premises, and (ii) subject to the provisions of Paragraph 13 below, construct or install in the Premises (a) the equipment, and related wiring and cabling, necessary to provide an uninterrupted power supply (also known as a “UPS” equipment) to all server room circuits
9
located in the Premises and/or (b) a Tenant Security System (as defined in Paragraph 13 below); provided that such entry or performance of work shall not delay or interfere in any manner with the construction of any remaining improvements required to be constructed by Landlord in the Premises pursuant to Exhibit C attached hereto. Any entry into the Premises by Tenant, its agents, contractors, and employees, prior to the Commencement Date of the Lease shall be at the sole risk of Tenant, and Tenant hereby releases Landlord, its agents, contractors, subcontractors and employees, from any and all liability, cost, damage, lien, action, cause of action, judgment, expense, and claim for injury (including bodily injury, death, or property damage) incurred or suffered by Tenant in or about the Premises during the construction of any improvements in the Premises by Landlord or its contractors or subcontractors prior to the Commencement Date of this Lease. If Tenant or any of its agents, employees or contractors enter the Premises prior to the Commencement Date solely for the purposes specifically described in this Paragraph 3.3 above, then such entry shall be upon all the terms and conditions of this Lease (including, without limitation, Tenant’s obligations regarding indemnity and insurance), except that Tenant shall not be obligated to pay monthly Rent or Tenant’s percentage share of Operating Expenses prior to the Commencement Date. The preceding to the contrary notwithstanding, if any work or other activities in the Premises by Tenant or any of its agents, employees, contractors or other representatives prior to the Commencement Date would actually and materially interfere with or delay the completion of the work to be performed by Landlord pursuant to Exhibit C attached hereto, Tenant shall, upon Landlord’s request, cease, or cause to be ceased, such work or activities, as the case may be, until such time that Tenant may resume its work or activities without so interfering with Landlord’s or its contractors’ or subcontractors’ completion of the work required to be performed by Landlord pursuant to such Exhibit C.
3.4 Beneficial Occupancy Period. If the Tenant Improvement Work is substantially complete before August 1, 2018, then (A) during the period elapsing between such date that the Tenant Improvement Work is substantially completed and July 31, 2018 (such period, if applicable, being the “Beneficial Occupancy Period”), Tenant shall be entitled, in Tenant’s sole and absolute discretion, to conduct business operations from the Premises and (B) the Commencement Date shall be conclusively deemed to be August 1, 2018. If Tenant elects to conduct business operations prior to August 1, 2018 in accordance with the immediately-preceding sentence, other than the obligation to pay Rent with respect to the Premises pursuant to Paragraph 1.8 of this Lease, during such Beneficial Occupancy Period, all of Tenant’s obligations hereunder with respect to the Premises (including, without limitation, Tenant’s obligation to pay (x) Tenant’s percentage share of Operating Expenses, (y) the cost and expense of any Services (as defined in Paragraph 9 below) and (z) any and all other Additional Rent) shall apply during such Beneficial Occupancy Period.
4. Rent.
4.1 Rent. Tenant shall pay to Landlord as rent for the Premises (“Rent”), in advance, on the first day of each calendar month, commencing on the Commencement Date (subject to the conditional Rent abatement referred to in Paragraph 1.8 above) and continuing throughout the Lease Term the Rent set forth in Paragraph 1.8 above. Rent shall be prorated, based on thirty (30) days per month, for any partial month during the Lease Term. Rent shall be payable without deduction, offset, prior notice or demand in lawful money of the United States to Landlord at the address herein specified for purposes of notice or to such other persons or such other places as Landlord may designate in writing.
4.2 Late Charge. Tenant hereby acknowledges that late payment by Tenant to Landlord of Rent will cause Landlord to incur costs not contemplated by this Lease, the exact amount of which will be extremely difficult to ascertain. Such costs include, but are not limited to, processing and accounting charges and late charges which may be imposed on Landlord by the terms of any mortgage or deed of trust covering the Premises. Accordingly,
10
Tenant shall pay to Landlord, as Additional Rent (as defined in Paragraph 4.3 below), without the necessity of prior notice or demand, a late charge equal to five percent (5%) of any installment of Rent or other amount payable by Tenant under this Lease which is not received by Landlord within five (5) business days after the due date for such installment or payment. Notwithstanding the foregoing, Landlord will not assess a late charge until Landlord has given written notice of such late payment for the first late payment in any twelve (12) month period and after Tenant has not cured such late payment within five (5) business days from receipt of such notice. No other notices will be required during the following twelve (12) months for a late charge to be imposed or incurred. The parties hereby agree that such late charge represents a fair and reasonable estimate of the costs Landlord will incur by reason of late payment by Tenant. In no event shall this provision for a late charge be deemed to grant to Tenant a grace period or extension of time within which to pay any installment of Rent or other sum payable by Tenant to Landlord under this Lease or prevent Landlord from exercising any right or remedy available to Landlord upon Tenant’s failure to pay such installment of Rent or other sum when due, including without limitation the right to terminate this Lease. In the event any installment of Rent or other sum payable by Tenant to Landlord under this Lease is not received by Landlord by the due date for such installment, such installment shall bear interest at the annual rate set forth in Paragraph 34 below, commencing on the date such Rent installment or other sum payable under this Lease is due and continuing until such installment or other sum payable under this Lease is paid in full.
4.3 Additional Rent. All taxes, charges, costs and expenses and other sums which Tenant is required to pay hereunder (together with all interest and charges that may accrue thereon in the event of Tenant’s failure to pay the same), and all damages, costs and reasonable expenses which Landlord may incur by reason of any Default by Tenant shall be deemed to be additional rent hereunder (“Additional Rent”). Additional Rent shall accrue commencing on the Commencement Date. Unless otherwise expressly stated herein, all Additional Rent shall be due and payable by Tenant within thirty (30) days after the date of Landlord’s invoice for the same. In the event of nonpayment by Tenant of any Additional Rent, Landlord shall have all the rights and remedies with respect thereto as Landlord has for the nonpayment of Rent. The term “Rentals” as used in this Lease shall mean Rent and Additional Rent.
5. Letter of Credit. Within five (5) business days after Tenant’s execution of this Lease, Tenant shall deliver to Landlord an irrevocable, unconditional, transferable, standby letter of credit running in favor of Landlord issued by a bank satisfactory to Landlord in its sole and absolute discretion in the amount of Six Hundred Twenty-seven Thousand Eight Hundred Thirteen Dollars and 06/100 Dollars ($627,813.06) (“Letter of Credit Amount”). Tenant’s failure to deliver a letter of credit, in the Letter of Credit Amount, in accordance with the terms and conditions of this Paragraph 5, within such five (5) business day period shall be deemed an automatic “Default by Tenant” (as contemplated in Paragraph 14.1 below). The letter of credit shall be irrevocable for one (1) year and shall provide that it is automatically renewable for one (1) year periods ending not earlier than one hundred twenty (120) days after the expiration of the Lease Term (including, to the extent one or both Option(s) is/are exercised, the applicable Option Term(s) (both as defined in Paragraph 44 below)) without any action whatsoever on the part of Landlord; provided that the issuing bank shall have the right not to renew said letter of credit on written notice to Landlord received by Landlord not less than sixty (60) days prior to the expiration of the then current term thereof (it being understood, however, that the privilege of the issuing bank not to renew said letter of credit shall not, in any event, diminish the obligation of Tenant to maintain such irrevocable letter of credit with Landlord through the date which is sixty (60) days after the date of Landlord’s receipt of such notice). In the event the issuing bank elects not to renew the letter of credit, Tenant shall provide Landlord with a substitute letter of credit which meets all of the criteria contained herein. No fees applicable to the letter of credit shall be charged to Landlord.
The form and terms of the letter of credit shall be acceptable to Landlord in all respects in Landlord’s sole and absolute discretion and shall provide, among other things, in effect that:
11
1. Landlord, or its agent, member, manager, partner or other authorized party shall have the right to draw down an amount up to the face amount of the letter of credit upon the presentation to the issuing bank of a sight draft only in the form attached hereto as Exhibit G and incorporated herein by reference, which sight draft shall include a statement that such amount is due to Landlord or its then lender under the terms and conditions of this Lease.
2. The letter of credit shall permit partial draws, and provide that draws thereunder will be honored upon presentation by Landlord without conditions at a location in Santa Clara County.
3. The letter of credit will be honored by the issuing bank without inquiry as to the accuracy thereof and regardless of whether Tenant disputes the content of such statement.
4. In the event of a transfer of Landlord’s interest in the Lease, Landlord shall have the right to transfer the letter of credit to the transferee and thereupon Landlord shall, without any further agreement between the parties, be released by Tenant from all liability therefor, and it is agreed that the provisions hereof shall apply to every transfer or assignment of said letter of credit to a new Landlord.
If, as a result of any draw on the letter of credit the letter of credit shall be reduced, Tenant shall, within ten (10) business days thereafter, provide Landlord with additional letter(s) of credit in the form required hereunder and issued by a bank acceptable to Landlord in its sole and absolute discretion in an amount equal to the deficiency so that the letter(s) of credit shall be in the aggregate Letter of Credit Amount (i.e., Six Hundred Twenty-seven Thousand Eight Hundred Thirteen Dollars and 06/100 Dollars ($627,813.06)). Tenant’s failure to timely deliver such new letter(s) of credit shall be a Default by Tenant (or default) under this Lease and shall entitle Landlord to draw upon the balance of the letter of credit in full and retain the cash proceeds thereof in accordance with this Paragraph 5. Landlord shall not be required to keep any such amount separate from its general funds and Tenant shall not be entitled to interest on such funds.
If Tenant breaches or fails to perform any obligation or covenant under or of this Lease, including, but not limited to, the payment of monthly Rent or Additional Rent, or if Tenant has filed a voluntary petition (or an involuntary petition has been filed against Tenant) under any chapter of the U.S. Bankruptcy Code, or any similar state law, Landlord may (but shall not be required to) draw upon all or any part of the Letter of Credit and use, apply, or retain all or any part of the cash proceeds thereof for the payment of any sums in default, or to compensate Landlord for any other loss or damage which Landlord may suffer (or that Landlord reasonably estimates it may suffer) by reason of Tenant’s default, Landlord may (but shall not be required to) draw upon all or any part of the letter of credit and use, apply, or retain all or any part of the cash proceeds thereof for the payment of any sums in default, or to compensate Landlord for any other loss or damage which Landlord may suffer by reason of Tenant’s default. So long as Tenant is not in default at the expiration or termination of this Lease, the letter of credit, and/or any cash proceeds thereof, then held by Landlord shall be returned to Tenant (or any assignee of Tenant), not later than thirty (30) days after Tenant (and all persons and entities claiming an interest in the Premises by, under or through Tenant) have vacated the Premises, provided that subsequent to the expiration or earlier termination of this Lease, Landlord may draw upon the letter of credit and retain therefrom sums in default or breach by Tenant under this Lease, and/or amounts to compensate Landlord for any other loss or damage which Landlord may suffer by reason of Tenant’s default or breach, including, without limitation, (a) any and all amounts permitted by California Civil Code Section 1950.7, and (b) such sums as Landlord reasonably estimates will thereafter become due by reason of Tenant’s default or breach, if any, under this Lease. Landlord and Tenant hereby agree that Landlord may, in addition, claim those sums necessary to compensate Landlord for any other foreseeable or unforeseeable loss or damage caused by the act or omission of Tenant or Tenant’s officers, members, partners, agents, employees,
12
independent contractors or invitees or the default of Tenant under this Lease. Without limiting the generality of the preceding sentence, Landlord and Tenant hereby agree that Landlord may, in addition, claim and retain from the cash proceeds of the Letter of Credit those sums necessary to compensate Landlord for any other foreseeable or unforeseeable loss or damage caused by the act or omission of Tenant or Tenant’s officers, agents, employees, independent contractors or invitees or the default of Tenant under this Lease, including, without limitation, the unamortized portion of any leasing commissions and tenant improvement costs (which commissions and tenant improvement costs shall be amortized over the Lease Term) incurred by Landlord in connection with this Lease and any damages to which Landlord is entitled under applicable law (including, without limitation, §1951.2 of the California Civil Code) as a result of Tenant’s default under this Lease. Tenant hereby waives the provisions of California Civil Code § 1950.7, and all other provisions of law now or hereafter in force, that provide that Landlord may claim from a security deposit only those sums reasonably necessary to remedy defaults in the payment of rent, to repair damage caused by Tenant, or to clean the Premises.
Without limiting the generality of the foregoing, if the letter of credit expires earlier than one hundred twenty (120) days after the expiration of the Lease Term (including, to the extent one or both Option(s) is/are exercised, the applicable Option Term(s)), or the issuing bank notifies Landlord that it shall not renew the letter of credit, Landlord will accept a renewal thereof or substitute letter of credit (such renewal or substitute letter of credit to be in effect and delivered to Landlord not later than thirty (30) days prior to the expiration of the letter of credit then held by Landlord), irrevocable and automatically renewable as above provided to one hundred twenty (120) days after expiration of the Lease Term (including, to the extent one or both Option(s) is/are exercised, the applicable Option Term(s)) upon the same terms as the expiring letter of credit or such other terms as may be acceptable to Landlord. Such replacement or substitute letter of credit shall be in a form and issued by a bank meeting the requirements above. However, (a) if the letter of credit is not timely renewed or a substitute letter of credit is not timely received, (b) or if Tenant fails to maintain the letter of credit in the amount and terms set forth in this Paragraph 5, Tenant, at least thirty (30) days prior to the expiration of the letter of credit, or immediately upon its failure to comply with each and every term of this Paragraph 5 must deposit with Landlord a substitute letter of credit in a form and from a bank or other financial institution acceptable to Landlord in its sole and absolute discretion in the Letter of Credit Amount. The letter of credit shall be held subject to and in accordance with, all of the terms and conditions set forth in this Paragraph 5. In the event Tenant does not timely deposit with Landlord the substitute letter of credit, Landlord, or its agent, member, manager, partner or other authorized party may present the current letter of credit to the issuing bank, in accordance with the terms of this Paragraph 5 and the entire sum secured thereby shall be paid to Landlord.
If the bank that issued the letter of credit then held by Landlord enters into any form of regulatory or governmental receivership or other similar regulatory or governmental proceeding, including any receivership instituted or commenced by the Federal Deposit Insurance Corporation (“FDIC”), or is otherwise declared insolvent or downgraded by the FDIC, then Tenant shall deliver to Landlord a substitute letter of credit in the same form and amount of the initial letter of credit and from a banking institution acceptable to Landlord in its sole and absolute discretion within five (5) business days following the date the bank that issued the letter of credit then held by Landlord enters into any form of regulatory or governmental receivership or other similar regulatory or governmental proceeding, including any receivership instituted or commenced by the FDIC, or is otherwise declared insolvent or downgraded by the FDIC. In the event Tenant does not timely deposit with Landlord the substitute letter of credit referred to in the immediately preceding sentence, Landlord, or its agent, member, manager, partner or other authorized party may present the current letter of credit to the issuing bank, in accordance with the terms of this Paragraph 5 and the entire sum secured thereby shall be paid to Landlord.
13
Tenant agrees that Landlord shall have the right to pledge any letter of credit received by it hereunder or otherwise grant a security interest therein to Landlord’s lender, and shall have the right to deliver the letter of credit or all or any portion of the proceeds of such letter of credit to Landlord’s lender in connection therewith, provided such letter of credit (or proceeds thereof) shall only be used in accordance with, and shall continue to be governed by, the terms and provisions of this Paragraph 5. At Landlord’s election, the letter of credit may name Landlord’s lender as a beneficiary, or as a co-beneficiary with Landlord and/or may require that Landlord’s lender sign the certification required to be presented for any draw against the letter of credit and shall contain such other provisions reasonably requested by Landlord or Landlord’s lender. In addition, upon termination or transfer of Landlord’s interest in this Lease, within ten (10) business days after request by Landlord or Landlord’s successor, Tenant shall, as Landlord or Landlord’s successor shall request, either cause the letter of credit to be amended to name Landlord’s successor as the party entitled to draw down on the letter of credit subject to the terms and conditions of this Paragraph 5 and deliver such amendment to the requesting party, or shall obtain and deliver to the requesting party a new letter of credit meeting the requirements of this Paragraph 5, naming Landlord’s successor as the party entitled to draw down on the letter of credit subject to the terms and conditions of this Paragraph 5. At Landlord’s election, within ten (10) business days after request by Landlord, Tenant shall either cause the letter of credit to be amended to name Landlord’s lender as the beneficiary, or as a co-beneficiary with Landlord, and/or as a cosigner of any certification presented for a draws down of the letter of credit, and to incorporate other changes to the letter of credit reasonably requested by Landlord’s lender which do not alter or increase in any material respect Tenant’s obligations under this Paragraph 5 or in connection with the letter of credit, or shall obtain a new letter of credit to effectuate such changes and otherwise meeting the requirements of this Paragraph 5 above. Any reasonable fee due in connection with the transfer of Landlord’s rights as beneficiary under the letter of credit to a successor Landlord or to Landlord’s lender, or in connection with an amendment to, or substitution of, a letter of credit, shall be paid by Tenant to the financial institution owed such fee upon demand. If Tenant fails to execute any documents necessary to transfer the letter of credit to Landlord’s successor-in-interest or Landlord’s lender within ten (10) business days after Landlord’s written request therefor, Landlord may draw upon the letter of credit and transfer the cash proceeds thereof to Landlord’s successor-in-interest or lender to be held as collateral for Tenant’s performance hereunder and applied, if applicable, in accordance with and subject to the terms and conditions of this Paragraph 5. Tenant agrees that Landlord shall be released from liability for the return of the letter of credit or the unapplied cash proceeds thereof or any accounting of such proceeds upon a transfer of the letter of credit or unapplied cash proceeds thereof to Landlord’s successor-in-interest or lender in accordance with the foregoing procedure.
Notwithstanding the foregoing, so long as no default by Tenant shall have occurred under this Lease, if Tenant shall have achieved three (3) consecutive quarters of net profit after taxes (but before non-cash items) (for purposes hereof, “Sustained Profitability”) (provided that Tenant shall have first provided written evidence reasonably satisfactory to Landlord (including, without limitation, audited financial statements) establishing that such Sustained Profitability has been achieved during the three (3) consecutive quarters in question), then, in such event, the Letter of Credit Amount required hereunder shall be reduced to the amount of Two Hundred Nine Thousand Two Hundred Seventy-one and 02/100 Dollars ($209,271.02) as of the first (1st) day of the calendar month following the date that Landlord shall have affirmatively and unequivocally confirmed in writing that Tenant has provided reasonably satisfactory evidence of such Sustained Profitability. Following such reduction (if applicable) in the Letter of Credit Amount, Tenant shall be entitled (in Tenant’s reasonable discretion) to deliver to Landlord either (i) an amendment to the then-existing Letter of Credit or (ii) a replacement Letter Credit, which amendment to, or replacement of, the Letter of Credit shall otherwise satisfy the terms and conditions of this Paragraph 5.
14
Landlord and Tenant acknowledge and agree that in no event or circumstance shall the Letter of Credit or any renewal thereof or any proceeds thereof be (a) deemed to be or treated as a “security deposit” within the meaning of California Civil Code Section 1950.7, (b) subject to the terms of such Section 1950.7, or (c) intended to serve as a “security deposit” within the meaning of such Section 1950.7. The parties acknowledge and agree that the Letter of Credit is not intended to serve as a security deposit, and that said Section 1950.7 and any and all other laws, rules and regulations applicable to security deposits (“Security Deposit Laws”) shall have no applicability or relevancy thereto. Each party waives any and all rights, duties and obligations such party may now or, in the future, will have relating to or arising from the Security Deposit Laws and all other provisions of law now or hereafter in force, that provide that Landlord may claim from a security deposit only those sums reasonably necessary to remedy defaults in the payment of rent, to repair damage caused by Tenant, or to clean the Premises. Tenant hereby agrees and acknowledges that (a) the Letter of Credit constitutes a separate and independent contract between Landlord and the issuing bank, (b) Tenant is not a third party beneficiary of such contract, (c) Tenant has no property interest whatsoever in the Letter of Credit or the proceeds thereof, and (d) neither Tenant, any trustee, nor Tenant’s bankruptcy estate shall have the right to restrict or limit Landlord’s claims or rights to the Letter of Credit or the proceeds thereof by application of Section 502(b)(6) of the U.S. Bankruptcy Code, or otherwise.
6. Use of Premises.
6.1 Permitted Uses. Tenant shall use the Premises and the Common Area only in conformance with applicable governmental or quasi-governmental laws, statutes, orders, regulations, rules, ordinances and other requirements now or hereafter in effect (collectively, “Laws”) for the purposes set forth in Paragraph 1.9 above, and for no other purpose without the prior written consent of Landlord, which consent shall not be unreasonably withheld or delayed, provided that such other use is in conformance with applicable Laws. Landlord makes no representation or warranty that Tenant’s intended use of the Premises is permitted under zoning and/or other Laws applicable to the Premises and it is Tenant’s responsibility to ensure that Tenant’s intended use of the Premises is, in fact, permitted under such zoning and other Laws applicable to the Premises. Tenant acknowledges and agrees that Landlord has selected or will be selecting tenants for the Building and Project in order to produce a mix of tenant uses compatible and consistent with the design integrity of the Building and Project and with other uses of the Building and Project; provided, however, the selection of other tenants for the Building and Project shall be in Landlord’s sole discretion and Landlord in making such selection shall not be deemed to be warranting that any use of the Building or Project made by any such tenant is compatible or consistent with the design integrity of the Building or Project or other uses of the Building or Project. Any change in use of the Premises or the Common Area by Tenant without the prior written consent of Landlord shall be a Default by Tenant. Tenant and Tenant’s agents shall comply with the provisions of any Declaration of Covenants, Conditions, and Restrictions affecting the Premises and the Common Area.
During the Lease Term, Tenant shall be permitted to have access to the Premises 24 hours per day, 7 days per week, 365 days per year, unless such access is prohibited, limited or restricted by any governmental or quasi-governmental law, statute, ordinance, rule or regulation, damage to or destruction or condemnation of the Premises, Building or other portion of the Project or due to an emergency.
6.2 Tenant to Comply with Legal Requirements. To the extent that any of the following are triggered by (i) Tenant’s particular use of the Premises, (ii) any improvements to the Premises installed by or for Tenant during the Lease Term, (iii) Tenant’s application for any permit or governmental approval, or (iv) the negligence or willful misconduct of Tenant or any of its agents, employees, contractors, subcontractors, affiliates, licensees, invitees, sublessees or other representatives, Tenant shall, at its sole cost, promptly comply with all Laws relating to or affecting Tenant’s particular use or occupancy of the Premises or use of the Common Area,
15
now in force, or which may hereafter be in force, including without limitation those relating to utility usage and load or number of permissible occupants or users of the Premises, whether or not the same are now contemplated by the parties; with the provisions of all recorded documents affecting the Premises or the Common Area insofar as the same relate to or affect Tenant’s particular use or occupancy of the Premises or use of the Common Area; and with the requirements of any board of fire underwriters (or similar body now or hereafter constituted) relating to or affecting Tenant’s particular use or occupancy of the Premises or use of the Common Area. Tenant’s obligations pursuant to this Paragraph 6.2 shall include, without limitation, but only to the extent that any of the following are triggered by (i) Tenant’s particular use of the Premises, (ii) any improvements to the Premises installed by or for Tenant during the Lease Term, (iii) Tenant’s application for any permit or governmental approval, or (iv) the negligence or willful misconduct of Tenant or any of its agents, employees, contractors, subcontractors, affiliates, licensees, invitees, sublessees or other representatives, maintaining or restoring the Premises and making structural and non-structural alterations and additions in compliance and conformity with all Laws and recorded documents, each relating to Tenant’s particular use or occupancy of the Premises during the Lease Term, Tenant’s application for any permit or governmental approval or alterations, additions or improvements made to the Premises by Tenant. Any alterations or additions undertaken by Tenant pursuant to this Paragraph 6.2 shall be subject to the requirements of Paragraph 13.1 below. At Landlord’s option, Landlord may make the required alteration, addition or change, and Tenant shall pay the cost thereof as Additional Rent. With respect to any structural alterations or additions as may be hereafter required with respect to the Building, Premises, or Common Area due to a change in laws and unrelated to Tenant’s specific use of the Premises or the Common Area, Tenant’s application(s) for any permit or governmental approval or Tenant’s alterations, additions or improvements to the Premises, the cost thereof shall be amortized at the lesser of (i) the annual rate of interest charged on the loan obtained by Landlord to finance the applicable structural alteration(s), addition(s) or improvement(s) (or if Landlord does not obtain a loan to finance such structural alteration(s), addition(s) or improvement(s), then at three percent (3%) above the prime rate or reference rate published in the Wall Street Journal (or if such rate is not published in the Wall Street Journal, then the prime rate or reference rate established by a national bank selected by Landlord)), or (ii) the maximum rate permitted by law, over the useful life of the alteration or addition, and Tenant shall pay its percentage share (as defined in Paragraph 1.10 above) of such monthly amortized cost on the first day of each month (prorated for any partial month) from the date of installation or repair through Lease Termination.
At Tenant’s reasonable request and upon Landlord’s approval, which shall not be unreasonably withheld or delayed, Landlord shall without charge sign, but without any obligation to incur any expenses and without liability to Landlord, applications for all permits and other instruments that may be necessary or appropriate for the use of the Premises as contemplated herein and in accordance with Legal Requirements and the terms and conditions of this Lease. Tenant shall obtain prior to taking possession of the Premises any permits, licenses or other authorizations required for the lawful operation of its business at the Premises. The judgment of any court of competent jurisdiction or the admission of Tenant in any action or proceeding against Tenant, regardless of whether Landlord is a party thereto or not, that Tenant has violated such Law or recorded document relating to Tenant’s particular use or occupancy of the Premises or use of the Common Area shall be conclusive of the fact of such violation by Tenant.
6.3 Prohibited Uses. Tenant and Tenant’s agents shall not commit or suffer to be committed any waste upon the Premises. Tenant and Tenant’s agents shall not do or permit anything to be done in or about the Premises, Building, Project or Common Area which will in any way obstruct or interfere with the rights of any other tenants of the Project, other authorized users of the Common Area, or occupants of neighboring property, or injure or annoy them. Tenant shall not conduct or permit any auction or sale open to the public to be held or conducted on or about the Premises, Building, Project or Common Area. Tenant and Tenant’s agents shall not use or allow the Premises to be used for any unlawful, immoral or hazardous purpose or any purpose not permitted by
16
this Lease, nor shall Tenant or Tenant’s agents cause, maintain, or permit any nuisance in, on or about the Premises, Building, Project or Common Area. Tenant shall not overload existing electrical systems or other mechanical equipment servicing the Building, impair the efficient operation of the sprinkler system or the heating, ventilation or air conditioning equipment within or servicing the Building or damage, overload or corrode the sanitary sewer system. Tenant and Tenant’s agents shall not do or permit anything to be done in or about the Premises nor bring or keep anything in the Premises which will in any way increase the rate of any insurance upon any portion of the Project or any of its contents, or cause a cancellation of any insurance policy covering any portion of the Project or any of its contents, nor shall Tenant or Tenant’s agents keep, use or sell or permit to be kept, used or sold in or about the Premises any articles which may be prohibited by a standard form policy of fire insurance. In the event the rate of any insurance upon any portion of the Project or any of its contents is increased because of Tenant’s particular use of the Premises or that of Tenant’s agents, Tenant shall pay, as Additional Rent, the full cost of such increase; provided, however this provision shall in no event be deemed to constitute a waiver of Landlord’s right to declare a default hereunder by reason of the act or conduct of Tenant or Tenant’s agents causing such increase or of any other rights or remedies of Landlord in connection therewith. Tenant and Tenant’s agents shall not place any loads upon the floor, walls or ceiling of the Premises which would endanger the Building or the structural elements thereof or of the Premises, nor place any harmful liquids in the drainage system of the Building or Common Area. No waste materials or refuse shall be dumped upon or permitted to remain upon any part of the Project except in enclosed trash containers designated for that purpose by Landlord. No materials, supplies, equipment, finished products (or semi-finished products), raw materials, or other articles of any nature shall be stored upon, or be permitted to remain on, any portion of the Project outside the Premises.
6.4 Hazardous Materials. Neither Tenant nor Tenant’s agents shall permit the introduction, placement, use, storage, manufacture, transportation, release or disposition (collectively “Release”) of any Hazardous Material(s) (defined below) on or about any portion of the Project without the prior written consent of Landlord, which consent may be withheld in the sole and absolute discretion of Landlord without any requirement of reasonableness in the exercise of that discretion. Notwithstanding the immediately preceding sentence to the contrary, Tenant may use de minimis quantities of the types of materials which are technically classified as Hazardous Materials but commonly used in domestic or office use to the extent not in an amount, which, either individually or cumulatively, would be a “reportable quantity” under any applicable Law and such other Hazardous Materials as are commonly used in connection with, and necessary for the operation of, Tenant’s business and which Landlord receives notice prior to such Hazardous Materials being brought onto the Premises and which Landlord consents in writing may be brought onto the Premises, provided in each case such use is in compliance with all applicable Laws. Tenant covenants that, at its sole cost and expense, Tenant will comply, and cause its agents, employees, contractors, sublessees, licensees and invitees to comply, with all applicable Laws with respect to the Release by Tenant, its agents, employees, contractors, sublessees, licensees or invitees of such permitted Hazardous Materials. Any Release beyond the scope allowed in this paragraph shall be subject to Landlord’s prior consent, which may be withheld in Landlord’s sole and absolute discretion, and shall require an amendment to the Lease in the event Landlord does consent which shall set forth the materials, scope of use, indemnification and any other matter required by Landlord in Landlord’s sole and absolute discretion. Tenant shall indemnify, defend and hold Landlord and Landlord’s agents, members and lenders harmless from and against any and all claims, losses, damages, liabilities, actions, causes of action, clean up and remediation costs, penalties, liens, costs and/or expenses arising in connection with the Release of Hazardous Materials in violation of Hazardous Materials Laws by Tenant, Tenant’s agents or any other person using the Premises with Tenant’s knowledge and consent or authorization. Tenant’s obligation to defend, hold harmless and indemnify pursuant to this Paragraph 6.4 shall survive Lease Termination.
17
The foregoing indemnity shall not apply to, and Tenant shall not be responsible for, the presence of Hazardous Materials on, under, or about the Premises, Building or Common Area to the extent caused by any third parties (i.e. persons or entities other than Tenant or its agents, employees, affiliates, contractors, subcontractors, sublessees, licensees, invitees, and other representatives) or by Landlord or Landlord’s employees, agents or contractors unless and to the extent such Hazardous Materials are exacerbated by the acts of Tenant or any of Tenant’s agents, employees, affiliates, contractors, invitees, licensees, sublessees or other representatives.
As used in this Lease, the term “Hazardous Materials” means any chemical, substance, waste or material which has been or is hereafter determined by any federal, state or local governmental authority to be capable of posing risk of injury to health or safety, including without limitation, those substances included within the definitions of “hazardous substances,” “hazardous materials,” “toxic substances,” or “solid waste” under the Comprehensive Environmental Response, Compensation, and Liability Act of 1980, the Resource Conservation and Recovery Act of 1976, and the Hazardous Materials Transportation Act, as amended, and in the regulations promulgated pursuant to said laws; those substances defined as “hazardous wastes” in section 25117 of the California Health & Safety Code, or as “hazardous substances” in section 25316 of the California Health & Safety Code, as amended, and in the regulations promulgated pursuant to said laws; those substances listed in the United States Department of Transportation Table (49 CFR 172.101 and amendments thereto) or designated by the Environmental Protection Agency (or any successor agency) as hazardous substances (see, e.g., 40 CFR Part 302 and amendments thereto); such other substances, materials and wastes which are or become regulated or become classified as hazardous or toxic under any Laws, including without limitation the California Health & Safety Code, Division 20, and Title 26 of the California Code of Regulations; and any material, waste or substance which is (i) petroleum, (ii) asbestos, (iii) polychlorinated biphenyls, (iv) designated as a “hazardous substance” pursuant to section 311 of the Clean Water Act of 1977, 33 U.S.C. sections 1251 et seq. (33 U.S.C. § 1321) or listed pursuant to section 307 of the Clean Water Act of 1977 (33 U.S.C. § 1317), as amended; (v) flammable explosives; (vi) radioactive materials; or (vii) radon gas.
Landlord shall have the right, upon reasonable advance notice to Tenant, to inspect, investigate, sample and/or monitor the Premises, the Building and Common Area, including any soil, water, groundwater, or other sampling, to the extent reasonably necessary to determine whether Tenant is complying with the terms of this Lease with respect to Hazardous Materials. In connection therewith, Tenant shall provide Landlord with reasonable access to all portions of the Premises; provided, however, that Landlord shall avoid any unreasonable interference with the operation of Tenant’s business on the Premises. In the event Tenant has violated any of its covenants or agreements set forth in this Paragraph 6.4 or it is determined that Tenant has discharged or released Hazardous Materials in, on or under the Premises or any other portion of the Project, then all costs incurred by Landlord in performing such inspections, investigation, sampling and/or monitoring shall be reimbursed by Tenant to Landlord as Additional Rent within ten (10) days after Landlord’s demand for payment. Tenant’s obligations under the immediately preceding sentence shall survive the expiration or earlier termination of this Lease.
Landlord represents and warrants to Tenant that, except as otherwise disclosed in that certain Phase 1 Environmental Site Assessment report, dated May 6, 2015, prepared by Geoligica, Inc., to Landlord’s current actual knowledge, Landlord has not received any written notice from any governmental authority that any use, storage, treatment, or transportation of Hazardous Materials to, from, or on the Premises has been in material violation of any applicable environmental laws, ordinances, rules or regulations. For purposes of the immediately preceding sentence, the phrase “to Landlord’s current actual knowledge,” shall mean the current actual knowledge of David Andris as of the date of execution of this Lease by Landlord, without any investigation or duty of inquiry, and without any knowledge of any other person being imputed to David Andris. David Andris (i) has been an employee of South Bay Development Co., the entity engaged as the property manager that manages the Real Property, for
18
approximately twenty-two (22) years, which property management entity is an affiliate of the limited liability company constituting the Landlord under this Lease, (ii) is a member of the limited liability company constituting the Landlord under this Lease and (iii) is the member of such limited liability company who is most familiar with the environmental condition of the Premises. Neither Landlord nor David Andris shall be charged with constructive, inquiry, imputed or deemed knowledge. In the event of any breach of any representation or warranty of Landlord set forth in this paragraph, Tenant agrees that David Andris shall not be personally liable for any damages, losses, liabilities, claims, costs or expenses suffered or incurred by Tenant in connection with such breach of such representation or warranty.
7. Taxes.
7.1 Personal Property Taxes. Tenant shall cause Tenant’s trade fixtures, equipment, furnishings, furniture, merchandise, inventory, machinery, appliances and other personal property installed or located on the Premises (collectively the “personal property”) to be assessed and billed separately from the Land and the Building. Tenant shall pay before delinquency any and all taxes, assessments and public charges levied, assessed or imposed upon or against Tenant’s personal property. If any of Tenant’s personal property shall be assessed with the Land or the Building, Tenant shall pay to Landlord, as Additional Rent, the amounts attributable to Tenant’s personal property within thirty (30) days after receipt of a written statement from Landlord setting forth the amount of such taxes, assessments and public charges attributable to Tenant’s personal property. Tenant shall comply with the provisions of any Law which requires Tenant to file a report of Tenant’s personal property located on the Premises.
7.2 Other Taxes Payable Separately by Tenant. Tenant shall pay (or reimburse Landlord, as Additional Rent, if Landlord is assessed), prior to delinquency or within thirty (30) days after receipt of Landlord’s statement thereof, any and all taxes, levies, assessments or surcharges payable by Landlord or Tenant and relating to this Lease or the Premises (other than Landlord’s net income, succession, transfer, gift, franchise, estate or inheritance taxes, and Taxes, as that term is defined in Paragraph 7.3(a) below, payable as an Operating Expense), whether or not now customary or within the contemplation of the parties hereto, whether or not now in force or which may hereafter become effective, including but not limited to taxes:
(a) Upon, allocable to, or measured by the area of the Premises or the Rentals payable hereunder, including without limitation any gross rental receipts, excise, or other tax levied by the state, any political subdivision thereof, city or federal government with respect to the receipt of such Rentals;
(b) Upon or with respect to the use, possession occupancy, leasing, operation and management of the Premises or any portion thereof;
(c) Upon this transaction or any document to which Tenant is a party creating or transferring an interest or an estate in the Premises; or
(d) Imposed as a means of controlling or abating environmental pollution or the use of energy or any natural resource (including without limitation gas, electricity or water), including, without limitation, any parking taxes, levies or charges or vehicular regulations imposed by any governmental agency. Tenant shall also pay, prior to delinquency, all privilege, sales, excise, use, business, occupation, or other taxes, assessments, license fees, or charges levied, assessed or imposed upon Tenant’s business operations conducted at the Premises.
In the event any such taxes are payable by Landlord and it shall not be lawful for Tenant to reimburse Landlord for such taxes, then the Rentals payable hereunder shall be increased to net Landlord the same net
19
Rental after imposition of any such tax upon Landlord as would have been payable to Landlord prior to the imposition of any such tax.
7.3 Common Taxes.
(a) Definition of Taxes. The term “Taxes” as used in this Lease shall collectively mean (to the extent any of the following are not paid by Tenant pursuant to Paragraphs 7.1 and 7.2 above) all real estate taxes and general and special assessments (including, but not limited to, assessments for public improvements or benefit); personal property taxes; taxes based on vehicles utilizing parking areas on the Land; taxes computed or based on rental income or on the square footage of the Premises or the Building (including without limitation any municipal business tax but excluding federal, state and municipal net income taxes); increases in real property taxes arising from a change in ownership of the Project, or applicable portion thereof, or new construction; environmental surcharges; excise taxes; gross rental receipts taxes; sales and/or use taxes; employee taxes; water and sewer taxes, levies, assessments and other charges in the nature of taxes or assessments (including, but not limited to, assessments for public improvements or benefit); and all other governmental, quasi-governmental or special district impositions of any kind and nature whatsoever; regardless of whether any of the foregoing are now customary or within the contemplation of the parties hereto and regardless of whether resulting from increased rate and/or valuation, or whether extraordinary or ordinary, general or special, unforeseen or foreseen, or similar or dissimilar to any of the foregoing and which during the Lease Term are laid, levied, assessed or imposed upon Landlord with respect to the Project, or applicable portion thereof (other than Landlord’s net income, succession, transfer, gift, franchise, estate or inheritance taxes) and/or become a lien upon or chargeable against any portion of the Project under or by virtue of any present or future laws, statutes, ordinances, regulations, or other requirements of any governmental, quasi-governmental or special district authority whatsoever. The term “environmental surcharges” shall include any and all expenses, taxes, charges or penalties imposed by the Federal Department of Energy, Federal Environmental Protection Agency, the Federal Clean Air Act, or any regulations promulgated thereunder, or imposed by any other local, state or federal governmental agency or entity now or hereafter vested with the power to impose taxes, assessments or other types of surcharges as a means of controlling or abating environmental pollution or the use of energy or any natural resource in regard to the use, operation or occupancy of the Project. The term “Taxes” shall include (to the extent the same are not paid by Tenant pursuant to Paragraphs 7.1 and 7.2 above), without limitation, all taxes, assessments, levies, fees, impositions or charges levied, imposed, assessed, measured, or based in any manner whatsoever upon or with respect to the use, possession, occupancy, leasing, operation or management of the Project or in lieu of or equivalent to any Taxes set forth in this Paragraph 7.3(a). In the event any such Taxes are payable by Landlord and it shall not be lawful for Tenant to reimburse Landlord for such Taxes, then the Rentals payable hereunder shall be increased to net Landlord the same net Rental after imposition of any such Tax upon Landlord as would have been payable to Landlord prior to the imposition of any such Tax.
(b) Operating Expense. All Taxes which are levied or assessed or which become a lien upon any portion of the Project or which become due or accrue during the Lease Term shall be an Operating Expense, and Tenant shall pay as Additional Rent each month during the Lease Term 1/12th of its annual share of such Taxes, based on Landlord’s estimate thereof, pursuant to Paragraph 12 below. Tenant’s share of Taxes during any partial tax fiscal year(s) within the Lease Term shall be prorated according to the ratio which the number of days during the Lease Term or of actual occupancy of the Premises by Tenant, whichever is greater, during such year bears to 365.
8. Insurance; Indemnity; Waiver.
20
8.1 Insurance by Landlord. Landlord shall, during the Lease Term, procure and keep in force the following insurance, the cost of which shall be an Operating Expense, payable by Tenant pursuant to Paragraph 12 below:
(a) Property Insurance. “Special Form” (formerly known as “all risk”) property insurance, covering the Building and other buildings located within the Project (and improvements located with the Common Area to the extent desired to be insured by Landlord). Such insurance shall be in the full amount of the replacement cost of the foregoing, with reasonable deductible amounts, which deductible amounts shall be an Operating Expense, payable by Tenant pursuant to Paragraph 12. Such insurance may also include rental income insurance, insuring that one hundred percent (100%) of the Rentals (as the same may be adjusted hereunder) will be paid to Landlord for a period of up to twelve (12) months if the Premises are destroyed or damaged, or such longer period as may be determined by Landlord or required by any beneficiary of a deed of trust or any mortgagee of any mortgage affecting the Premises. Landlord may so insure the Project separately, or may insure the Project with other property owned by Landlord which Landlord elects to insure together under the same policy or policies. Landlord shall have the right, but not the obligation, in its sole and absolute discretion, to obtain insurance for such additional perils that Landlord deems appropriate, including, without limitation, coverage for damage by earthquake and/or flood. Such insurance maintained by Landlord as provided herein shall not cover any leasehold improvements installed in the Premises by Tenant at its expense, or Tenant’s equipment, trade fixtures, inventory, fixtures, furniture or furnishings or personal property located on or in the Premises;
(b) Liability Insurance. Commercial general liability (lessor’s risk) insurance against any and all claims for personal injury, death or property damage occurring in or about the Building or the Land. Such insurance shall be on an occurrence basis and shall be in an amount as determined by Landlord; and
(c) Other. Such other insurance as Landlord deems necessary and prudent.
8.2 Insurance by Tenant. Tenant shall, during the Lease Term, at Tenant’s sole cost and expense, procure and keep in force the following insurance:
(a) Personal Property Insurance. “Special Form” or “all risk” property insurance on all leasehold improvements installed in the Premises by Tenant at its expense (if any), and on all equipment, trade fixtures, inventory, fixtures and personal property located on or in the Premises, including improvements or fixtures hereinafter constructed or installed on the Premises by Tenant or Tenant’s agents, employees, contractors or subcontractors. Such insurance shall be in an amount equal to the full replacement cost of the aggregate of the foregoing and shall provide coverage comparable to the coverage in the standard ISO all risk form. Such insurance shall also provide coverage for water damage from back up or overflow from sprinkler leakage.
(b) Liability Insurance. Commercial general liability insurance for the mutual benefit of Landlord and Tenant, against claims for personal injury, death or property damage occurring in or about the Premises and Common Area or arising out of Tenant’s or Tenant’s agents’ use of the Common Area, use or occupancy of the Premises or Tenant’s operations on the Premises. Such insurance shall be on an occurrence basis and have a limit of not less than Five Million Dollars ($5,000,000) per occurrence (inclusive of umbrella coverage). The minimum limits specified above are the minimum amounts required by Landlord, and may be revised by Landlord from time to time to meet changed circumstances, including without limitation to reflect changes consistent with the standards required by other landlords in the county and/or market in which the Premises are located. Such liability insurance shall be primary and not contributing to any insurance available to Landlord, and Landlord’s insurance (if any) shall be in excess thereto. Such insurance shall specifically insure Tenant’s
21
performance of the indemnity, defense and hold harmless agreements contained in Paragraph 8.4, although Tenant’s obligations pursuant to Paragraph 8.4 shall not be limited to the amount of any insurance required of or carried by Tenant under this Paragraph 8.2(b). Tenant shall be responsible for insuring that the amount of insurance maintained by Tenant is sufficient for Tenant’s purposes.
(c) Business Interruption Insurance. Business interruption insurance with limits of liability of $5,000,000.
(d) Business Auto Liability Insurance. Business auto liability covering owned (if any), non-owned and hired vehicles with a limit of not less than $1,000,000 per accident.
(e) Workers Compensation Insurance. Insurance protecting against liability under worker’s compensation laws with limits at least as required by statute.
(f) Other. Such other insurance that is either (i) required by any lender holding a security interest in the Building, or (ii) reasonably required by Landlord and customarily carried by tenants of similar property in similar businesses.
(g) Form of Policies. The policies required to be maintained by Tenant pursuant to Paragraphs 8.2(a), (b), (c) (d), (e) and (f) above shall be with companies having a Best Insurance Guide rating of A- VII or better and be on forms, with deductible amounts (if any), and loss payable clauses (as to the insurance referred to in Paragraph 8.2(a) applicable to leasehold improvements installed by Tenant) reasonably satisfactory to Landlord, shall include Landlord and the beneficiary or mortgagee of any deed of trust or mortgage encumbering the Premises and/or the Land as additional insureds, and shall provide that such parties may, although additional insureds, recover for loss suffered by Tenant’s negligence. Certified copies of certificates of insurance shall be delivered to Landlord prior to the Commencement Date; a new certificate shall be delivered to Landlord prior to the expiration date of the old policy. Tenant shall have the right to provide insurance coverage which it is obligated to carry pursuant to the terms hereof in a blanket policy, provided such blanket policy expressly affords coverage to the Premises and Common Area and to Tenant as required by this Lease. Tenant shall notify Landlord in writing (i) of any delinquency in premium payments (within three (3) business days after Tenant receives any notice of non-payment from its insurer(s)) and (ii) at least thirty (30) days prior to any loss of coverage of any policy. Tenant’s policies shall provide coverage on an occurrence basis and not on a claims made basis. In no event shall the limits of any policies maintained by Tenant be considered as limiting the liability of Tenant under this Lease.
8.3 Failure by Tenant to Obtain Insurance. If Tenant does not take out the insurance required pursuant to Paragraph 8.2 or keep the same in full force and effect, Landlord may, but shall not be obligated to, take out the necessary insurance and pay the premium therefor, and Tenant shall repay to Landlord, as Additional Rent, the amount so paid promptly upon demand. In addition, Landlord may recover from Tenant and Tenant agrees to pay, as Additional Rent, any and all reasonable expenses (including reasonable attorneys’ fees) and damages which Landlord may sustain by reason of the failure of Tenant to obtain and maintain such insurance, it being expressly declared that the expenses and damages of Landlord shall not be limited to the amount of the premiums thereon.
8.4 Indemnification. Tenant shall indemnify, hold harmless, and defend Landlord with competent counsel reasonably satisfactory to Landlord against all claims, liabilities, losses, damages, actions, causes of action, demands, judgments, penalties, costs and expenses arising out of any occurrence in, on or about the Building, Common Area or Land, if caused or contributed to by Tenant or any of Tenant’s agents, or arising out
22
of any occurrence in, upon or at the Premises or on account of the use, condition, or occupancy of the Premises; provided, however, such indemnification, defense and hold harmless obligation shall not be applicable to any claims, losses, damages, expenses or liabilities to the extent arising out of the gross negligence or willful misconduct of Landlord or that of its agents, employees or contractors. Tenant’s indemnification, defense and hold harmless obligations under this Lease shall include and apply to reasonable attorneys’ fees, investigation costs, and other costs actually incurred by Landlord. Tenant shall further indemnify, defend and hold harmless Landlord from and against any and all claims, losses, damages, liabilities or expenses arising from any breach or default in the performance of any obligation on Tenant’s part to be performed under the terms of this Lease; provided, however, such indemnification, defense and hold harmless obligation shall not be applicable to any claims, losses, damages, expenses or liabilities to the extent arising out of the gross negligence or willful misconduct of Landlord or that of its agents, employees or contractors. The provisions of this Paragraph 8.4 shall survive Lease Termination with respect to any damage, injury, liability, claim, death, breach or default occurring prior to such termination. Except as set forth in this Paragraph 8.4, this Lease is made on the express condition that Landlord shall not be liable for, or suffer loss by reason of, injury to person or property, from whatever cause, in any way connected with the condition, use, or occupancy of the Premises specifically including, without limitation, any liability for injury to the person or property of Tenant or Tenant’s agents; provided, however, that the foregoing shall not constitute a waiver of claims for liability for death or personal injury to the extent arising out of the gross negligence or willful misconduct of Landlord or that of its agents, employees or contractors.
8.5 Claims by Tenant. Landlord shall not be liable to Tenant, and Tenant waives all claims against Landlord, for injury or death to any person, damage to any property, or loss of use of any property in any portion of the Project by and from all causes, including without limitation, any defect in any portion of the Project and/or any damage or injury resulting from fire, steam, electricity, gas, water or rain, which may leak or flow from or into any part of the Premises, or from breakage, leakage, obstruction or other defects of pipes, sprinklers, wires, appliances, plumbing, air conditioning or lighting fixtures, whether the damage or injury results from conditions arising upon the Premises or upon other portions of the Project or from other sources; provided, however, that the foregoing shall not constitute a waiver of claims for liability for death or personal injury to the extent arising out of the gross negligence or willful misconduct of Landlord or that of its agents, employees or contractors. Landlord shall not be liable for any damages arising from any act or negligence of any other tenant or user of the Project. Tenant or Tenant’s agents shall immediately notify Landlord in writing of any known defect in the Project. Tenant’s waiver of claims and release of Landlord as provided in this Paragraph 8.5 above shall not apply to claims for liability for death or personal injury to the extent arising out of the gross negligence or willful misconduct of Landlord or that of its agents, employees or contractors. In no event shall Landlord be liable to Tenant for any consequential damages, including without limitation, lost profits, loss of business or lost income.
8.6 Mutual Waiver of Subrogation. Landlord hereby releases Tenant, and Tenant hereby releases Landlord, and their respective officers, agents, employees and servants, from any and all claims or demands of damages, loss, expense or injury to the Project, or to the furnishings, fixtures, equipment, inventory or other property of either Landlord or Tenant in, about or upon the Project, which is caused by or results from perils, events or happenings which are the subject of insurance carried by the respective parties pursuant to this Paragraph 8 and in force at the time of any such loss, whether due to the negligence of the other party or its agents and regardless of cause or origin; provided, however, that such waiver shall be effective only to the extent permitted by the insurance covering such loss, to the extent such insurance is not prejudiced thereby, and to the extent insured against.
9. Utilities. Tenant shall pay during the Lease Term and prior to delinquency all charges for water, gas, light, heat, power, electricity, telephone or other communication service, janitorial service, trash pick-up, sewer
23
and all other services supplied to Tenant or consumed by Tenant on the Premises (collectively the “Services”) and all taxes, levies, fees or surcharges therefor. Prior to the Commencement Date, Tenant shall directly arrange, and directly contract in Tenant’s name, for all Services to be supplied to the Premises. The Commencement Date shall not be delayed by reason of any failure by Tenant to so contract for Services. In the event that any of the Services cannot be separately billed or metered to the Premises, or if any of the Services are not separately metered as of the Commencement Date, the cost of such Services shall be an Operating Expense and Tenant shall pay, as Additional Rent, Tenant’s proportionate share of such cost to Landlord as provided in Paragraph 12 below, except that if any meter services less than the entire Building, Tenant’s proportionate share of the costs measured by such meter shall be based upon the square footage of the gross leasable area in the Premises as a percentage of the total square footage of the gross leasable area of the portion of the Building serviced by such meter. As of the Commencement Date, gas, electricity and water shall be separately metered for the Premises. If Landlord determines that Tenant is using a disproportionate amount of any commonly-metered Services or an amount in excess of the customary amount of any Services ordinarily furnished for use of the Premises in accordance with the uses set forth in Paragraph 6 above, then Landlord may elect to periodically charge Tenant, as Additional Rent, a sum equal to Landlord’s reasonable estimate of the cost of Tenant’s excess use of any or all such Services.
The lack or shortage of any Services due to any cause whatsoever (except for a lack or shortage proximately caused by the gross negligence or willful misconduct Landlord or that of its agents or employees) shall not affect any obligation of Tenant hereunder, and Tenant shall faithfully keep and observe all the terms, conditions and covenants of this Lease and pay all Rentals due hereunder, all without diminution, credit or deduction. Tenant acknowledges and agrees that in no event shall Landlord be liable to Tenant for any consequential damages, such as lost profits, loss of business or lost income, if there is any lack or shortage of any Services or utilities to the Premises.
10. Repairs and Maintenance.
10.1 Landlord’s Responsibilities. Subject to the provisions of Paragraph 15 below, Landlord shall maintain in reasonably good order and repair, and replace if necessary, the structural roof (and roof membrane), structural and exterior walls (including painting thereof), foundations of the Building and subsurface utilities serving the Building. Tenant shall give prompt written notice to Landlord of any known maintenance work required to be made by Landlord pursuant to this Paragraph 10.1. The costs incurred by Landlord pursuant to the provisions of this Paragraph 10.1 shall be paid by Landlord, at Landlord’s sole cost and expense, except that the cost of performing any repairs and/or replacements of the roof membrane and/or repainting shall be an Operating Expense and Tenant shall pay, as Additional Rent, Tenant’s share of such costs relating to the roof membrane and/or repainting to Landlord as provided in Paragraph 12 below; provided, however, if repair or replacement of the structural roof (or roof membrane), structural or exterior walls or foundations of the Building or subsurface utilities is caused by (i) Tenant’s breach of any of Tenant’s obligations under this Lease, (ii) any misuse of the Premises or Building by, or negligence or willful misconduct of, Tenant or any of Tenant’s agents, employees, contractors, subcontractors, invitees, licensees, sublessees or other representatives, then Tenant shall reimburse or pay to Landlord, within thirty (30) days following receipt of a statement or invoice and reasonable back up documentation of such costs, for one hundred percent (100%) of the costs paid or incurred by Landlord to repair or replace the same.
10.2 Tenant’s Responsibilities. Except as expressly provided in Paragraph 10.1 above, Tenant shall, at its sole cost, maintain the entire Premises and every part thereof, including without limitation, windows, window frames, plate glass, freight docks, doors and related hardware, interior walls and partitions, and the electrical, plumbing, lighting, heating, ventilation and air conditioning systems servicing the Premises in good order, condition and repair. Tenant’s obligations with respect to the heating and air conditioning systems of the Premises shall
24
include the replacement of components thereof; however, if an entire HVAC unit(s) shall need to be replaced, then Landlord shall be responsible for replacing such HVAC unit(s) but the cost thereof shall be amortized at the lesser of (i) the annual rate of interest charged on the loan obtained by Landlord to finance the replacement of such HVAC unit(s) (or if Landlord does not obtain a loan to finance such improvement, then at three percent (3%) above the prime rate or reference rate published in the Wall Street Journal (or if such rate is not published in the Wall Street Journal, then the prime rate or reference rate established by a national bank selected by Landlord)), or (ii) the maximum rate permitted by law, over the useful life of the HVAC unit(s) (as reasonably determined by Landlord) of such replacement HVAC unit(s), and shall be paid monthly by Tenant from the date of installation through the first of Lease Termination or the expiration of the useful life of such replacement HVAC unit(s); provided, however, if the replacement is made necessary due to Tenant’s breach of this Lease, any misuse of the Premises or Building by, or negligence or willful misconduct of, Tenant or any of Tenant’s agents, employees, contractors, subcontractors, invitees, licensees, sublessees or other representatives, then Landlord (or Tenant if Landlord designates Tenant in writing to undertake such replacement of the applicable HVAC unit) shall undertake such replacement but the cost of such replacement shall be borne 100% by Tenant and shall be paid by Tenant to Landlord within thirty (30) days following Tenant’s receipt of a written invoice or bill therefor. Tenant shall maintain continuously throughout the Lease Term a service contract for the maintenance of all such HVAC equipment servicing the Premises with a licensed HVAC repair and maintenance contractor approved by Landlord, which contract provides for the periodic inspection and servicing of the HVAC equipment at least once every ninety (90) days during the Lease Term, and Tenant shall provide Landlord with inspection reports no less than quarterly. Tenant shall furnish Landlord with copies of the HVAC service contract(s), which shall provide that they may not be canceled or changed without at least thirty (30) days’ prior written notice to Landlord. Notwithstanding the foregoing, Landlord may elect at any time to assume responsibility for the maintenance, repair and replacement of such HVAC equipment, and the cost thereof shall be included in Operating Expenses charged to Tenant.
If Tenant fails to make repairs or perform maintenance work required of Tenant hereunder within fourteen (14) days after Tenant’s receipt of written notice from Landlord specifying the need for such repairs or maintenance work, Landlord or Landlord’s agents may, in addition to all other rights and remedies available hereunder or by law and without waiving any alternative remedies, enter into the Premises and make such repairs and/or perform such maintenance work. If Landlord makes such repairs and/or performs such maintenance work, Tenant shall reimburse Landlord upon demand and as Additional Rent, for the cost of such repairs and/or maintenance work. Landlord shall use reasonable efforts to avoid causing any inconvenience to Tenant or interference with the use of the Premises by Tenant or Tenant’s agents during the performance of any such repairs or maintenance. Landlord shall have no liability to Tenant for any damage, inconvenience or interference with the use of the Premises by Tenant or Tenant’s agents as a result of Landlord performing any such repairs or maintenance (except to the extent arising out of the gross negligence or willful misconduct Landlord or that of its agents or employees; provided, however, under no circumstances shall Landlord be liable to Tenant for consequential damages, including, without limitation, lost profits, loss of business or lost income). Tenant shall reimburse Landlord, on demand and as Additional Rent, for the cost of damage to the Project caused by Tenant or Tenant’s agents. Tenant expressly waives the benefits of any statute now or hereafter in effect (including without limitation the provisions of subsection 1 of Section 1932, Section 1941 and Section 1942 of the California Civil Code and any similar law, statute or ordinance now or hereafter in effect) which would otherwise afford Tenant the right to make repairs at Landlord’s expense (or to deduct the cost of such repairs from Rentals due hereunder) or to terminate this Lease because of Landlord’s failure to keep the Premises in good and sanitary order.
11. Common Area.
25
11.1 In General. Subject to the terms and conditions of this Lease and such rules and regulations as Landlord may from time to time prescribe, Tenant and Tenant’s agents shall have, in common with the tenant(s) of other buildings located on the Land and other permitted users, the nonexclusive right to use during the Lease Term the access roads, parking areas (subject to Tenant’s exclusive right to use the Tenant Parking Area in accordance with Paragraph 11.2 below), sidewalks, landscaped areas and other facilities on the Land or in the Building designated by Landlord for the general use and convenience of the occupants of the Building and other authorized users, which areas and facilities are referred to herein as the “Common Area.” This right to use the Common Area shall terminate upon Lease Termination. Landlord reserves the right to promulgate such reasonable rules and regulations relating to the use of all or any portion of the Common Area and/or the safety of tenants and occupants of the Project and to amend such rules and regulations from time to time with or without advance notice, as Landlord may deem appropriate for the best interests of the occupants of the Building and other authorized users. Any amendments to the rules and regulations shall be effective as to Tenant, and binding on Tenant, upon delivery of a copy of such rules and regulations to Tenant. Tenant and Tenant’s agents shall observe such rules and regulations, as the same may be amended, and any failure by Tenant or Tenant’s agents to observe and comply with the rules and regulations, as the same may be amended, shall be a Default by Tenant. Landlord shall not be responsible for the nonperformance of the rules and regulations by any tenants or occupants of the Building or other authorized users, nor shall Landlord be liable to Tenant by reason of the noncompliance with or violation of the rules and regulations by any other tenant or user.
Subject to Tenant’s exclusive parking rights with respect to the Tenant Parking Area, Landlord shall at all times have exclusive control of the Common Area. Landlord shall have the right, without the same constituting an actual or constructive eviction and without entitling Tenant to any abatement of rent, to: (i) close any part of the Common Area to whatever extent required in the opinion of Landlord’s counsel to prevent a dedication thereof or the accrual of any prescriptive rights therein; (ii) temporarily close the Common Area to perform maintenance or for any other reason deemed sufficient by Landlord; (iii) subject to Tenant’s exclusive parking rights with respect to the Tenant Parking Area, change the shape, size, location and extent of the Common Area; (iv) subject to Tenant’s exclusive parking rights with respect to the Tenant Parking Area, eliminate from or add to the Project any land or improvement, including multi-deck parking structures; (v) subject to Tenant’s exclusive parking rights with respect to the Tenant Parking Area, make changes to the Common Area including, without limitation, changes in the location of driveways, entrances passageways, doors and doorways, elevators, stairs, restrooms, exits, parking spaces, parking areas, sidewalks or the direction of the flow of traffic and the site of the Common Area; (vi) remove unauthorized persons from the Project; and/or (vii) change the name or address of the Building or Project. Landlord agrees not to make any change in the Common Areas that will materially and adversely interfere with Tenant’s use of the Premises as permitted under this Lease. Tenant shall keep the Common Area clear of all obstructions created or permitted by Tenant. If in the opinion of Landlord unauthorized persons are using any of the Common Area by reason of the presence of Tenant in the Building, Tenant, upon demand of Landlord, shall restrain such unauthorized use by appropriate proceedings. In exercising any such rights regarding the Common Area, Landlord shall make a reasonable effort to minimize any disruption to Tenant’s business. Landlord shall have no obligation to provide guard services or other security measures for the benefit of the Project. Tenant assumes all responsibility for the protection of Tenant and Tenant’s agents from acts of third parties; provided, however, that nothing contained herein shall prevent Landlord, at its sole option, from providing security measures for the Project.
11.2 Tenant Parking Area. Tenant is allocated and Tenant and Tenant’s employees and invitees shall have the exclusive right to use all of the parking spaces located within the portion of the Common Area designated as the “Tenant Parking Area,” as set forth in Paragraph 1.13, and delineated on the site plan attached hereto as Exhibit B, the configuration of which parking spaces may be designated from time to time by Landlord. Neither Tenant nor Tenant’s agents shall at any time use parking spaces in the Project other than those
26
allocated to Tenant within the Tenant Parking Area, or park or permit the parking of their vehicles in any portion of the Land other than the Tenant Parking Area. Notwithstanding the number of parking spaces within the Tenant Parking Area designated for Tenant’s exclusive use, in the event by reason of any Law relating to or affecting parking on the Land, or any other cause beyond Landlord’s reasonable control, Landlord is required to reduce the number of parking spaces on the Land, Landlord shall have the right to proportionately and equitably reduce the number of Tenant’s parking spaces in the Tenant Parking Area and the parking spaces of other tenants of the Project. Landlord reserves the right to promulgate such reasonable rules and regulations relating to the use of such parking areas on the Land as Landlord may deem appropriate. Landlord furthermore reserves the right, after having given Tenant reasonable notice, to have any vehicles owned by Tenant or Tenant’s agents which are parked in violation of the provisions of this Paragraph 11.2 or in violation of Landlord’s rules and regulations relating to parking, to be towed away at the cost of the owner of the towed vehicle. In the event Landlord elects or is required by any law to limit or control parking on the Land, by validation of parking tickets or any other method, Tenant agrees to participate in such validation or other program under such reasonable rules and regulations as are from time to time established by Landlord. Provided that Tenant’s use, occupancy and enjoyment of the Premises or access to the Premises is not unreasonably interfered with, Landlord shall have the right to close, at reasonable times, all or any portion of the Tenant Parking Area for any reasonable purpose, including, without limitation, the prevention of a dedication thereof, or the accrual of rights of any person or public therein. Tenant and Tenant’s agents shall not at any time park or permit the parking of (i) trucks or other vehicles (whether owned by Tenant or other persons) adjacent to any loading areas so as to interfere in any manner with the use of such areas, (ii) Tenant’s or Tenant’s agents’ vehicles or trucks, or the vehicles or trucks of Tenant’s suppliers or others, in any portion of the Tenant Parking Area not designated by Landlord for such use by Tenant, (iii) any inoperative vehicles or equipment on any portion of the Tenant Parking Area or (iv) Tenant’s or Tenant’s agents’ vehicles or trucks, or the vehicles or trucks of Tenant’s suppliers or others, in any portion of the Common Area not constituting the Tenant Parking Area.
11.3 Maintenance by Landlord. Landlord shall maintain the Common Area in good repair and condition as determined by Landlord and shall manage the Common Area in accordance with Landlord’s reasonable and customary standards. The expenditures for such maintenance shall be at the reasonable discretion of Landlord. The cost of such maintenance, operation and management shall be an “Operating Expense,” and Tenant shall pay to Landlord, as Additional Rent, Tenant’s share of such costs as provided in Paragraph 12 below.
12. Operating Expenses.
12.1 Definition. “Operating Expense” or “Operating Expenses” as used in this Lease shall mean and include all items identified in other paragraphs of this Lease as an Operating Expense and the total cost paid or incurred by Landlord for the operation, maintenance, repair, security and management of the Project (except to the extent solely allocable to the 2755 Building), which costs shall include, without limitation: the cost of Services and utilities supplied to the Project (to the extent the same are not (i) separately charged or metered solely to the Building and/or (ii) separately charged or metered solely to the 2755 Building); water; sewage; trash removal; fuel; electricity; heat; lighting systems; fire protection systems; storm drainage and sanitary sewer systems; periodic inspection and regular servicing of the heating, ventilation and air conditioning systems of the Premises (if undertaken, or caused to be undertaken, by Landlord); maintaining, repairing and replacing, if reasonably necessary as determined by Landlord, the roof membrane; property and liability insurance covering the Building (and other buildings located on the Land) and the Project, as applicable, and the Land and any other insurance carried by Landlord pursuant to Paragraph 8 above; deductibles under such insurance policies maintained by Landlord (except that if damage or destruction that causes or triggers payment of such deductible by Landlord is caused or triggered by the act(s), negligence or willful misconduct of Tenant or any of its agents, employees, contractors, subcontractors, invitees, licensees, sublessees or other representatives, then Tenant shall reimburse or pay to Landlord, within
27
thirty (30) days following receipt of a statement or invoice, one hundred percent (100%) of the amount of such deductible payment); window cleaning; cleaning, sweeping, striping, sealing and/or resurfacing of parking and driveway areas; cleaning the Common Area; cleaning and repairing of sidewalks, curbs, stairways; costs related to irrigation systems and Project signs; fees for licenses and permits required for the operation of the Project; the cost of complying with Laws, including, without limitation, maintenance, alterations and repairs required in connection therewith; costs related to landscape maintenance; the cost of contesting the validity or applicability of any governmental enactments which may affect Operating Expenses; all additional costs and expenses incurred by Landlord with respect to the operation, protection, maintenance, repair and replacement of the Project which would be considered a current expense (and not a capital expenditure) pursuant to generally accepted accounting principles; and the costs of the following capital improvements to the Project: (x) capital improvements required to be constructed in order to comply with any Law (excluding hazardous materials Laws) not in effect or applicable to the Project as of the date of this Lease, (y) modification of existing or construction of additional capital improvements or building service equipment for the purpose of reducing the consumption of utility Services or Operating Expenses of the Project, or (z) replacement of capital improvements or building service equipment existing as of the date of this Lease when required because of normal wear and tear. The cost of (i) capital repair items or capital improvements (i.e., items which Landlord is required to capitalize and not expense in the current year for federal income tax purposes), including, without limitation, replacement of the HVAC system serving the Premises and replacement of exterior windows, (ii) replacement of the roof membrane, (iii) resurfacing the parking lot, and (iv) repainting the exterior of the Building, shall be amortized at the lesser of (x) the annual rate of interest charged on the loan obtained by Landlord to finance such improvement (or if Landlord does not obtain a loan to finance such improvement, then at three percent (3%) above the prime rate or reference rate published in the Wall Street Journal (or if such rate is not published in the Wall Street Journal, then the prime rate or reference rate established by a national bank selected by Landlord), or (y) the maximum rate permitted by law, over the useful life of the repair or item, and be paid monthly by Tenant from the date of installation or repair through Lease Termination; provided, however, if the HVAC system serving the Premises, parking areas (including, without limitation, the Tenant Parking Area), exterior windows or roof membrane need to be replaced due to (A) Tenant’s breach of any of Tenant’s obligations under this Lease, (B) any misuse of the HVAC system, parking areas, exterior windows or roof membrane by, or negligence or willful misconduct of, Tenant or any of Tenant’s agents, employees, contractors, subcontractors, invitees, licensees, sublessees or other representatives, then Tenant shall reimburse or pay to Landlord, within thirty (30) days following receipt of a statement or invoice and reasonable back up documentation of such costs, for one hundred percent (100%) of the costs paid or incurred by Landlord to replace such HVAC system, parking areas, exterior windows or roof membrane, as the case may be, less any insurance proceeds received by Landlord allocable to the HVAC system, parking areas, exterior windows or roof membrane.
In addition to Tenant’s obligation to pay to Landlord the Tenant’s percentage share of Operating Expenses as provided herein, Tenant also shall pay to Landlord a management fee, as Additional Rent, on the first day of each month during the Lease Term, in an amount equal to three percent (3%) of the monthly Rent payable by Tenant to Landlord under this Lease.
The specific examples of Operating Expenses stated in this Paragraph 12.1 are in no way intended to and shall not limit the costs comprising Operating Expenses, nor shall such examples be deemed to obligate Landlord to incur such costs or to provide such services or to take such actions except as Landlord may be expressly required in other portions of this Lease, or except as Landlord, in its reasonable discretion, may elect. All reasonable costs incurred by Landlord in good faith for the operation, maintenance, repair, security and management of the Project shall be deemed conclusively binding on Tenant.
28
12.2 Payment of Operating Expenses by Tenant. Prior to the Commencement Date, and annually thereafter, Landlord shall deliver to Tenant an estimate of Operating Expenses for the succeeding year. Tenant’s payment of Operating Expenses shall be based upon Landlord’s estimate of Operating Expenses and shall be payable in equal monthly installments in advance on the first day of each calendar month commencing on the date specified in Paragraph 1.6 and continuing throughout the Lease Term. Tenant shall pay to Landlord, as Additional Rent and without deduction or offset, an amount equal to Tenant’s percentage share (stated in Paragraph 1.10 above) of the Operating Expenses. Alternatively, as Landlord may elect at any time or from time to time, Operating Expenses actually incurred or paid by Landlord but not theretofore billed to Tenant, as invoiced by Landlord shall be payable by Tenant within thirty (30) days after receipt of Landlord’s invoice, but not more often than once each calendar month.
Landlord shall revise its estimate of Operating Expenses on an annual basis, and Landlord may adjust the amount of Tenant’s monthly installment in the event of a material change in Operating Expenses during any year.
Landlord shall furnish Tenant an annual reconciliation statement within one hundred twenty (120) days after each calendar year during the Lease Term (and a statement within one hundred twenty (120) days after Lease Termination) showing the actual Operating Expenses for the period to which Landlord’s estimate pertains and shall concurrently either bill Tenant for the balance due (payable upon demand by Landlord) or credit Tenant’s account for the excess previously paid. Notwithstanding anything to the contrary contained in this Lease, within ninety (90) days after receipt by Tenant of Landlord’s statement of Operating Expenses prepared pursuant to this Paragraph 12.2 for any prior annual period during the Lease Term, any employee of Tenant or a certified public accountant mutually acceptable to Landlord and Tenant (provided such certified public accountant charges for its service on an hourly basis and not based on a percentage of any recovery or similar incentive method) shall have the right to inspect the books of Landlord applicable to Operating Expenses for the immediately preceding year during the business hours of Landlord and upon not less than five (5) business days’ advance notice, at Landlord’s office or, at Landlord’s option, such other location as Landlord reasonably may specify, for the purpose of verifying the information contained in the statement. All expenses of such inspection shall be borne by Tenant. If Tenant’s inspection reveals a discrepancy in the comparative annual reconciliation statement, Tenant shall deliver a copy of the inspection report and supporting calculations to Landlord within thirty (30) days after completion of the inspection. If Tenant and Landlord are unable to resolve the discrepancy within thirty (30) days after receipt of the inspection report, either party may upon written notice to the other have the matter decided by an inspection by an independent certified public accounting firm approved by Landlord and Tenant (the “CPA Firm”), which approval shall not be unreasonably withheld or delayed and the costs associated therewith to be borne by Tenant except as otherwise expressly provided below. If the inspection by the CPA Firm shows that the actual amount of Operating Expenses payable by Tenant is greater than the amount previously paid by Tenant for such accounting period, Tenant shall pay Landlord the difference within thirty (30) days following such determination. If the inspection by the CPA firm shows that the actual amount is less than the amount paid by Tenant, then the difference shall be applied in payment of the next estimated monthly installments of Operating Expenses owing by Tenant, or in the event such accounting follows the expiration of the Lease Term, such difference shall be refunded to Tenant within thirty (30) days following such determination. Except as otherwise provided in this Paragraph 12.2, if the inspection by the CPA firm shows that Tenant has been overcharged by more than five percent (5%) of the amount actually payable by Tenant for the calendar year in question or Three Thousand Dollars ($3,000), whichever is greater, then Landlord shall be obligated to reimburse Tenant for all third party, out of pocket costs reasonably incurred by Tenant in connection with the Tenant’s inspection and the inspection by the CPA firm; however, in no event shall Landlord be obligated to reimburse Tenant more than the sum of One Thousand Dollars ($1,000.00) for such inspections applicable to a particular calendar year’s Operating Expenses (including, Taxes). Tenant may not withhold payment
29
of any Operating Expenses pending completion of any inspection or audit of Operating Expenses. Unless Tenant asserts specific errors within ninety (90) days after receipt of the annual reconciliation statement, such statement shall be deemed correct as between Landlord and Tenant, except as to individual components subsequently determined to be in error by future audit.
13. Alterations and Improvements.
13.1 In General. Except for minor or decorative alterations to the interior of the Premises which (i) do not impair the structural integrity of the Building, (ii) do not adversely affect any of the building systems serving the Premises or Building, (iii) do not cost in excess of Fifty Thousand Dollars ($50,000.00) in the aggregate in any consecutive twelve (12) month period, and (iv) are not visible from the exterior of the Building (“Cosmetic Alterations”), Tenant shall not make, or permit to be made, any alterations, removals, changes, enlargements, improvements or additions (collectively “Alterations”) in, on, about or to the Premises, or any part thereof, including Alterations required pursuant to Paragraph 6.2, without the prior written consent of Landlord (which consent shall not be unreasonably withheld or delayed) and without acquiring and complying with the conditions of all permits required for such Alterations by any governmental authority having jurisdiction thereof. Tenant shall not be obligated to obtain Landlord’s prior written consent to any Cosmetic Alterations referred to above but such Cosmetic Alterations shall be subject to all the others terms and conditions of this Paragraph 13.1 and 13.2 below. The term “Alterations” as used in this Paragraph 13 shall also include all heating, lighting, electrical (including all wiring, conduit outlets, drops, buss ducts, main and subpanels), air conditioning and partitioning in the Premises made by Tenant regardless of how affixed to the Premises. As a condition to the giving of its consent, Landlord may impose such reasonable requirements as Landlord reasonably may deem necessary, including without limitation, the manner in which the work is done; a right of approval of the contractor by whom the work is to be performed; the times during which the work is to be accomplished; the requirement that Tenant post a completion bond in an amount and form reasonably satisfactory to Landlord; and the requirement that Tenant reimburse Landlord, as Additional Rent, for Landlord’s actual costs for outside consultants incurred in reviewing any proposed Alteration, whether or not Landlord’s consent is granted. In the event Landlord consents to the making of any Alterations by Tenant, the same shall be made by Tenant at Tenant’s sole cost and expense, in accordance with the plans and specifications approved by Landlord and in a manner causing Landlord and Landlord’s agents and other tenants of the Project the least interference and inconvenience practicable under the circumstances. Tenant shall give written notice to Landlord five (5) business days prior to employing any laborer or contractor to perform services related to, or receiving materials for use upon the Premises, and prior to the commencement of any work of improvement on the Premises. Any Alterations, including, without limitation, Cosmetic Alterations, to the Premises made by Tenant or any of its agents, employees, contractors, subcontractors or other representatives shall be made in accordance with applicable Laws and in a first-class workmanlike manner. In making any such Alterations, Tenant shall, at Tenant’s sole cost and expense, file for and secure and comply with any and all permits or approvals required by any governmental departments or authorities having jurisdiction thereof and any utility company having an interest therein. In no event shall Tenant make any structural changes to the Premises or make any changes to the Premises which would weaken or impair the structural integrity of the Building or adversely affect any of the building systems serving the Building or Premises.
Subject to compliance with applicable law, Landlord’s review and approval of plans and specifications therefor, and this Paragraph 13 of this Lease, Tenant may, at Tenant’s sole cost and expense, install in the Premises a security system, including access panels, readers and cameras in the Premises (“Tenant Security System”), provided such system shall at all times be compatible with the fire/life/safety requirements and facilities of the Building, and provided further that such system shall permit Landlord to have access to the Premises at all times if necessary due to an emergency.
30
13.2 Removal Upon Lease Termination. At the time Tenant requests Landlord’s consent, Tenant shall request a decision from Landlord in writing as to whether Landlord will require Tenant, at Tenant’s expense, to remove any such Alterations and restore the Premises to their prior condition at Lease Termination. In the event Tenant fails to earlier obtain Landlord’s written decision as to whether Tenant will be required to remove any Alteration (or Landlord’s consent to any Alteration(s) is not required pursuant to the terms of this Lease), then no less than ninety (90) nor more than one hundred twenty (120) days prior to the expiration of the Lease Term, Tenant by written notice to Landlord shall request Landlord to inform Tenant whether or not Landlord desires to have any of such Alterations by Tenant removed at Lease Termination. Following receipt of such notice (or if Tenant fails to timely provide such notice), Landlord may elect to have all or a portion of such Alterations removed from the Premises at Lease Termination, and Tenant shall, at its sole cost and expense, remove at Lease Termination such Alterations designated by Landlord for removal and repair all damage to the Project arising from such removal. In the event Tenant fails to so request Landlord’s decision or fails to remove any such Alterations designated by Landlord for removal, Landlord, without waiving any or all other rights and remedies available to Landlord, may remove any Alterations made to the Premises by Tenant, restore the Premises to their prior condition and repair all damage to the Premises, Building and Common Area arising from such removal, and may recover from Tenant all costs and expenses actually incurred thereby, together with an amount equal to the fair rental value of the Premises for the period of time after Lease Termination required for Landlord to accomplish such removal and restoration. Tenant’s obligation to pay such costs and expenses to Landlord shall survive Lease Termination. Unless Landlord elects to have Tenant remove (or, upon Tenant’s failure to obtain Landlord’s decision, Landlord removes) any such Alterations, all such Alterations, except for moveable furniture, personal property and moveable equipment, and trade fixtures of Tenant not affixed to the Premises, shall become the property of Landlord upon Lease Termination (without any payment therefor) and remain upon and be surrendered with the Premises at Lease Termination.
Notwithstanding the foregoing, and/or anything else to the contrary contained in this Lease, Tenant shall not be obligated to remove (x) the Tenant Improvement Work shown on the Approved Plans (as defined in the Improvement Agreement), (y) the Tenant Security System and/or (z) the initial Generator (as defined in Paragraph 46 below) installed by or on behalf of Tenant pursuant to the terms and conditions of Paragraph 46 below).
13.3 Landlord’s Improvements. All fixtures, improvements or equipment which are installed, constructed on or attached to the Premises, Building or Common Area by Landlord, including the Tenant Improvement Work described in Exhibit C attached hereto, shall be a part of the realty and belong to Landlord. All of the Tenant Improvement Work, fixtures, equipment, alterations, additions, improvements and/or appurtenances attached to or built into the Premises prior to or during the Lease Term, whether by Landlord or Tenant and whether at the expense of Landlord or Tenant, or of both, shall be and remain part of the Premises and shall not be removed by Tenant at the end of the Lease Term unless otherwise expressly provided for in this Lease or unless such removal is required by Landlord pursuant to the provisions of Paragraph 13.1 or 13.2 above. Such Landlord Improvements, fixtures, equipment, alterations, additions, improvements and/or appurtenances shall include but not be limited to: all floor coverings, drapes, paneling, built-in cabinetry, molding, doors, vaults (including vault doors), plumbing systems, electrical systems, lighting systems, all fixtures and outlets for the systems mentioned above and for all telephone, radio, telegraph and television purposes, and any special flooring or ceiling installations.
14. Default and Remedies.
14.1 Events of Default. The term “Default by Tenant” as used in this Lease shall mean the occurrence of any of the following events:
31
(a) Tenant’s failure to pay when due any Rentals and such failure is not cured within five (5) business days after delivery of written notice from Landlord specifying such failure to pay;
(b) Commencement and continuation for at least sixty (60) days of any case, action or proceeding by, against or concerning Tenant under any federal or state bankruptcy, insolvency or other debtor’s relief law, including without limitation, (i) a case under Title 11 of the United States Code concerning Tenant, whether under Chapter 7, 11, or 13 of such Title or under any other Chapter, or (ii) a case, action or proceeding seeking Tenant’s financial reorganization or an arrangement with any of Tenant’s creditors;
(c) Voluntary or involuntary appointment of a receiver, trustee, keeper or other person who takes possession for more than sixty (60) days of substantially all of Tenant’s assets or of any asset used in Tenant’s business on the Premises, regardless of whether such appointment is as a result of insolvency or any other cause;
(d) Execution of an assignment for the benefit of creditors of substantially all assets of Tenant available by law for the satisfaction of judgment creditors;
(e) Commencement of proceedings for winding up or dissolving (whether voluntary or involuntary) the entity of Tenant, if Tenant is a corporation, limited liability company or a partnership;
(f) Levy of a writ of attachment or execution on Tenant’s interest under this Lease, if such writ continues for a period of thirty (30) days;
(g) Transfer or attempted Transfer of this Lease or the Premises by Tenant in violation of the provisions of Paragraph 24 below and such violation is not cured within ten (10) days after written notice of such violation if given by Landlord to Tenant; or
(h) Breach by Tenant of any term, covenant, condition, warranty, or provision contained in this Lease (other than those referred to in any other subsection of this Paragraph 14.1) and such breach is not cured within thirty (30) days after Tenant’s receipt of Landlord’s written notice of such breach (or if a breach under this subparagraph 14.1(h) cannot be reasonably cured within thirty (30) days, if Tenant does not commence to cure the breach within such thirty (30) day period or does not diligently and in good faith prosecute the cure to completion).
14.2 Remedies. Upon any Default by Tenant, Landlord shall have the following remedies, in addition to all other rights and remedies provided by law, to which Landlord may resort cumulatively, or in the alternative:
14.2.1 Termination. Landlord may terminate this Lease by giving written notice of termination to Tenant, in which event this Lease shall terminate on the date set forth for termination in such notice. In the event Landlord terminates this Lease, Landlord shall have the right to recover from Tenant:
(a) The worth at the time of award of the unpaid Rentals which had been earned at the time of termination;
32
(b) The worth at the time of award of the amount by which the unpaid Rentals which would have been earned after termination until the time of award exceeds the amount of such rental loss that Tenant proves could have been reasonably avoided;
(c) The worth at the time of award (computed by discounting at the discount rate of the Federal Reserve Bank of San Francisco at the time of award plus one percent) of the amount by which the Rentals for the balance of the Lease Term after the time of award exceed the amount of such rental loss that Tenant proves could be reasonably avoided;
(d) Any other amounts necessary to compensate Landlord for all detriment proximately caused by the Default by Tenant or which in the ordinary course of events would likely result, including without limitation the following:
(i) Expenses in retaking possession of the Premises;
(ii) Expenses for cleaning the Premises, expenses for repairing or restoring the Premises as expressly provided in this Agreement and expenses incurred by Landlord in repairing or restoring the Premises to the condition to which the same is required to be surrendered by Tenant under Paragraph 35 of this Lease;
(iii) Any unamortized real estate brokerage commission paid in connection with this Lease;
(iv) Expenses for removing, transporting, and storing any of Tenant’s property left at the Premises (although Landlord shall have no obligation to remove, transport, or store any such property);
(v) Expenses of reletting the Premises, including without limitation, brokerage commissions and reasonable attorneys’ fees;
(vi) Reasonable attorneys’ fees and court costs; and
(vii) Costs of carrying the Premises such as repairs, maintenance, taxes and insurance premiums, utilities and security precautions (if any).
(e) The “worth at the time of award” of the amounts referred to in subparagraphs (a) and (b) of this Paragraph 14.2.1 is computed by allowing interest at an annual rate equal to the greater of: ten percent (10%); or five percent (5%) plus the rate established by the Federal Reserve Bank of San Francisco, as of the twenty-fifth (25th) day of the month immediately preceding the Default by Tenant, on advances to member banks under Sections 13 and 13(a) of the Federal Reserve Act, as now in effect or hereafter from time to time amended, not to exceed the maximum rate allowable by law.
14.2.2 Continuance of Lease. Upon any Default by Tenant and unless and until Landlord elects to terminate this Lease pursuant to Paragraph 14.2.1 above, this Lease shall continue in effect after the Default by Tenant and Landlord may enforce all its rights and remedies under this Lease, including without limitation, the right to recover payment of Rentals as they become due. Neither efforts by Landlord to mitigate
33
damages caused by a Default by Tenant nor the acceptance of any Rentals shall constitute a waiver by Landlord of any of Landlord’s rights or remedies, including the rights and remedies specified in Paragraph 14.2.1 above.
15. Damage or Destruction.
15.1 Definition of Terms. For the purposes of this Lease, the term: (a) “Insured Casualty” means damage to or destruction of the Premises from a cause actually insured against, or required by this Lease to be insured against, for which the insurance proceeds paid or made available to Landlord are sufficient to rebuild or restore the Premises under then existing building codes to the condition existing immediately prior to the damage or destruction; and (b) “Uninsured Casualty” means damage to or destruction of the Premises from a cause not actually insured against, or not required to be insured against, or from a cause actually insured against but for which the insurance proceeds paid or made available to Landlord are for any reason insufficient to rebuild or restore the Premises under then-existing building codes to the condition existing immediately prior to the damage or destruction, or from a cause actually insured against but for which the insurance proceeds are not paid or made available to Landlord within ninety (90) days of the event of damage or destruction.
15.2 Insured Casualty.
15.2.1 Rebuilding Required. In the event of an Insured Casualty where the extent of damage or destruction is less than twenty-five percent (25%) of the then full replacement cost of the Premises, Landlord shall promptly following receipt of any required building permits and other environmental approvals, if applicable, rebuild or restore the Premises to the condition existing immediately prior to the damage or destruction, provided the damage or destruction was not a result of a willful act of Tenant, and that there exist no governmental codes or regulations that would interfere with Landlord’s ability to so rebuild or restore.
15.2.2 Landlord’s Election. In the event of an Insured Casualty where the extent of damage or destruction is equal to or greater than twenty-five percent (25%) of the then full replacement cost of the Premises, Landlord may, at its option and at its sole discretion, rebuild or restore the Premises to the condition existing immediately prior to the damage or destruction, or terminate this Lease. Landlord shall notify Tenant in writing within sixty (60) days after the event of damage or destruction of Landlord’s election to either rebuild or restore the Premises or terminate this Lease.
15.2.3 Continuance of Lease. If Landlord is required to rebuild or restore the Premises pursuant to Paragraph 15.2.1 or if Landlord elects to rebuild or restore the Premises pursuant to Paragraph 15.2.2, this Lease shall remain in effect and Tenant shall have no claim against Landlord for compensation for inconvenience or loss of business during any period of repair or restoration.
15.3 Uninsured Casualty. In the event of an Uninsured Casualty, Landlord may, at its option and at its sole discretion (i) rebuild or restore the Premises as soon as reasonably possible at Landlord’s expense (unless the damage or destruction was caused by a negligent or willful act of Tenant or any of its agents, employees or contractors, in which event Tenant shall pay all costs of rebuilding or restoring), in which event this Lease shall continue in full force and effect or (ii) terminate this Lease, in which event Landlord shall give written notice to Tenant within sixty (60) days after Landlord becomes aware of the event of damage or destruction of Landlord’s election to terminate this Lease as of the date of the event of damage or destruction, and if the damage or destruction was caused by a willful act of Tenant, Tenant shall be liable therefor to Landlord.
34
15.4 Tenant’s Election. Notwithstanding anything to the contrary contained in this Paragraph 15, Tenant may elect to terminate this Lease in the event the Premises are damaged or destroyed and, in the reasonable opinion of Landlord’s architect or construction consultants, the restoration of the Premises cannot be substantially completed within two hundred ten (210) days after the event of damage or destruction. Tenant’s election shall be made by written notice to Landlord within fifteen (15) business days after Tenant receives from Landlord the estimate of the time needed to complete repair or restoration of the Premises. If Tenant does not deliver said notice within said fifteen (15) business day period, Tenant may not later terminate this Lease even if substantial completion of the rebuilding or restoration occurs subsequent to said two hundred ten (210) day period, provided that Landlord is proceeding with diligence to rebuild or restore the Premises. If Tenant delivers said notice within said fifteen (15) business day period, this Lease shall terminate as of the earlier of (i) the date specified in Tenant’s termination notice or (ii) the date that is sixty (60) days after Landlord’s receipt of such notice.
15.5 Damage or Destruction Near End of Lease Term.. Notwithstanding anything to the contrary contained in this Paragraph 15, in the event the Premises are damaged or destroyed in whole or in part (regardless of the extent of damage) from any cause during the last twelve (12) months of the Lease Term and cannot be restored within sixty (60) days after the occurrence thereof, Landlord (or Tenant provided such damage or destruction was not caused by the acts, omissions, negligence or willful misconduct of Tenant or any of its agents, employees, affiliates, contractors, invitees, licensees or other representatives) may, at its option, terminate this Lease as of the date of the event of damage or destruction by giving written notice to the other of its election to do so within thirty (30) days after the event of such damage or destruction.
15.6 Termination of Lease. If the Lease is terminated pursuant to this Paragraph 15, the current Rent shall be proportionately reduced during the period following the event of damage or destruction until the date on which Tenant surrenders the Premises, based upon the extent to which the damage or destruction renders the Premises untenantable (as reasonably determined by Landlord) and Tenant is unable to occupy the Premises as a result of the same. All other Rentals due hereunder shall continue unaffected during such period. The proceeds of insurance carried by Tenant pursuant to Paragraph 8.2 shall be paid to Landlord and Tenant, as their interests appear.
15.7 Abatement of Rentals. If the Premises are to be rebuilt or restored pursuant to this Paragraph 15, the then current Rentals shall be proportionately reduced during the period of repair or restoration, based upon the extent to which the damage or destruction renders the Premises untenantable (as reasonably determined by Landlord) and Tenant is unable to occupy the Premises as a result of the same.
15.8 Liability for Personal Property. Except to the extent arising out of the gross negligence or willful misconduct Landlord or that of its agents, employees, contractors or invitees (and then subject to the provisions of Paragraph 8.6 above), in no event shall Landlord have any liability for, nor shall it be required to repair or restore, any injury or damage to any Alterations to the Premises made by Tenant, trade fixtures, personal property of Tenant, equipment, merchandise, furniture, or any other property installed by Tenant or at the expense of Tenant. If Landlord or Tenant does not elect to terminate this Lease pursuant to this Paragraph 15, Tenant shall be obligated to promptly rebuild or restore the same to the condition existing immediately prior to the damage or destruction in accordance with the provisions of Paragraph 13.1.
15.9 Waiver of Civil Code Remedies. Landlord and Tenant acknowledge that the rights and obligations of the parties upon damage or destruction of the Premises are as set forth herein; therefore Tenant hereby expressly waives any rights to terminate this Lease upon damage or destruction of the Premises, except as specifically provided by this Lease, and Tenant hereby waives, except as specifically provided in this Lease,
35
any rights pursuant to the provisions of Subdivision 2 of Section 1932 and Subdivision 4 of Section 1933 of the California Civil Code, as amended from time to time, and the provisions of any similar law hereinafter enacted, which provisions relate to the termination of the hiring of a thing upon its substantial damage or destruction.
15.10 Damage or Destruction to the Building. The foregoing notwithstanding, in the event the Building is damaged or destroyed to the extent of more than thirty-three and one-third percent (33 1/3%) of the then replacement cost thereof, Landlord may elect to terminate this Lease, whether or not the Premises are injured.
16. Condemnation.
16.1 Definition of Terms. For the purposes of this Lease, the term: (a) “Taking” means a taking of the Premises, Common Area or Building or damage related to the exercise of the power of eminent domain and includes, without limitation, a voluntary conveyance, in lieu of court proceedings, to any agency, authority, public utility, person or corporate entity empowered to condemn property; (b) “Total Taking” means the Taking of the entire Premises or so much of the Premises, Building or Tenant Parking Area as to prevent or substantially impair the use thereof by Tenant for the uses herein specified; provided, however, that in no event shall the Taking of less than twenty percent (20%) of the Premises or fifty percent (50%) of the Building and Tenant Parking Area be considered a Total Taking; (c) “Partial Taking” means the Taking of only a portion of the Premises, Building or Tenant Parking Area which does not constitute a Total Taking; (d) “Date of Taking” means the date upon which the title to the Premises, Building or Tenant Parking Area or a portion thereof, passes to and vests in the condemnor or the effective date of any order for possession if issued prior to the date title vests in the condemnor; and (e) “Award” means the amount of any award made, consideration paid, or damages ordered as a result of a Taking.
16.2 Rights. The parties agree that in the event of a Taking all rights between them or in and to an Award shall be as set forth herein.
16.3 Total Taking. In the event of a Total Taking during the Lease Term: (a) the rights of Tenant under this Lease and the leasehold estate of Tenant in and to the Premises shall cease and terminate as of the Date of Taking; (b) Landlord shall refund to Tenant any prepaid Rent; (c) Tenant shall pay Landlord any Rentals due Landlord under the Lease, prorated as of the Date of Taking; (d) to the extent the Award is not payable to the beneficiary or mortgagee of a deed of trust or mortgage affecting the Premises, Tenant shall receive from the Award those portions of the Award attributable to trade fixtures of Tenant; and (e) the remainder of the Award shall be paid to and be the property of Landlord. Nothing contained in this Paragraph 16.3 shall be deemed to deny Tenant its right to recover awards made by the condemning authority for moving costs, relocation costs, and costs attributable to goodwill and leasehold improvements installed by Tenant.
16.4 Partial Taking. In the event of a Partial Taking during the Lease Term: (a) the rights of Tenant under the Lease and the leasehold estate of Tenant in and to the portion of the Premises taken shall cease and terminate as of the Date of Taking; (b) from and after the Date of Taking the Rent shall be an amount equal to the product obtained by multiplying the then current Rent by the quotient obtained by dividing the fair market value of the Premises immediately after the Taking by the fair market value of the Premises immediately prior to the Taking; (c) to the extent the Award is not payable to the beneficiary or mortgagee of a deed of trust or mortgage affecting the Premises, Tenant shall receive from the Award the portions of the Award attributable to trade fixtures of Tenant; and (d) the remainder of the Award shall be paid to and be the property of Landlord. Each party waives the provisions of California Code of Civil Procedure Section 1265.130 allowing either party to petition the Superior Court to terminate this Lease in the event of a Partial Taking. Nothing contained in this Paragraph 16.4 shall be
36
deemed to deny Tenant its right to recover awards made by the condemning authority for moving costs, relocation costs, and costs attributable to goodwill and leasehold improvements installed by Tenant.
17. Liens.
17.1 Premises to Be Free of Liens. Tenant shall pay for all labor and services performed for, and all materials used by or furnished to Tenant, Tenant’s agents, or any contractor employed by Tenant with respect to the Premises. Tenant shall indemnify, defend and hold Landlord harmless from and keep the Project free from any liens, claims, demands, encumbrances, or judgments, including all costs, liabilities and attorneys’ fees with respect thereto, created or suffered by reason of any labor or services performed for, or materials used by or furnished to Tenant or Tenant’s agents or any contractor employed by Tenant with respect to the Premises, except to the extent the same is caused by Landlord or its agents’ gross negligence or willful misconduct. Tenant’s obligations under the immediately preceding sentence shall survive Lease Termination. Landlord shall have the right, at all times, to post and keep posted on the Premises any notices permitted or required by law, or which Landlord shall deem proper for the protection of Landlord and the Premises, Building, Common Area and Land, and any other party having an interest therein, from mechanics’ and materialmen’s liens, including without limitation a notice of non-responsibility. In the event Tenant is required to post an improvement bond with a public agency in connection with any work performed by Tenant on or to the Premises, Tenant shall include Landlord as an additional obligee.
17.2 Notice of Lien; Bond. Should any claims of lien be filed against, or any action be commenced affecting the Premises, Tenant’s interest in the Premises or any other portion of the Project, Tenant shall give Landlord notice of such lien or action within five (5) business days after Tenant receives notice of the filing of the lien or the commencement of the action. In the event that Tenant shall not, within twenty (20) days following the date Tenant becomes aware of the imposition of any such lien, cause such lien to be released of record by payment or posting of a proper bond, Landlord shall have, in addition to all other remedies provided herein and by law, the right, but not the obligation, to cause the same to be released by such means as Landlord shall deem proper, including payment of the claim giving rise to such lien or posting of a proper bond. All such sums paid by Landlord and all expenses reasonably incurred by Landlord in connection therewith, including attorneys’ fees and costs, shall be payable to Landlord by Tenant as Additional Rent on demand.
18. Landlord’s Right of Access to Premises. Landlord reserves and shall have the right and Tenant and Tenant’s agents shall permit Landlord and Landlord’s agents to enter the Premises at any reasonable time upon reasonable prior notice (except no such prior notice shall be required to be given in the event of an emergency or in connection with the performance of Landlord’s routine maintenance and repair responsibilities) and subject to any reasonable security measures of Tenant that are applied to visitors to the Premises on a non‑discriminatory basis for the purpose of (i) inspecting the Premises, (ii) performing Landlord’s maintenance and repair responsibilities set forth herein, (iii) posting notices of non-responsibility, (iv) placing upon the Premises at any time “For Sale” signs, (v) placing on the Premises ordinary “For Lease” signs at any time within one hundred eighty (180) days prior to Lease Termination, or at any time Tenant is in uncured default hereunder, or at such other times as agreed to by Landlord and Tenant, (vi) protecting the Premises in the event of an emergency and (vii) exhibiting the Premises to prospective purchasers or lenders at any reasonable time or to prospective tenants. Landlord agrees that in exercising any right to enter the Premises and in exercising any other rights reserved pursuant to this Paragraph, Landlord shall use reasonable efforts (to the extent practicable under the circumstances) to minimize any interference with Tenant’s use of the Premises. In the event of an emergency, Landlord shall have the right to use any and all means which Landlord reasonably may deem proper to gain access to the Premises. Any entry to the Premises by Landlord or Landlord’s agents in accordance with this Paragraph 18 or any other provision of
37
this Lease shall not under any circumstances be construed or deemed to be a forcible or unlawful entry into, or a detainer of the Premises, or an eviction of Tenant from the Premises or any portion thereof nor give Tenant the right to abate the Rentals payable under this Lease. Tenant hereby waives any claims for damages for any injury or inconvenience to or interference with Tenant’s business, any loss of occupancy or quiet enjoyment of the Premises, and, except to the extent caused by the gross negligence or willful misconduct of Landlord, its agents, employees or contractors, any other loss occasioned by Landlord’s or Landlord’s agents’ entry into the Premises as permitted by this Paragraph 18 or any other provision of this Lease.
19. Landlord’s Right to Perform Tenant’s Covenants. Except as otherwise expressly provided herein, if Tenant shall at any time fail to make any payment or perform any other act required to be made or performed by Tenant under this Lease, Landlord may upon ten (10) days written notice to Tenant, but shall not be obligated to and without waiving or releasing Tenant from any obligation under this Lease, make such payment or perform such other act to the extent that Landlord may deem desirable, and in connection therewith, pay expenses and employ counsel. All reasonable sums so paid by Landlord and all penalties, interest and reasonable costs in connection therewith shall be due and payable by Tenant as Additional Rent upon demand.
20. Lender Requirements.
20.1 Subordination. This Lease, at Landlord’s option, shall be subject and subordinate to the lien of any mortgages or deeds of trust (including all advances thereunder, renewals, replacements, modifications, supplements, consolidations, and extensions thereof) in any amount(s) whatsoever now or hereafter placed on or against or affecting the Premises, Building or Land, or Landlord’s interest or estate therein without the necessity of the execution and delivery of any further instruments on the part of Tenant to effectuate such subordination. If any mortgagee or beneficiary shall elect to have this Lease prior to the lien of its mortgage or deed of trust, and shall give written notice thereof to Tenant, this Lease shall be deemed prior to such mortgage or deed of trust, whether this Lease is dated prior or subsequent to the date of such mortgage or deed of trust or the date of the recording thereof.
20.2 Subordination Agreements. Tenant shall execute and deliver, without charge therefor, such further instruments evidencing subordination of this Lease to the lien of any mortgages or deeds of trust affecting the Premises, Building or Land as may be required by Landlord within fifteen (15) business days following Tenant’s receipt of Landlord’s request therefor; provided that such mortgagee or beneficiary under such mortgage or deed of trust agrees in writing that this Lease shall not be terminated or modified in any material way in the event of any foreclosure if Tenant is not in default under this Lease. Failure of Tenant to execute such instruments evidencing subordination of this Lease shall constitute a Default by Tenant hereunder. Landlord shall use commercially reasonable efforts to provide Tenant, within twenty (20) business days after the execution and delivery of this Lease by Tenant to Landlord, a subordination, nondisturbance and attornment agreement (“SNDA”) from Orchard Office GAP Lender, LLC (“Landlord’s Current Lender”), which SNDA, if applicable, shall be in form and content acceptable to Landlord’s Current Lender (“Current Lender SNDA”).
20.3 Approval by Lenders. Tenant recognizes that the provisions of this Lease may be subject to the approval of any financial institution that may make a loan secured by a new or subsequent deed of trust or mortgage affecting the Premises, Building or Land. If the financial institution should require, as a condition to such financing, any modifications of this Lease in order to protect its security interest in the Premises including without limitation, modification of the provisions relating to damage to and/or condemnation of the Premises, Tenant agrees to negotiate in good faith with Landlord and such financial institution to agree on mutually acceptable modifications and execute the appropriate amendments; provided, however, that no modification shall substantially change the
38
size, location or dimension of the Premises, or increase the Rentals payable by Tenant hereunder. If Tenant refuses to execute any such amendment, Landlord may, in Landlord’s reasonable discretion, terminate this Lease.
20.4 Attornment. In the event of foreclosure or the exercise of the power of sale under any mortgage or deed of trust made by Landlord and covering the Premises, Building or Land, then, upon written request made therefore by the foreclosing lender or purchaser at such foreclosure sale, Tenant shall attorn to such foreclosing lender or such purchaser upon any such foreclosure or sale and recognize such foreclosing lender or purchaser as the Landlord under this Lease.
20.5 Estoppel Certificates and Financial Statements.
(a) Delivery by Tenant. Tenant shall, within ten (10) business days following Tenant’s receipt of a request by Landlord therefor and without charge, execute and deliver to Landlord any and all documents, estoppel certificates, and current financial statements of Tenant reasonably requested by Landlord in connection with the sale or financing of the Premises, Building or Land, or requested by any lender making a loan affecting the Premises, Building or Land. Landlord may require that Tenant in any estoppel certificate shall (i) certify that this Lease is unmodified and in full force and effect (or, if modified, state the nature of such modification and certify that this Lease, as so modified, is in full force and effect) and has not been assigned, (ii) certify the date to which Rentals are paid in advance, if any, (iii) acknowledge that there are not, to Tenant’s knowledge, any uncured defaults on the part of Landlord hereunder, or specify such defaults if claimed, (iv) evidence the status of this Lease as may be required either by a lender making a loan to Landlord to be secured by a deed of trust or mortgage covering the Premises, Building or Land or a purchaser of the Premises, Building or Land from Landlord, (v) warrant that in the event any beneficiary of any security instrument encumbering the Premises, Building or Land forecloses on the security instrument or sells the Premises, Building or Land pursuant to any power of sale contained in such security instrument, such beneficiary shall not be liable for any security deposit or cash collateral, unless any such security deposit or cash collateral actually has been received by the beneficiary from Landlord, (vi) certify that all improvements to be constructed on the Premises by Landlord have been substantially completed except for punch list items which do not prevent Tenant from using the Premises for its intended use, and (vii) certify such other matters relating to the Lease and/or Premises as may be reasonably requested by a lender making a loan to Landlord or a purchaser of the Premises, Building or Land from Landlord. Any such estoppel certificate may be conclusively relied upon by any prospective purchaser or encumbrancer of the Premises, Building or Land. Any financial statements of Tenant shall include an opinion of a certified public accountant (if available) and a balance sheet and profit and loss statement for the most recent fiscal year, or a reasonable substitute for the form of such financial information, all prepared in accordance with generally accepted accounting principles consistently applied.
(b) Nondelivery by Tenant. Tenant’s failure to deliver an estoppel certificate as required pursuant to Paragraph 20.5(a) above shall be conclusive upon Tenant that (i) this Lease is in full force and effect, without modification except as may be represented by Landlord and has not been assigned, (ii) there are now no uncured defaults in Landlord’s performance, (iii) no Rentals have been paid in advance except those that are set forth in this Lease, (iv) no beneficiary of any security instrument encumbering the Premises, Building or Land shall be liable for any security deposit in the event of a foreclosure or sale under such security instrument, unless any such security deposit has actually been received by the beneficiary from Landlord, and (v) the improvements to be constructed on the Premises by Landlord have been substantially completed except for punch list items which do not prevent Tenant from using the Premises for its intended use. Tenant’s failure to deliver any financial statements, estoppel certificates or other documents as required pursuant to Paragraph 20.5(a) above shall be a Default by Tenant if not delivered to Landlord within five (5) business days following Tenant’s receipt of written notice that such financial statements, estoppel certificates or other documents required pursuant to
39
Paragraph 20.5(a) are past due (and no other cure period shall be available to Tenant with respect to such Default by Tenant).
21. Holding Over. This Lease shall terminate without further notice at the expiration, or earlier termination pursuant to the terms hereof, of the Lease Term. Any holding over by Tenant after Lease Termination shall not constitute a renewal or extension of the Lease Term, nor give Tenant any rights in or to the Premises except as expressly provided in this Lease. Any holding over after Lease Termination with the prior written consent of Landlord shall be construed to be a tenancy from month to month, at one hundred fifty percent (150%) of the monthly Rent for the month immediately preceding Lease Termination, in addition to all Additional Rent payable hereunder (such Rent and Additional rent computed on a monthly basis for each month or ratably for any part thereof during such holding over), and shall otherwise be on the terms and conditions herein specified insofar as applicable. Tenant agrees that the reasonable value of the use of the Premises during any holding over without the written consent of Landlord shall be the greater of (x) one hundred fifty percent (150%) of the monthly Rent for the month immediately preceding Lease Termination or (y) the fair market rental value of the Premises (as reasonably determined by Landlord) (pro rated on a daily basis). Acceptance by Landlord of rent after such termination shall not constitute Landlord’s consent to any hold over hereunder or result in a renewal. If Tenant remains in possession of the Premises after Lease Termination without Landlord’s consent, Tenant shall indemnify, defend and hold Landlord harmless from and against any loss, damage, expense, claim or liability resulting from Tenant’s failure to surrender the Premises, including without limitation, any claims made by any succeeding tenant based on delay in the availability of the Premises. The provisions of this Paragraph 21 shall survive the expiration or earlier termination of this Lease.
Notwithstanding the foregoing, upon written notice to Landlord given no later than six (6) months prior to the expiration of the Initial Term (as defined in Paragraph 44 below), so long as no default on the part of Tenant then exists under this Lease, Tenant shall have the one-time right to hold over in the entire Premises upon each and all of the terms and conditions set forth in this Lease (as may be applicable, but expressly excluding the extension rights set forth in Paragraph 44 below, and without in any way extending the Initial Term for purposes of determining the date by which Tenant must exercise the first Option described in Paragraph 44 below) for a period of ninety (90) days after the expiration of the Initial Term (such ninety (90) day period, if applicable, being the “Permitted Holdover Period”). The Permitted Holdover Period (if applicable) shall not constitute an extension of this Lease. In consideration of Tenant’s occupancy of the Premises during the Permitted Holdover Period (if applicable), Tenant shall pay in advance, for each thirty (30) day interval encompassed within such ninety (90) day Permitted Holdover Period, the amount equal to one hundred twenty-five percent (125%) of the monthly installment of Rent in effect for the Premises (in its entirety) for the last month of the Initial Term (i.e., $209,271.02/month x 125% = $261,588.78/month) (such monthly amount being the “Permitted Holdover Period Rent”), in addition to, and not in lieu of, all other payments required to be made by Tenant under this Lease, including, but not limited to, Tenant’s percentage share of Operating Expenses (or any component(s) thereof). If Landlord fails to receive the six (6) months’ written notice from Tenant required pursuant to the first sentence of this grammatical above, or Tenant holds over in the Premises beyond the Permitted Holdover Period (if applicable), then, in either such case, the first grammatical paragraph of this Paragraph 21 shall govern.
22. Notices. Any notice required or desired to be given under this Lease shall be in writing, and all notices shall be given by personal delivery, delivery by a nationally-recognized courier service, or U.S. mail. All notices personally given on Tenant may be delivered to any person apparently in charge at the Premises, on any corporate officer or agent of Tenant if Tenant is a corporation, or on any one signatory party if more than one party signs this Lease on behalf of Tenant; any notice so given shall be binding upon all signatory parties as if served upon each such party personally. Any notice given pursuant to this Paragraph 22 shall be deemed to have been
40
given (i) when personally delivered, (ii) if delivered by nationally-recognized courier, upon the date of delivery and (iii) if mailed, when three (3) business days have elapsed from the time when such notice was deposited in the United States mail, certified or registered mail and postage prepaid, addressed to the party at the last address given for purposes of notice pursuant to the provisions of this Paragraph 22. Any notices sent by Landlord regarding or relating to eviction procedures, including, without limitation, three day notices, may be sent by regular mail. At the date of execution of this Lease, the addresses for notice for Landlord and Tenant are set forth in Paragraph 1.12 above.
23. Attorneys’ Fees. In the event either party hereto shall bring any action or legal proceeding for damages for an alleged breach of any provision of this Lease, to recover Rentals, to enforce an indemnity, defense or hold harmless obligation, to terminate the tenancy of the Premises, or to enforce, protect, interpret, or establish any term, condition, or covenant of this Lease or right or remedy of either party, the prevailing party shall be entitled to recover, as a part of such action or proceeding, reasonable attorneys’ fees and court costs, including reasonable attorneys’ fees and costs for appeal, as may be fixed by the court or jury. Notwithstanding anything to the contrary contained in this Lease, “prevailing party” as used in this paragraph shall include the party who dismisses an action for recovery hereunder in exchange for sums allegedly due, performance of covenants allegedly breached or considerations substantially equal to the relief sought in the action.
24. Assignment, Subletting and Hypothecation.
24.1 In General. Tenant shall not voluntarily sell, assign or transfer all or any part of Tenant’s interest in this Lease or in the Premises or any part thereof, sublease all or any part of the Premises, or permit all or any part of the Premises to be used by any person or entity other than Tenant or Tenant’s employees, except as specifically provided in this Paragraph 24.
24.2 Voluntary Assignment and Subletting.
(a) Notice to Landlord. Tenant shall, by written notice, advise Landlord of Tenant’s desire on a stated date (which date shall not be less than thirty (30) days nor more than ninety (90) days after the date of Tenant’s notice) to assign this Lease or to sublet all or any part of the Premises for any part of the Lease Term. Tenant’s notice shall state the name, legal composition and address of the proposed assignee or subtenant, and Tenant shall provide the following information to Landlord with said notice: a true and complete copy of the proposed assignment agreement or sublease; a current financial statement of the proposed assignee or subtenant certified as true and correct by an officer, general partner or managing member of Tenant prepared in accordance with generally accepted accounting principles within one year prior to the proposed effective date of the assignment or sublease; the nature of the proposed assignee’s or subtenant’s business to be carried on in the Premises; the payments to be made or other consideration to be given on account of the assignment or sublease; a current financial statement of Tenant; and such other pertinent information as may be requested by Landlord, all in sufficient detail to enable Landlord to evaluate the proposed assignment or sublease and the prospective assignee or subtenant. Tenant’s notice shall not be deemed to have been served or given until such time as Tenant has provided Landlord with all information reasonably requested by Landlord pursuant to this Paragraph 24.2. Tenant shall immediately notify Landlord of any modification to the proposed terms of such assignment or sublease.
(b) Offer to Terminate. Other than with respect to a Permitted Transfer (as defined in Paragraph 24.4 below), if Tenant notifies Landlord of its desire to assign this Lease or Tenant’s interest herein or sublet more than fifty percent of the Premises for more than fifty percent of the balance of the Lease Term, Tenant’s notice shall constitute an offer to terminate this Lease and Landlord shall have the right, to be exercised
41
by giving written notice to Tenant within thirty (30) days after receipt of Tenant’s notice, to terminate the Lease and, in the event of such termination, this Lease shall terminate on the date stated in the notice given by Tenant pursuant to Paragraph 24.2(a), subject to any obligations which have accrued and are unfulfilled as of such date.
(c) Landlord’s Consent. If Landlord does not exercise its right to terminate pursuant to Paragraph 24.2(b) within thirty (30) days after receipt of Tenant’s notice, Landlord shall not unreasonably withhold or delay its consent to the proposed assignment or subletting, on the terms and conditions specified in said notice. Without otherwise limiting the criteria upon which Landlord may withhold its consent to any proposed assignment or sublease, if Landlord withholds its consent where Tenant is in default at the time of the giving of Tenant’s notice or at any time thereafter, or where the net worth of the proposed assignee (according to generally accepted accounting principles, as applicable) is less than the greater of (i) the net worth of Tenant immediately prior to the assignment (ii) or the net worth of Tenant at the time this Lease is executed, such withholding of consent shall be presumptively reasonable. Fifty percent (50%) of any and all rent paid by an assignee or subtenant in excess of the Rentals to be paid under this Lease (prorated in the event of a sublease of less than the entire Premises), after Tenant’s deduction therefrom of (i) tenant improvement costs directly paid, and/or “free rent” actually granted, to the transferee by Tenant in order to obtain the Lease assignment or subletting in question, and (ii) all reasonable brokerage commissions and/or reasonable attorneys’ fees paid by Tenant to third parties not affiliated with Tenant in order to obtain the Lease assignment or subletting in question, shall be paid directly to Landlord, as Additional Rent, at the time and place specified in this Lease. For the purposes of this Paragraph 24, the term “rent” shall include any consideration of any kind received, or to be received, by Tenant from an assignee or subtenant, if such sums are related to Tenant’s interest in this Lease or in the Premises, including, but not limited to key money, bonus money, and payments (in excess of the fair market value thereof) for Tenant’s assets, fixtures, trade fixtures, inventory, accounts, goodwill, equipment, furniture, general intangibles. Any assignment or subletting without Landlord’s consent shall be voidable at Landlord’s option, and shall constitute a Default by Tenant. Landlord’s consent to any one assignment or sublease shall not constitute a waiver of the provisions of this Paragraph 24 as to any subsequent assignment or sublease nor a consent to any subsequent assignment or sublease; further, Landlord’s consent to an assignment or sublease shall not release Tenant from Tenant’s obligations under this Lease, and Tenant shall remain jointly and severally liable with the assignee or subtenant.
(d) Assumption of Obligations. In the event Landlord consents to any assignment, such consent shall be conditioned upon the assignee expressly assuming and agreeing to be bound by each of Tenant’s covenants, agreements and obligations contained in this Lease, pursuant to a written assignment and assumption agreement in a form reasonably approved by Landlord. Landlord’s consent to any assignment or sublease shall be evidenced by Landlord’s signature on said assignment and assumption agreement or on said sublease or by a separate written consent prepared by Landlord and to be executed by Tenant and the applicable assignee or sublessee. In the event Landlord consents to a proposed assignment or sublease, such assignment or sublease shall be valid and the assignee or subtenant shall have the right to take possession of the Premises only if an executed original of the assignment or sublease is delivered to Landlord, and such document contains the same terms and conditions as stated in Tenant’s notice to Landlord given pursuant to Paragraph 24.2(a) above, except for any such modifications to which Landlord has consented in writing.
24.3 Collection of Rent. Tenant hereby irrevocably gives to and confers upon Landlord, as security for Tenant’s obligations under this Lease, the right, power and authority to collect all rents from any assignee or subtenant of all or any part of the Premises as permitted by this Paragraph 24, or otherwise, and Landlord, as assignee of Tenant, or a receiver for Tenant appointed on Landlord’s application, may collect such rent and apply it toward Tenant’s obligations under this Lease; provided, however, that until the occurrence of any Default by Tenant, or except as provided by the provisions of Paragraph 24.2(c) above, Tenant shall have the right to collect
42
such rent. Upon the occurrence of any Default by Tenant, Landlord may at any time without notice in Landlord’s own name sue for or otherwise collect such rent, including rent past due and unpaid, and apply the same, less costs and expenses of operation and collection, including reasonable attorneys’ fees, toward Tenant’s obligations under this Lease. Landlord’s collection of such rents shall not constitute an acceptance by Landlord of attornment by such subtenants. In the event of a Default by Tenant, Landlord shall have all rights provided by this Lease and by law, and Landlord may, upon re-entry and taking possession of the Premises, eject all parties in possession or eject some and not others, or eject none, as Landlord shall determine in Landlord’s sole discretion.
24.4 Corporations and Partnerships. If Tenant is a corporation or limited liability company, any dissolution, merger, consolidation or other reorganization of Tenant, any sale or transfer (or cumulative sales or transfers) of the capital stock or membership interests of Tenant in excess of fifty percent (50%), or any sale (or cumulative sales) of all or substantially all of the assets of Tenant shall be deemed an assignment of this Lease requiring the prior written consent of Landlord. If Tenant is a partnership, any withdrawal or substitution (whether voluntary, involuntary, or by operation of law and whether occurring at one time or over a period of time) of any partner(s) owning fifty percent (50%) or more (cumulatively) of the partnership, any assignment(s) of fifty percent (50%) or more (cumulatively) of any interest in the capital or profits of the partnership, or the dissolution of the partnership shall be deemed an assignment of this Lease requiring the prior written consent of Landlord. Any such withdrawal or substitution of partners or assignment of any interest in or dissolution of a partnership tenant, and any such sale of stock, membership interests or assets of a corporate or limited liability company tenant or dissolution, merger, consolidation or other reorganization of a corporate or limited liability company without the prior written consent of Landlord shall be a Default by Tenant hereunder. The foregoing notwithstanding, the sale or transfer of any or all of the capital stock of a corporation, the capital stock of which is now or hereafter becomes publicly traded, shall not be deemed an assignment of this Lease.
Notwithstanding anything to the contrary contained in this Lease, Tenant, without Landlord’s prior written consent (but with notice to Landlord), may sublet the Premises or assign this Lease to (i) a subsidiary, affiliate, corporation or other entity controlled by, which controls or is under common control with Tenant; (ii) a successor corporation related to Tenant by merger, consolidation, non‑bankruptcy reorganization or government action; or (iii) a purchaser of all or substantially all of Tenant’s assets, provided that in either of the latter two instances the successor or purchaser has a net worth not less than the greater of (i) the net worth of Tenant at the time that Tenant executes this Lease, or (ii) the net worth of Tenant as of the effective date of such assignment or subletting (each, a “Permitted Transferee”). For purposes of this Lease, a “Permitted Transfer” is an assignment or subletting to a Permitted Transferee. Notwithstanding that a Transfer is made to a Permitted Transferee, Tenant shall not be released from any of its obligations under this Lease and such Permitted Transferee shall be required to assume all of Tenant’s obligations hereunder as a condition to such transfer being permitted without Landlord’s prior written consent.
24.5 Reasonable Provisions. Tenant expressly agrees that the provisions of this Paragraph 24 are not unreasonable standards or conditions for purposes of Section 1951.4(b)(2) of the California Civil Code, as amended from time to time, under bankruptcy laws, or for any other purpose.
24.6 Attorneys’ Fees. Tenant shall pay, as Additional Rent, Landlord’s reasonable attorneys’ fees for reviewing, investigating, processing and/or documenting any requested assignment or sublease, whether or not Landlord’s consent is granted (provided that such attorneys’ fees shall not exceed, with respect to any assignment and/or sublease constituting a typical and customary direct assignment and/or sublease (as distinct from, for example, a sublease assignment and/or sub-sublease), One Thousand Five Hundred Dollars ($1,500.00) per assignment or sublease).
43
24.7 Involuntary Transfer. No interest of Tenant in this Lease shall be assignable involuntarily or by operation of law, including, without limitation, the transfer of this Lease by testacy or intestacy. Each of the following acts shall be considered an involuntary assignment:
(a) If Tenant is or becomes bankrupt or insolvent, makes an assignment for the benefit of creditors, or a proceeding under any bankruptcy law is instituted in which Tenant is the bankrupt; or, if Tenant is a partnership or consists of more than one person or entity, if any partner of the partnership or other person or entity is or becomes bankrupt or insolvent, or makes an assignment for the benefit of creditors;
(b) Levy of a writ of attachment or execution on this Lease;
(c) Appointment of a receiver with authority to take possession of the Premises in any proceeding or action to which Tenant is a party; or
(d) Foreclosure of any lien affecting Tenant’s interest in the Premises, which lien was not consented to by Landlord pursuant to Paragraph 24.8.
An involuntary assignment shall constitute a Default by Tenant and Landlord shall have the right to terminate this Lease, in which case this Lease shall not be treated as an asset of Tenant. In the event the Lease is not terminated, the provisions of Paragraph 24.2(c) regarding rents paid by an assignee or subtenant shall apply. If a writ of attachment or execution is levied on this Lease, or if any involuntary proceeding in bankruptcy is brought against Tenant or a receiver is appointed, Tenant shall have sixty (60) days in which to cause the attachment or execution to be removed, the involuntary proceeding dismissed, or the receiver removed.
24.8 Hypothecation. Tenant shall not hypothecate, mortgage or encumber Tenant’s interest in this Lease or in the Premises or otherwise use this Lease as a security device in any manner without the consent of Landlord, which consent Landlord may withhold in its sole and absolute discretion. Consent by Landlord to any such hypothecation or creation of a lien or mortgage shall not constitute consent to an assignment or other transfer of this Lease following foreclosure of any permitted lien or mortgage.
24.9 Binding on Successors. The provisions of this Paragraph 24 expressly apply to all heirs, successors, sublessees, assignees and transferees of Tenant.
25. Successors. Subject to the provisions of Paragraph 24 above and Paragraph 30.2(a) below, the covenants, conditions, and agreements contained in this Lease shall be binding on the parties hereto and on their respective heirs, successors and assigns.
26. Landlord Default; Mortgagee Protection. Landlord shall not be in default under this Lease unless Tenant shall have given Landlord written notice of the breach and, within thirty (30) days after notice, Landlord has not cured the breach or, if the breach is such that it cannot reasonably be cured under the circumstances within thirty (30) days, has not commenced diligently to prosecute the cure to completion. Any money judgment obtained by Tenant based upon Landlord’s breach of this Lease shall be satisfied only out of the proceeds of the sale or disposition of Landlord’s interest in the Premises (whether by Landlord or by execution of judgment). In the event of any breach or default of this Lease by Landlord, Tenant shall not have any recourse against any of Landlord’s members, officers, directors, shareholders, or partners with respect to such breach and under no circumstances
44
shall Landlord be liable to Tenant for any claim of consequential damages, including, without limitation, lost profits, loss of income or loss of business. In the event of any default on the part of Landlord under this Lease, Tenant shall give notice by nationally-recognized courier, or registered or certified mail to any beneficiary of a deed of trust or any mortgagee of a mortgage affecting the Premises, Building or Land whose address shall have been furnished to Tenant, and shall offer such beneficiary or mortgagee a reasonable opportunity to cure the default, including time to obtain possession of the Premises by power of sale or judicial foreclosure, if such should prove necessary to effect a cure.
27. Exhibits. All exhibits attached to this Lease shall be deemed to be incorporated herein by the individual reference to each such exhibit, and all such exhibits shall be deemed to be a part of this Lease as though set forth in full in the body of the Lease.
28. Surrender of Lease Not Merger. The voluntary or other surrender of this Lease by Tenant, or a mutual cancellation thereof, shall not work a merger and shall, at the option of Landlord, terminate all or any existing subleases or subtenants, or may, at the option of Landlord, operate as an assignment to Landlord of any or all such subleases or subtenants.
29. Waiver. The waiver by Landlord of any breach of any term, covenant or condition herein contained (or the acceptance by Landlord of any performance by Tenant after the time the same shall become due) shall not be deemed to be a waiver of such term, covenant or condition or any subsequent breach thereof or of any other term, covenant or condition herein contained, unless otherwise expressly agreed to by Landlord in writing. The acceptance by Landlord of any sum less than that which is required to be paid by Tenant shall be deemed to have been received only on account of the obligation for which it is paid (or for which it is allocated by Landlord, in Landlord’s reasonable discretion, if Tenant does not designate the obligation as to which the payment should be credited), and shall not be deemed an accord and satisfaction notwithstanding any provisions to the contrary written on any check or contained in any letter of transmittal. The acceptance by Landlord of any sum tendered by a purported assignee or transferee of Tenant shall not be deemed a consent by Landlord to any assignment or transfer of Tenant’s interest herein. No custom or practice which may arise between the parties hereto in the administration of the terms of this Lease shall be construed as a waiver or diminution of Landlord’s right to demand performance by Tenant in strict accordance with the terms of this Lease.
30. General.
30.1 Captions and Headings. The captions and paragraph headings used in this Lease are for convenience of reference only. They shall not be construed to limit or extend the meaning of any part of this Lease, and shall not be deemed relevant in resolving any question of interpretation or construction of any paragraph of this Lease.
30.2 Definitions.
(a) Landlord. The term Landlord as used in this Lease, so far as the covenants or obligations on the part of Landlord are concerned, shall be limited to mean and include only the owner at the time in question of the fee title to the Premises. In the event of any transfer(s) of such interest by Landlord, so long as Landlord’s transferee expressly assumes the obligations on the part of the Landlord to be performed under this Lease (including the Improvement Agreement) accruing after the effective date of such transfer, the Landlord herein named (and in case of any subsequent transfers or conveyances, the then grantor) shall have no further liability under this Lease to Tenant except as to matters of liability which have accrued and are unsatisfied as of the date
45
of such transfer, it being intended that, subject to such express assumption on the part of the transferee(s) in question, the covenants and obligations contained in this Lease on the part of Landlord shall be binding on Landlord and its successors and assigns only during and in respect of their respective periods of ownership of the fee; provided that any funds in the possession of Landlord or the then grantor and as to which Tenant has an interest, less any deductions permitted by law or this Lease, shall be turned over to the grantee. The covenants and obligations contained in this Lease on the part of Landlord shall, subject to the provisions of this Paragraph 30.2(a), be binding upon each Landlord and such Landlord’s heirs, personal representatives, successors and assigns only during its respective period of ownership.
(b) Agents. For purposes of this Lease and without otherwise affecting the definition of the word “agent” or the meaning of an “agency,” the term “agents” shall be deemed to include the agents and employees of Landlord or Tenant, as the case may be, and also with respect to Tenant, its officers, directors, members, partners, invitees, contractors, successors, representatives, subcontractors, guests, customers, suppliers, affiliated companies, and any other person or entity related in any way to Tenant.
(c) Interpretation of Terms. The words “Landlord” and “Tenant” as used herein shall include the plural as well as the singular. Words in the neuter gender include the masculine and feminine and words in the masculine or feminine gender include the neuter.
30.3 Copies. Any executed copy of this Lease shall be deemed an original for all purposes.
30.4 Time of Essence. Time is of the essence as to each and every provision in this Lease requiring performance within a specified time.
30.5 Severability. In case any one or more of the provisions contained herein shall for any reason be held to be invalid, illegal or unenforceable in any respect, such invalidity, illegality or unenforceability shall not affect any other provision of this Lease, but this Lease shall be construed as if such invalid, illegal or unenforceable provision had not been contained herein. However, if Tenant’s obligation to pay the Rentals is determined to be invalid or unenforceable, this Lease at the option of Landlord shall terminate.
30.6 Governing Law. This Lease shall be construed and enforced in accordance with the laws of the State of California.
30.7 Joint and Several Liability. If Tenant is more than one person or entity, each such person or entity shall be jointly and severally liable for the obligations of Tenant hereunder. If Tenant is a husband and wife, the obligations hereunder shall extend to their sole and separate property as well as community property.
30.8 Construction of Lease Provisions. Although the provisions of this Lease were prepared by Landlord, the doctrine or rule of construction that ambiguities in this Lease shall be construed against the party drafting the same shall not be employed in connection with this Lease and this Lease shall be construed in accordance with the general tenor of the language to reach a fair and equitable result.
30.9 Tenant’s Financial Statements. Tenant hereby warrants that all financial statements delivered by Tenant to Landlord are true, correct, and complete, and, where expressly indicated, prepared in accordance with generally accepted accounting principles. Tenant acknowledges and agrees that Landlord is relying on such financial statements in accepting this Lease, and that a breach of Tenant’s warranty as to such financial statements shall constitute a Default by Tenant.
46
30.10 Withholding of Landlord’s Consent. Notwithstanding any other provision of this Lease where Tenant is required to obtain the consent (whether written or oral) of Landlord to do any act, or to refrain from the performance of any act, Tenant agrees that if Tenant is in default with respect to any term, condition, covenant or provision of this Lease, then Landlord shall be deemed to have acted reasonably in withholding its consent if said consent is, in fact, withheld.
31. Signs; Monument Signage and Building Signage. Tenant shall not place or permit to be placed any sign or decoration on the Land or on the exterior of the Building or that would be visible from the exterior of the Building or Premises, without the prior written consent of Landlord, which consent shall not be unreasonably withheld. Tenant may place “for lease” signs in connection with efforts to assign or sublease the Premises, subject to the prior written consent of Landlord, which consent shall not be unreasonably withheld or delayed. Except as otherwise expressly set forth below with respect to the Monument Signage, any and all signs installed by or on behalf of Tenant pursuant to this Paragraph 31 shall be removed by Tenant, at Tenant’s cost, on or prior to Lease Termination. In no event shall any such sign revolve, rotate, move or create the illusion of revolving, rotating or moving. Tenant, upon written notice by Landlord, shall immediately remove any of Tenant’s signs or decorations that Tenant has placed or permitted to be placed on the Land or the exterior of the Building without the prior written consent of Landlord. If Tenant fails to so remove such sign or decoration within five (5) days after Landlord’s written notice, Landlord may enter the Premises and remove such sign or decoration and Tenant shall pay Landlord, as Additional Rent upon demand, the cost of such removal. All signs placed on the Premises, Building or Land by Tenant shall comply with any and all recorded documents affecting the Premises, including but not limited to any Declaration of Conditions, Covenants and Restrictions; and applicable statutes, ordinances, rules and regulations of governmental agencies having jurisdiction thereof. At Landlord’s option, Tenant shall at Lease Termination remove any sign which it has placed on the Premises, Land or the Building, and shall, at its sole cost, repair any damage caused by the installation or removal of such sign.
From and after the Effective Date, Tenant shall have the right to install one (1) Project-standard monument sign identifying “Calix” in the portion of the Tenant Parking Area delineated on Exhibit B (“Monument Signage”). Tenant shall cause the Monument Signage to be made in accordance with the Project’s master signage plan and in compliance with all applicable ordinances and regulations of the City of San Jose. The exact location, size, manner of illumination, color, design, materials and all other aspects of the Monument Signage shall be in Tenant’s reasonable discretion (subject to Landlord’s prior reasonable approval). The cost of procuring, designing, fabricating and installing the Monument Signage, and any and all costs relating to the maintenance, repair, restoration and removal thereof (provided that Tenant shall only be obligated to remove the actual signage (e.g., lettering, logos and the like), as distinct from the Monument Signage base and/or pedestal itself), shall be at Tenant’s sole cost and expense. Tenant’s obligation to pay such costs shall survive the expiration or earlier termination of this Lease (as amended). Tenant’s right to install the Monument Signage shall be exclusive to Tenant with respect to the Tenant Parking Area (and only such Tenant Parking Area).
So long as Tenant leases and occupies the entire Building (“Minimum Occupancy Requirement”), Tenant shall have the right to install and maintain one (1) exterior-mounted sign identifying “Calix” on the Building (“Building Signage”), which right shall be exclusive to Tenant with respect to the Building (and only such Building). The Building Signage shall be subject to the prior written approval of the City of San Jose, and, if such approval is obtained, designed by Tenant, at Tenant’s sole cost and expense, in compliance with all applicable ordinances and regulations of the City of San Jose, and in accordance with the Building’s master signage plan and signage specifications. The exact size, weight, manner of illumination, finishes, colors, design, type, location(s), and method of installation of the Building Signage shall be consistent and compatible with the design of the Building, and subject
47
to (A) Landlord’s prior written approval (which approval shall not be unreasonably withheld) and (B) compliance with the Building’s master signage plan and signage specifications. After Tenant receives the appropriate approvals for Building Signage as required herein, Landlord shall cause the Building Signage to be installed, at Tenant’s sole cost and expense. Upon the expiration or earlier termination of this Lease, and/or in the event Tenant no longer meets the Minimum Occupancy Requirement, Landlord may remove or require Tenant to remove the Building Signage and restore the Building to its condition prior to the installation of the Building Signage in accordance with all applicable laws in effect on the date of such restoration. If Tenant no longer meets the Minimum Occupancy Requirement, (A) Landlord’s election to require removal of the Building Signage shall be in Landlord’s sole and absolute discretion and (B) if Landlord elects to require such removal, (i) such election on the part of Landlord shall be without any sums or other consideration being due or payable to Tenant and (ii) Tenant’s rights pursuant to this Paragraph 31 shall thereafter be null and void and of no further force or effect with respect to such Building Signage. Any and all costs and expenses of installation, maintenance, repair and/or removal of the Building Signage, and/or restoration of the Building after the removal of the same, shall be paid by Tenant, at Tenant’s sole cost and expense. Tenant’s obligation to pay such costs shall survive the expiration or earlier termination of this Lease (as amended).
Tenant’s rights with respect to the Monument Signage and Building Signage shall be personal to the entity then constituting the “Tenant” under this Lease, and shall not be assignable or transferable to any third party; provided, however, that such Monument Signage and Building Signage rights may be assigned by such entity then constituting the Tenant to (A) any assignee of this Lease to which Landlord shall have expressly consented in writing (pursuant to the terms and conditions of this Lease) and/or (B) a Permitted Transferee to which this Lease has been assigned, in which event, such Building Signage and Monument Signage shall identify, as applicable, such assignee or Permitted Transferee.
32. Landlord as Party Defendant. If, by reason of any act or omission by Tenant or Tenant’s agents, Landlord is made a party defendant concerning this Lease, or any portion of the Project, Tenant shall indemnify Landlord against all liability actually incurred (or threatened against) Landlord as a party defendant, including all damages, costs and reasonable attorneys’ fees.
33. Landlord Not a Trustee. Landlord shall not be deemed to be a trustee of any funds paid to Landlord by Tenant (or held by Landlord for Tenant) pursuant to this Lease, including without limitation any security deposit. Landlord shall not be required to keep any such funds separate from Landlord’s general funds or segregated from any funds paid to Landlord by (or held by Landlord for) other tenants of the Project. Any funds held by Landlord pursuant to this Lease shall not bear interest.
34. Interest. Any payment due from Tenant to Landlord shall bear interest from the date due until paid, at an annual rate equal to the greater of: ten percent (10%); or five percent (5%) plus the rate established by the Federal Reserve Bank of San Francisco, as of the twenty-fifth (25th) day of the month immediately preceding the due date, on advances to member banks under Sections 13 and 13(a) of the Federal Reserve Act, as now in effect or hereafter from time to time amended. In addition, Tenant shall pay all costs and reasonable attorneys’ fees incurred by Landlord in the collection of such amounts.
35. Surrender of Premises. Upon the expiration of the Lease Term, or upon any earlier termination of this Lease, Tenant shall quit and surrender possession of the Premises to Landlord in as good order and condition as the same are now and hereafter may be improved by Landlord or Tenant, reasonable wear and tear and repairs which are Landlord’s obligation excepted, and shall, without expense to Landlord, remove or cause to be removed from the Premises all debris and rubbish, all furniture, equipment (including, without limitation, any and all computer,
48
network, telecommunications and/or other systems or equipment installed in or about the Premises by or on behalf of Tenant prior to or during the term of this Lease, and any and all wiring and/or cabling related thereto (irrespective of whether such wiring and cabling is installed or located in the Premises and/or any electrical rooms, pathways, shafts, risers, conduits or plenums located within the Building and/or appurtenant thereto, it being the intent of the parties that Tenant shall remove the same, at Tenant’s sole cost and expense)), business and trade fixtures, free-standing cabinet work, moveable partitioning and other articles of personal property owned by Tenant and/or installed or placed in the Premises by or on behalf of Tenant, and all similar articles of any other persons claiming under Tenant unless Landlord exercises its option to have any subleases or subtenancies assigned to it, and Tenant shall repair all damage to the Premises and/or Building resulting from the installation and removal of such items to be removed and restore such areas to the condition that existed prior to the installation thereof in accordance with all applicable laws, statutes, building codes and regulations in effect as of the date of such repair and restoration. In addition, prior to Lease Termination, Tenant shall, at its sole cost, take all actions necessary to close out any Hazardous Material permit(s) issued to Tenant (or any person or entity claiming an interest in the Premises, or any portion thereof, under, by or through Tenant) and obtain environmental closure from the applicable governmental authority with respect to the use of Hazardous Materials on or in the Premises by Tenant (or any person or entity claiming an interest in the Premises, or any portion thereof, under by or through Tenant). If the Premises are not so surrendered at Lease Termination, Tenant shall indemnify, defend and hold Landlord harmless from and against any loss, damage, expense, claim or liability resulting from delay by Tenant in so surrendering the Premises including, without limitation, any claims made by any succeeding tenant or losses to Landlord due to lost opportunities to lease to succeeding tenants.
Any personal property of Tenant not removed by Tenant upon the expiration of the Lease Term (or within five (5) business days after a termination by reason of Tenant’s default), as provided in this Lease, shall be considered abandoned and Landlord may remove any or all of such items and dispose of the same in any manner or store the same in a public warehouse or elsewhere for the account and at the expense and risk of Tenant, and if Tenant shall fail to pay the cost of storing any such property after it has been stored for a period of ninety (90) days or more, Landlord may sell any or all of such property at public or private sale, in such manner and at such times and places as Landlord, in its sole discretion, may deem proper, without notice or to demand upon Tenant, for the payment of all or any part of such charges or the removal of any such property, and shall apply the proceeds of such sale: first, to the cost and expense of such sale, including reasonable attorneys’ fees for services rendered; second, to the payment of the cost of or charges for storing any such property; third, to the payment of any other sums of money which may then or thereafter be due to Landlord from Tenant under any of the terms hereof; and fourth, the balance, if any, to Tenant.
The provisions of this Paragraph 35 shall survive Lease Termination.
36. Labor Disputes. In the event Tenant shall in any manner be involved in or be the object of a labor dispute which subjects the Premises or any part of the Project to any picketing, work stoppage or other concerted activity which in the reasonable opinion of Landlord is detrimental to the operation of the Project or its tenants, Landlord shall have the right to require Tenant, at Tenant’s own expense and within a reasonable period of time, to use Tenant’s best efforts to either resolve such labor dispute or terminate or control any such picketing, work stoppage or other concerted activity to the extent necessary to eliminate any interference with the operation of the Project. To the extent such labor dispute interferes with the performance of Landlord’s duties hereunder, Landlord shall be excused from the performance of such duties. Failure by Tenant to use its best efforts to so resolve such dispute or terminate or control such picketing, work stoppage or other concerted activity within a reasonable period of time shall constitute a Default by Tenant hereunder. Nothing contained in this Paragraph 36 shall be construed
49
as placing Landlord in an employer/employee relationship with any of Tenant’s employees or with any other employees who may be involved in such labor dispute.
37. No Partnership or Joint Venture. Nothing in this Lease shall be construed as creating a partnership or joint venture between Landlord, Tenant, or any other party, or cause Landlord to be responsible for the debts or obligations of Tenant or any other party.
38. Entire Agreement. Any agreements, warranties, or representations not expressly contained herein shall in no way bind either Landlord or Tenant, and Landlord and Tenant expressly waive all claims for damages by reason of any statement, representation, warranty, promise or agreement, if any, not contained in this Lease. This Lease supersedes and cancels any and all previous negotiations, arrangements, brochures, agreements and understandings, whether written or oral, between Landlord and its agents and Tenant and its agents with respect to the Project or this Lease. This Lease constitutes the entire agreement between the parties hereto and no addition to, or modification of, any term or provision of this Lease shall be effective until and unless set forth in a written instrument signed by both Landlord and Tenant.
39. Submission of Lease. Submission of this instrument for Tenant’s examination or execution does not constitute a reservation of space nor an option to lease. This instrument shall not be effective until executed by both Landlord and Tenant. Execution of this Lease by Tenant shall constitute an offer by Tenant to lease the Premises, which offer shall be deemed accepted by Landlord when this Lease is executed by Landlord and delivered to Tenant.
40. Quiet Enjoyment. Landlord covenants and agrees with Tenant that upon Tenant paying Rentals and performing its covenants and conditions under the Lease, Tenant shall and may peaceably and quietly have, hold and enjoy the Premises for the Lease Term, subject, however, to the terms of this Lease and of any mortgages or deeds of trust affecting the Premises, and the rights reserved by Landlord hereunder.
41. Authority. The undersigned parties hereby warrant that they have proper authority and are empowered to execute this Lease on behalf of the Landlord and Tenant, respectively. If Tenant is a corporation, limited liability company or partnership, each individual executing this Lease on behalf of said corporation, limited liability company or partnership represents and warrants that he is duly authorized to execute and deliver this Lease on behalf of said corporation in accordance with a duly adopted resolution of the Board of Directors of said corporation or in accordance with the by-laws of said corporation, or on behalf of said limited liability company in accordance with a duly adopted resolution of the managing member or members of the limited liability company, or on behalf of said partnership in accordance with the partnership agreement of such partnership, and that this Lease is binding upon said corporation, limited liability company or partnership, as the case may be, in accordance with its terms. If Tenant is a corporation, and this Lease is not executed by two corporate officers, Tenant shall upon execution of this Lease, deliver to Landlord evidence of the authority of the individual executing this Lease on behalf of Tenant to execute this Lease on behalf of Tenant. In the event Tenant should fail to deliver such evidence to Landlord upon execution of this Lease, Landlord shall not be deemed to have waived its right to require delivery of such evidence, and at any time during the Lease Term Landlord may request Tenant to deliver the same, and Tenant agrees it shall thereafter promptly deliver such evidence to Landlord. If Tenant is a corporation, Tenant warrants that: (a) Tenant is a valid and existing corporation; (b) Tenant is qualified to do business in California; (c) all franchise and corporate taxes, together with all related fees, are paid to date, and will be paid when due; (d) all required forms and reports will be filed when due; and (e) the signers of this Lease are properly authorized to execute this Lease.
50
42. Brokerage Commissions. Each party hereto represents and warrants to the other that it has not retained or worked with any broker or finder other than Cushman & Wakefield, representing Landlord, and CBRE, Inc., representing Tenant, in connection with the negotiation of this Lease and/or the consummation of the transaction contemplated hereby. Landlord agrees to pay Cushman & Wakefield a brokerage commission in connection with this Lease pursuant to a separate agreement between Landlord and Cushman & Wakefield, and Cushman & Wakefield shall pay a portion of such leasing commissions to CBRE, Inc. pursuant to a separate agreement between Cushman & Wakefield and CBRE, Inc. Subject to Landlord’s obligation to pay Cushman & Wakefield pursuant to the terms and conditions of this Paragraph 42 above, Landlord and Tenant do each hereby agree to indemnify, defend and hold the other harmless from and against liability for compensation or charges which may be claimed by any broker, finder or other similar party by reason of any dealings or actions of the indemnifying party, including any costs, expenses and/or attorneys’ fees reasonably incurred with respect thereto. The obligation to indemnify, defend and hold harmless as set forth in the immediately preceding sentence shall survive the termination of this Lease.
43 Transportation and Energy Management. Tenant shall fully comply with all present and future programs intended to manage parking, transportation, traffic, energy or any other programs affecting the Project.
44. Option to Extend. Landlord hereby grants to Tenant two (2) options (each, an “Option” and, collectively, the “Options”) to extend the initial term of the Lease (“Initial Term”) for additional periods of five (5) years each (each, an “Option Term”) as to the entire Premises, which extension(s) shall be upon and subject to the terms and conditions set forth in this Lease. Tenant shall have no right to extend the Initial Term except as expressly provided in this Paragraph 44. The first Option Term shall commence upon the expiration of the Initial Term and the second Option Term shall commence upon the expiration of the first Option Term. Tenant may not exercise the second Option if Tenant has not exercised the first Option. Each Option shall be exercised, if at all, by Tenant’s delivery of both (i) written notice of exercise to Landlord and (ii) as a condition precedent to Tenant’s right to exercise the applicable Option, a renewal or substitute letter of credit, in the Letter of Credit Amount, expiring not earlier than one hundred twenty (120) days after the applicable Option Term, in accordance with, and subject to the terms and conditions of, Paragraph 5 of this Lease, no later than nine (9) months nor earlier than twelve (12) months prior to the expiration date of the Initial Term with respect to the first Option, and no later than nine (9) months nor earlier than twelve (12) months prior to the expiration of the first Option Term with respect to the second Option. The Rent to be paid during each Option Term shall be the Prevailing Market Rent, as hereinafter defined. As used herein, the term “Prevailing Market Rent” shall mean the rent (including any additional rent and/or applicable base year) and all other monetary payments and escalations that Landlord could obtain from a third party tenant comparable to Tenant desiring to lease the Premises for the applicable Option Term, taking into account the age of the Project, the size of the Premises, the type and quality of tenant improvements, the location of the Premises, the quality of construction of the Project and the Premises, the services provided under the terms of the Lease, the rent and brokers commissions then being paid for the renewal of leases of space comparable to the Premises in the City of San Jose, and all other factors, including any rent abatement concessions, tenant improvement allowances and all other concessions then prevailing in the market for office/research and development buildings in San Jose, that would be relevant to a third party in determining the rent such party would be willing to pay to lease the Premises for the applicable Option Term; provided, however, in no event shall the Prevailing Market Rent be less than (A) with respect to the first Option Term, the Rent payable by Tenant to Landlord at the expiration of the Initial Term and/or (B) with respect to the second Option Term, the Rent payable by Tenant to Landlord at the expiration of the first Option Term. If (i) a Default by Tenant exists or ripens under any of the terms, covenants, or conditions of this Lease or (ii) Tenant does not occupy at least fifty percent (50%) of the Premises (as then configured), either at the time Tenant exercises the applicable Option or at any time thereafter
51
prior to the commencement date of the applicable Option Term (each, an “Option Commencement Date”), then in each case, Tenant’s exercise of the applicable Option shall be of no force and effect and Tenant shall have no rights hereunder to extend the Initial Term.
The Options shall be personal to the entity then constituting the Tenant under this Lease, and shall not be transferable or assignable to any third party, except (i) an assignee of this Lease to which Landlord shall have expressly consented in writing (pursuant to the terms and conditions of this Lease) and/or (ii) a Permitted Transferee to which this Lease has been assigned (either being a “Permitted Option Assignee”); provided, however, that Tenant hereby agrees and acknowledges that, if any such Permitted Option Assignee exercises an Option, the assigning Tenant (to the extent still in existence), in each instance (i.e., any and all assignors), shall remain fully liable for any and all obligations of the “Tenant” under this Lease during the applicable Option Term (and any extensions thereof).
On or before five (5) business days after Tenant provides Landlord with notice of Tenant’s exercise of an Option, Landlord and Tenant shall commence negotiations to agree upon the Prevailing Market Rent applicable thereto. If Landlord and Tenant are unable to reach agreement on the Prevailing Market Rent within fifteen (15) business days after the date negotiations commence, then the Prevailing Market Rent shall be determined as follows:
(a)If Landlord and Tenant are unable to agree on the Prevailing Market Rent within said fifteen (15) business day period, then, within five (5) business days thereafter, Landlord and Tenant shall each simultaneously submit to the other in a sealed envelope its good faith estimate of the Prevailing Market Rent. If the higher of such estimates is not more than one hundred five percent (105%) of the lower of such estimates, then the Prevailing Market Rent shall be the average of the two estimates; provided, however, in no event shall the Prevailing Market Rent be less than (A) with respect to the first Option Term, the Rent payable by Tenant to Landlord at the expiration of the Initial Term and/or (B) with respect to the second Option Term, the Rent payable by Tenant to Landlord at the expiration of the first Option Term.
(b) If the matter is not resolved by the exchange of estimates as provided in subparagraph (a) above, then either Landlord or Tenant may, by written notice to the other on or before five (5) business days after the exchange of such estimates, require that the disagreement be resolved by arbitration. Within ten (10) business days after such notice, the parties shall select as an arbitrator a mutually acceptable MAI appraiser with experience in real estate activities, including at least ten (10) years’ experience in appraising office space in the County of Santa Clara, California. If the parties cannot agree on an appraiser, then, within a second period of ten (10) business days, each party shall select an independent MAI appraiser meeting the aforementioned criteria and, within a third period of ten (10) business days, the two appointed appraisers shall select a third appraiser meeting the aforementioned criteria and the third appraiser shall determine the Prevailing Market Rent pursuant to subparagraph (c) below. If one party shall fail to make such appointment within said second ten (10) business day period, then the appraiser chosen by the other party shall be the sole arbitrator.
(c) Once the arbitrator has been selected as provided for in subparagraph (b) above, then, as soon as practicable but in any case within ten (10) business days thereafter, the arbitrator shall select one of the two estimates of the Prevailing Market Rent submitted by Landlord and Tenant, which estimate shall be the one that is closer to the Prevailing Market Rent as determined by the arbitrator; provided, however, in no event shall the Prevailing Market Rent be less than (A) with respect to the first Option Term, the Rent payable by Tenant to Landlord at the expiration of the Initial Term and/or (B) with respect to the second Option Term, the Rent payable by Tenant to Landlord at the expiration of the first Option Term. The arbitrator’s selection shall be rendered in writing to both
52
Landlord and Tenant and shall be final and binding upon them and shall not be subject to appeal. If the arbitrator believes that expert advice would materially assist such arbitrator, then the arbitrator may retain one or more qualified persons, including, but not limited to, legal counsel, brokers, architects or engineers, to provide such expert advice. The party whose estimate is not chosen by the arbitrator shall pay the costs of the arbitrator and of any experts retained by the arbitrator; provided, however, that any fees of any counsel or expert engaged directly by Landlord or Tenant shall be borne by the party retaining such counsel or expert.
45. Roof Space Equipment.
45.1 Right to Use. Subject to availability, upon no less than thirty (30) days prior written notice, Tenant shall have the right to use, at no additional cost, a portion of the roof of the Building, which portion of the roof shall be in such location(s), and encompass such area(s), as may be designated by Landlord from time to time, in Landlord’s reasonable discretion (such portion(s) of the roof being the “Roof Space”), to install, operate and maintain (provided, however, that the purchase, installation, operation and maintenance thereof shall be at Tenant’s sole cost and expense) the following equipment (including the wiring, cabling and other equipment relating thereto) to facilitate the conduct of Tenant’s business operations from the Premises (and only for such purpose): (i) antenna(ae), satellite dish and/or other telecommunications equipment and/or (ii) supplemental heating, ventilation and air conditioning equipment (such antenna(ae), satellite dish, telecommunications and/or supplemental HVAC equipment, as applicable, being, collectively, the “Roof Space Equipment”). Tenant shall provide Landlord with schematics for the Roof Space Equipment Tenant desires to install in the Roof Space showing the size, height and space requirements for the Roof Space Equipment. Thereafter, Landlord and Tenant shall mutually agree upon the location of the Roof Space based on available locations that will accommodate the Roof Space Equipment (in Landlord’s reasonable discretion).
45.2 Installation; Relocation. The installation of any Roof Space Equipment shall be treated as an Alteration subject to all of the terms and conditions of Paragraph 13 of this Lease. Without limiting the generality of the foregoing, the size, height and placement of all Roof Space Equipment shall be subject to Landlord’s reasonable review and approval and Tenant shall, at Tenant’s sole cost and expense, screen and/or cover all Roof Space Equipment as reasonably directed by Landlord. Tenant shall, at Tenant’s sole cost and expense, install, construct, maintain, use, repair and remove Tenant’s Roof Space Equipment in compliance with all laws, statutes, permit requirements, building codes, ordinances and governmental rules and regulations now in force or which may hereafter be enacted or promulgated. Tenant’s installation, construction, use, maintenance, repair and removal of Roof Space Equipment in the Roof Space shall not obstruct, impair or interfere with the rights of other tenants or occupants of the Project in existence as of the Effective Date or injure them. If Landlord requires access to the portion of the roof within the Roof Space for maintenance and repair, Landlord shall give Tenant written notice of such requirement and the dates on which Landlord proposes to perform such maintenance and repair. Prior to the date specified in Landlord’s notice, Tenant shall, at Tenant’s sole cost and expense, take all actions necessary to remove the Roof Space Equipment from the Roof Space and make the Roof Space available to Landlord for roof maintenance and repair. Upon completion of the roof maintenance and repair, Tenant shall reinstall the Roof Space Equipment at its sole cost and expense. If emergency roof repairs are necessary, Landlord may itself remove the Roof Space Equipment from the affected area, after first using reasonable efforts to notify Tenant, and Landlord shall not be liable to Tenant for any loss, cost, damage or expense arising from such removal during an emergency. In connection with the installation by Tenant of the Roof Space Equipment, Landlord shall grant Tenant access to and use of the Building risers, to the extent reasonably necessary.
45.3 Landlord Approval Right. Any contractor or person selected by Tenant to perform any work contemplated for the installation, maintenance, repair or removal of the Roof Space Equipment and all plans
53
and specifications for such work shall first be reasonably approved by Landlord in writing. In order to allow Landlord time to post a notice of non-responsibility, no such work by or on behalf of Tenant shall be allowed to commence until ten (10) business days following receipt by Landlord of written notice of the date Tenant proposes to commence the installation, maintenance, repair or removal of the applicable Roof Space Equipment.
45.4 Removal. Upon the expiration or earlier termination of this Lease, Tenant shall promptly remove all Roof Space Equipment, all anchors, and all separate meters and cabling, and repair any damage to the roof of the Building and other areas of the Project caused by such removal and return the Roof Space to Landlord in the same condition as received, ordinary wear and tear excepted.
45.5 Indemnity. Tenant shall indemnify, defend and hold Landlord, its partners, members, officers, directors, employees, agents and contractors and Landlord’s property and all tenants, occupants, invitees and licensees of Landlord harmless from and against all liabilities, claims, actions, causes of action, losses, damages, injuries, liens, costs and expenses, including attorneys’ fees and costs of suit, arising out of or relating to the installation, construction, presence, use, maintenance, repair, or removal of Roof Space Equipment. Such obligations of Tenant under this Paragraph 45 shall survive the expiration or earlier termination of this Lease.
45.6 Assumption of Risk. Tenant acknowledges that Landlord has no obligation to protect, secure, install, construct, maintain, repair or remove any Roof Space Equipment, and Tenant hereby assumes all risk of loss or damage to or from the Roof Space Equipment from any cause. Tenant hereby waives all claims against Landlord and its partners, officers, directors, employees, agents and contractors with respect to such loss or damage.
45.7 Permits. Tenant shall obtain all necessary municipal, state and federal permits and authorizations required to install, maintain and operate the Roof Space Equipment, and shall pay any charges levied by governmental agencies result therefrom.
46. Back-Up Generator. Subject to the terms and conditions of this Paragraph 46 and Paragraph 6 above, and so long as the Tenant under this Lease is in occupancy and possession of the entire Premises, upon no less than thirty (30) days’ prior written notice to Landlord, Tenant shall have the right, at its sole cost and expense, to install, in such exterior area of the Project as may be designated by Landlord (in Landlord’s reasonable discretion), an uninterrupted power supply system, consisting of a diesel generator and diesel fuel storage tank (such generator, together with any and all cabling and equipment relating thereto, shall be collectively referred to as the “Generator”), to supply electricity to the Premises during any interruption in electrical service to the Building. The fuel storage tank described in the preceding sentence shall be double-lined, vented and shall be equipped with leak detection alarms and otherwise acceptable to Landlord, in its reasonable discretion. Prior to installing a Generator, Tenant shall first submit plans and specifications therefor for Landlord’s approval. Landlord may require as a condition of its approval of the plans and specifications for the Generator, among other things, that Tenant install such protective modifications to the area where the Generator is located as Landlord deems necessary to prevent or contain any release or spill of Hazardous Materials (as defined in Paragraph 6.4 above). The location of the Generator shall provide a readily accessible path for fresh air, exhaust and electrical feeders, and otherwise be acceptable to Landlord, in Landlord’s reasonable discretion. Tenant shall install the Generator at its sole cost and expense in a good and workmanlike manner in accordance with any and all applicable laws, statutes, codes and ordinances of applicable governmental agencies. Tenant shall operate the Generator in accordance with Paragraph 6 of this Lease, all applicable Laws relating to Hazardous Materials, and all other applicable laws, statutes, codes and regulations of applicable governmental authorities. In furtherance of the preceding sentence, but without limiting the generality thereof, Tenant shall not install and/or operate the Generator unless and until Tenant shall have
54
obtained and provided Landlord with copies of (A) all permits and other governmental approvals required for the installation and/or operation of the Generator, including, without limitation, all necessary permits required by the City of San Jose, the Bay Area Air Quality Management District, State of California and all other applicable governmental authorities and (B) a “Hazardous Materials Data Sheet,” or similar submittal, filed with the City of San Jose for the use and operation of the Generator. Tenant shall be responsible, at Tenant’s sole cost and expense, for the installation of any electrical and/or water connections between the Generator and the Premises. If, after the initial installation of the Generator, Tenant modifies and/or replaces the same, then, unless otherwise directed by Landlord by written notice to Tenant given not less than thirty (30) days prior to the expiration of the term of this Lease (as the same may be extended), Tenant shall, at Tenant’s sole cost and expense, remove such modified and/or replaced Generator (it being the intent of the parties that, in accordance with Paragraph 13 above, Tenant shall not be obligated to remove the initially-installed Generator) and restore the area where such modified and/or replaced Generator is located to the condition that existed prior to, as applicable, such modification of the original Generator, or the installation of the replacement Generator, in accordance with all applicable laws, statutes, building codes and regulations in effect as of the date of such restoration. Tenant acknowledges that Landlord has no obligation to protect, secure, install, construct, maintain, repair, insure or, subject to the terms and conditions of Paragraph 13 and this Paragraph 46 above, remove the Generator (and/or any component and/or element thereof), and/or incur any cost, expense and/or liability in connection therewith, and Tenant hereby assumes all such cost, expense and/or liability relating thereto, including, without limitation, the risk of loss or damage to or from the Generator, from any cause. Tenant shall be solely responsible for any and all cost and/or expense associated with the Generator, including, without limitation, with respect to the procurement, installation (including the rental of space required for the installation thereof), operation, repair, replacement and, subject to the terms and conditions of Paragraph 13 and this Paragraph 46 above, removal thereof. Tenant shall pay directly to the taxing authority any taxes or fees imposed upon Tenant’s ownership, operation, maintenance and use of the Generator.
47. Counterparts; Electronic Signatures. This Lease may be executed in counterparts, each of which shall be deemed an original and together shall constitute one instrument. The execution of this Lease may be effected by facsimile or portable document format (“.pdf”) signatures, all of which shall be treated as originals. Landlord and Tenant each intend to be bound by its respective facsimile or .pdf transmitted signature, and each is aware that the other party will rely thereon, and each party waives any defenses to the enforcement of this Lease based solely on the fact that this Lease was delivered by facsimile or .pdf transmission. If the parties execute and deliver facsimile or .pdf transmission, the parties may thereafter deliver original signatures; provided, however, that the failure of either (or both) party(ies) to so deliver its/their original signatures shall in no event invalidate the mutual execution and delivery of such facsimile or .pdf signatures.
[Balance of page is intentionally blank; signature page follows on next page]
55
IN WITNESS WHEREOF, the parties have executed this Lease effective as of the date set forth below.
LANDLORD:
ORCHARD PARKWAY SAN JOSE, LLC
a California limited liability company
a California limited liability company
By: /s/ Scott R. Trobbe
Name: Scott R. Trobbe
Its Authorized Signatory
Dated: March 9, 2018
TENANT:
CALIX, INC.,
a Delaware corporation
By: /s/ Diane R. Prins Sheldahl
Name: Diane R. Prins Sheldahl
Its: SVP, Talent and Culture
Dated: March 9, 2018
By: /s/ Suzanne Tom
Name: Suzanne Tom
Its: VP, General Counsel
Dated: March 9, 2018
56
EXHIBITS
A | Floor Plan | Paragraph 1.4 (Premises shown cross-hatched or otherwise identified) |
B | Site Plan | Paragraph 1.4, Paragraph 1.13 and Paragraph 31 (Building shown cross-hatched or otherwise identified and the Land shown thereon pursuant to Paragraph 2.1; Tenant Parking Area delineated and location of Monument Signage) |
C | Improvement Agreement | Paragraph 2.2 |
D | Commencement Date Letter | Paragraph 3.1 |
E | Intentionally Omitted | |
F | Legal Description of Land | Paragraph 2.1 |
G | Form of Sight Draft | Paragraph 5 |
EXHIBIT A
FLOOR PLAN OF PREMISES




EXHIBIT B
SITE PLAN (i) SHOWING LOCATION OF BUILDING, (ii) DELINEATING TENANT PARKING AREA
and (iii) SHOWING LOCATION OF MONUMENT SIGNAGE
and (iii) SHOWING LOCATION OF MONUMENT SIGNAGE

EXHIBIT C
IMPROVEMENT AGREEMENT
This Improvement Agreement (the “Improvement Agreement”) is hereby made a part of that certain Net Lease Agreement (the “Lease”) dated as of March 9, 2018, and made and entered into by and between ORCHARD PARKWAY SAN JOSE, LLC, a California limited liability company, as Landlord, and CALIX, INC., a Delaware corporation, as Tenant. Except as otherwise defined herein, all capitalized terms used herein shall have the meanings as are ascribed thereto in the Lease or in the exhibits attached thereto. Pursuant to the terms and conditions of this Improvement Agreement, Landlord shall construct, or cause to be constructed, the Tenant Improvement Work referred to below in accordance with the Approved Plans referred to below.
All leasehold improvement work required to be performed by Landlord or Landlord’s contractor pursuant to this Improvement Agreement is hereinafter referred to as the “Tenant Improvement Work”. The Tenant Improvement Work shall consist of those leasehold improvements and work described or shown on the Approved Plans referred to below.
The Tenant Improvement Work shall be performed by a contractor designated by Landlord, in Landlord’s reasonable discretion (“Landlord’s Contractor”), in accordance with applicable Law in effect as of the date of the Lease, and, to the extent permits are required for such work, under validly issued municipal and other applicable permits. Landlord and Tenant hereby agree as follows with respect to the construction, installation or performance of the Tenant Improvement Work by Landlord for the benefit of Tenant:
1. PLANS FOR THE TENANT IMPROVEMENT WORK.
1.1 Approved Plans. Attached hereto as Exhibit C-1 is that certain document entitled Drawing Index and Issue Dates, dated March 8, 2018, prepared by ARC TEC, referencing Project No. 174343.05 (“Index Sheet”), which Index Sheet describes the plans and specifications that set forth, among other things, the design and layout of the Premises desired by Tenant, and the tenant improvements to be constructed, or caused to be constructed, therein by Landlord, including any special finishes and/or fixtures, mechanical, electrical and/or plumbing requirements, and/or special heating, ventilation and air conditioning requirements, of Tenant (such plans and specifications being the “Approved Plans”).
1.2 Project Schedule. Attached hereto as Exhibit C-2 is a tentative schedule for the construction of the Tenant Improvement Work, setting forth, among other things, milestones and an estimated timeline (all based upon Landlord’s good-faith projections as of the Effective Date). Promptly upon the commencement of the Tenant Improvement Work, Landlord shall furnish Tenant with a revised construction schedule setting forth Landlord’s revised good-faith projections of (x) the projected completion date(s) and milestones, (y) the deadlines for any approvals, submittals and/or other actions required to be taken by Tenant during such construction and/or (z) any other matters deemed necessary by Landlord to enable the substantial completion of the Tenant Improvement Work as soon after the Effective Date as is reasonably practicable; provided, however, that Landlord may from time to time during the prosecution of the Tenant Improvement Work modify or amend such schedule(s) due to any delays encountered and/or anticipated by Landlord. Landlord shall at all times use commercially efforts to meet such construction schedule(s) as the same may from time to time be modified or amended.
1.3 Requested Changes. Tenant shall make no changes or modifications to the Approved Plans without the prior written consent of Landlord, which consent may be withheld in Landlord’s reasonable discretion if such change or modification would directly or indirectly delay the substantial completion of construction of the
Tenant Improvement Work and/or increase the cost of designing or constructing the Tenant Improvement Work, or for any other reasonable reason. All such requests for changes and consent shall be subject to the procedures set forth in Paragraph 5 of this Improvement Agreement.
1.4 Required Changes. Tenant hereby consents to any changes to the Approved Plans that may be deemed necessary by Landlord from time to time (in Landlord’s reasonable discretion) to facilitate obtaining any permit(s) and/or approval(s) from any municipal department (or other governmental and/or quasi-governmental entity) having jurisdiction for the construction of such Tenant Improvement Work. Landlord shall notify Tenant of any and all such changes deemed necessary by Landlord within forty-eight (48) hours after such changes to the Approved Plans are made.
1.5 OAC Meetings. From and after the commencement of the Tenant Improvement Work, Tenant shall be notified by Landlord (which notification may be verbal) of the weekly meetings between Landlord, Landlord’s architect and Landlord’s contractor (“OAC Meetings”) regarding the progress/status of obtaining permits and approvals, and the performance of the Tenant Improvement Work. Such OAC Meetings shall be held at such location(s) within the Project (and at such time(s)) as may be designated by Landlord from time to time, and Landlord shall endeavor to provide Tenant with at least two (2) business days’ prior notice thereof. Tenant may attend all such OAC Meetings.
2. COST OF PERFORMING TENANT IMPROVEMENT WORK. Except as otherwise provided in this Improvement Agreement, Landlord shall bear all costs of designing and completing (or causing the design and completion of) the Tenant Improvement Work shown on the Approved Plans, including, without limitation, the amount required to be paid to Landlord’s architect, Landlord’s Contractor and any other actual costs and charges for architectural fees, permits, approvals, material and labor, contractor’s profit and general overhead incurred by Landlord for such Tenant Improvement Work.
Notwithstanding anything to the contrary contained in this Improvement Agreement, any and all cost and expense associated with, relating to and/or resulting from any change(s), modification(s) and/or other revisions to the Approved Plans (and/or the Tenant Improvement Work shown on such Approved Plans) requested by Tenant (collectively, “Change Order Costs”) shall be paid by Tenant, at Tenant’s sole cost and expense, in accordance with Paragraph 5 below (subject to the availability of the Converted Amount Maximum). Subject to the availability of the Converted Amount Maximum, Tenant shall pay one hundred percent (100%) of any such Change Order Costs to Landlord within seven (7) business days after Tenant’s receipt of Landlord’s reasonably-detailed invoice therefor. Tenant’s failure to make any payment of Change Order Costs within such seven (7) business day period shall automatically be deemed a Default by Tenant under the Lease and the amount so delinquent shall be deemed Additional Rent, and Landlord may exercise all rights and remedies set forth in Paragraph 14 of the Lease, and, in addition, Landlord may halt the performance of the Tenant Improvement Work until such payment is made, and such delay shall be deemed to be a Tenant Delay as defined in, and subject to the provisions of, Paragraph 7.2 below.
3.ACCEPTANCE OF PREMISES. As soon as all necessary permits and other governmental approvals, if any, required to construct the Tenant Improvement Work (the “Permits”) have been obtained and Landlord has entered into a general construction contract with Landlord’s Contractor, Landlord shall cause construction of the Tenant Improvement Work to be commenced and shall diligently prosecute such construction to completion. Tenant shall have five (5) business days following the date Landlord notifies Tenant that the Tenant Improvement Work is substantially complete to inspect the same and to identify in writing any portion of the Tenant Improvement Work
still to be completed by Landlord, defective items and/or items that do not conform to the Approved Plans or Laws (the “Punch List”). Landlord shall use commercially reasonable best efforts to cause all Punch List items to be remedied within thirty (30) days of Landlord’s receipt of such Punch List. Landlord shall cause such Punch List items to be diligently completed.
4. CONTRACTORS; MATERIALS. Except as otherwise herein provided or as may be otherwise approved by Landlord, all construction of the Tenant Improvement Work (including work to be performed at Tenant’s expense, if any) shall be performed by Landlord’s contractors (all of whom shall be duly licensed in California). Unless otherwise expressly described in the Approved Plans, all wall coverings, woodwork (if any), paint, floor coverings, and other finishes shall be of such quality, as may be determined by Landlord (“Building Standard”) from time to time for general tenant improvement work in the Project. Landlord and Tenant hereby agree and acknowledge that Tenant shall have the right to select, on or before such date that Landlord shall have informed Tenant is the “critical path” date (based upon the construction schedule) for making such selection, the color(s) of the paint and carpet so long as such selection(s) will not increase the cost of the item(s) in question and/or delay the construction of the Tenant Improvement Work.
5. EXTRA WORK.
5.1 In General. Except as expressly approved in writing by Landlord pursuant to the provisions of this Paragraph 5 or as otherwise expressly set forth in the Approved Plans, Landlord shall not be required to perform any additional or nonstandard work over and above that which is Building Standard, nor shall Landlord be required to revise the Approved Plans or any portion of the Tenant Improvement Work shown on such Approved Plans (all such additional, nonstandard, or revised work is hereinafter collectively referred to herein as “Extra Work”). Tenant acknowledges that any delays in the completion of the Tenant Improvement Work caused by the review of any request for, as well as any approval and/or performance of, Extra Work shall constitute a Tenant Delay as described in Paragraph 7.2 below.
5.2 Procedure. Any request by Tenant for Extra Work which would require a change to the Approved Plans shall be accompanied by all necessary additional and/or revised plans for such Extra Work, which revised plans shall be prepared at Tenant’s expense. Landlord shall promptly respond in writing to any request by Tenant for the performance of Extra Work. Any approval of such request may, in Landlord’s sole discretion, be conditioned upon any or all of the following: (i) subject to the availability of the Converted Amount Maximum, payment by Tenant, in advance, of all estimated costs of such Extra Work, which costs shall include Landlord’s supervision fee of five (5%) percent of the cost of such Extra Work, (ii) the written acknowledgment by Tenant that any additional time required to perform such Extra Work shall constitute a Tenant Delay, provided that Landlord shall give Tenant a reasonable estimate of how much additional time would be required, and (iii) any other conditions which Landlord may find to be reasonable under the circumstances. If Tenant shall fail to meet any such conditions precedent to the performance of Extra Work within five (5) business days following Landlord’s notice to Tenant of same, the proposed Extra Work shall be deemed disapproved by Tenant, and Landlord shall not be obligated to perform any portion thereof. As provided in Paragraph 1.3 of this Improvement Agreement, Landlord may withhold its consent in its sole discretion to any change or modification requested by Tenant that would directly or indirectly delay the substantial completion of construction of the Tenant Improvement Work, or increase the cost of designing or constructing the Tenant Improvement Work.
6. ENTRY MADE AT TENANT’S SOLE RISK.
6.1 Insurance. If Tenant constructs or installs any tenant improvements in the Premises prior to the Commencement Date of the Lease (which improvements shall be subject to the terms of Paragraphs 13 and 17 of the Lease), the Tenant shall, at its sole expense, be responsible for the securing of insurance by the Tenant’s contractor and for the maintenance of same by the Tenant’s contractor until completion and final acceptance of the work. Certificates of Insurance affording evidence of same shall be obtained from the Tenant’s contractor by the Tenant and delivered to the Landlord prior to the commencement of any work by the Tenant’s contractor. The required insurance coverage is as follows:
1. Worker’s Compensation and Employers’ Liability Insurance and affording thirty (30) days written notice of cancellation to Landlord. The Employers’ Liability minimum limits required are as follows:
Bodily Injury by accident $1,000,000 each accident
Bodily Injury by disease $1,000,000 policy limit
Bodily Injury by disease $1,000,000 each employee
2. General Liability Insurance on an occurrence basis for an amount of $2,000,000 each occurrence and including the following coverage:
a) | Premises and Operations coverage. |
b) | Owners and Contractors Protective coverage. |
c) | Products and Completed Operations coverage. |
d) | Blanket Contractual coverage. |
e) | Personal Injury coverage. |
f) | Broad Form Property Damage coverage, including completed operations. |
g) | An endorsement naming Landlord and its lender as additional insured. |
h) | An endorsement affording 30 days written notice to Landlord and Landlord’s lender in event of cancellation or material reduction in coverage. |
i) | An endorsement providing that such insurance as is afforded under policy of Tenant’s contractor is primary insurance as respects Landlord and that any other insurance maintained by Landlord is excess and noncontributing with the insurance required hereunder. |
No endorsement limiting or excluding a required coverage is permitted. CLAIMS-MADE COVERAGE IS NOT ACCEPTABLE.
3. Business Auto Liability Insurance for an amount of $1,000,000 combined single limit for bodily injury and/or property damage liability including:
a) | Owned Autos, |
b) | Hired or Borrowed Autos, |
c) | Nonowned Autos, and |
d) | An endorsement affording 30 days written notice of cancellation to Landlord and Landlord’s lender in event of cancellation or material reduction in coverage. |
4.Tenant shall carry (or cause Tenant’s contractor to carry) “Builder’s All Risk” insurance or Course of Construction Insurance under Tenant’s property policy in an amount equal to the estimated total cost, covering any such tenant improvements (as distinct from the Tenant Improvement Work) installed by or on behalf of Tenant,
for the full replacement cost thereof at the time of loss, and including coverage for materials destined for incorporation into such tenant improvements that are stored away from the worksite or are in transit. Such form of insurance coverage shall be acceptable to Landlord to insure the scope of the work to be performed.
A certificate and endorsements affording evidence of the above requirements must be delivered to Landlord before Tenant’s contractor performs any work at or prepares or delivers materials to the site of construction.
Tenant shall require its contractor to require its subcontractors to provide insurance where Tenant’s contractor would be required to carry insurance under this insurance section and to be responsible for obtaining the appropriate certificates or other evidence of insurance.
Tenant’s contractor shall maintain all of the foregoing insurance coverage in force until the work under this Improvement Agreement being performed by Tenant is fully completed and accepted except as to 2c, (Products and Completed Operation Coverage), which is to be maintained for one (1) year following completion of such work and acceptance by Landlord and Tenant.
All insurance, except Workers’ Compensation, maintained by Tenant’s contractor and its subcontractors shall preclude subrogation claims by the insurer against anyone insured thereunder.
The requirements for the foregoing insurance shall not derogate from the provisions for indemnification of Landlord by Tenant under the “indemnity” provisions of Paragraph 8.4 of the Lease.
If the Tenant fails to secure and maintain the required insurance from Tenant’s contractor, the Landlord shall have the right (without any obligation to do so, however) to secure same in the name and for the account of the Tenant’s contractor in which event the Tenant shall pay the cost thereof and shall furnish upon demand, all information that may be required in connection therewith. Further, such failure to secure and maintain the required insurance shall constitute a Default by Tenant under the Lease and Landlord shall be entitled to immediately have all tenant improvement work cease.
6.2 Safety Rules. If Tenant constructs or installs any tenant improvements in the Premises, Tenant and Tenant’s contractors shall abide by all safety and construction rules and regulations of Landlord, and all work and deliveries shall be scheduled through Landlord. All Tenant’s materials, work, installations and decorations of any nature brought upon or installed in the Premises before the Commencement Date of the Lease shall be at Tenant’s risk, and neither Landlord nor any party acting on Landlord’s behalf shall be responsible for any damage thereto or loss, theft or destruction thereof. Tenant shall award its contracts and conduct its activities hereunder in a manner consistent with Landlord’s contractor’s labor agreement affecting the Building.
6.3 Faulty Tenant Improvement Work. Tenant shall reimburse Landlord for any extra expenses actually incurred by Landlord by reason of faulty work done by Tenant or its contractors (as reasonably determined by Landlord), or by reason of delays caused by such work, or by reason of cleanup which fails to comply with Landlord’s rules and regulations.
6.4 Signs. Tenant’s contractors shall not post any signs other than those required by law in connection with the construction of any improvements by or on behalf of Tenant on any part of the Premises.
6.5. Hiring of Contractors to be Approved by Landlord. If Tenant elects to perform, or cause to be performed, any work in the Premises prior to the Commencement Date of the Lease, then Tenant’s contractors
and subcontractors performing any such work shall be licensed in California (to the extent licensing is required for such work) and shall otherwise be subject to the prior written consent of Landlord (which consent shall not be unreasonably withheld, conditioned or delayed). The foregoing requirements shall apply to all work performed in the Premises by Tenant or its contractors or subcontractors, including, but not limited to, installation of telephone and/or telecommunications equipment, electrical devices and attachments, and all installations (other than Tenant Improvement Work) affecting floors, walls, woodwork, trim, windows, ceilings, equipment, or any other physical portion of the Premises. All materials and workmanship used in the construction by Tenant or Tenant’s contractors or subcontractors of any improvements in the Premises shall be of a quality that is at least Building Standard. If Tenant is to perform, or cause to be performed, any work in the Premises prior to the Commencement Date, Tenant shall give Landlord at least one (1) business days prior written notice of the same so that Landlord has sufficient time to post a notice of non-responsibility with respect to such Tenant work.
6.6 No Warranty. Landlord’s supervision and/or approval of any contractor selected by Tenant or any contractor’s work performed, or caused to be performed, by Tenant shall not under any circumstances constitute a warranty or representation that such work was properly performed or designed or create any liability for payment for such work by Landlord. Rather, Tenant acknowledges that such supervision by Landlord, regardless of whether Landlord earns a fee for same, is for the sole benefit of Landlord and the Premises, Building and Land.
6.7. Tenant’s Liabilities. Landlord shall have no liability for any loss of or damage to any of Tenant’s or Tenant’s contractors’ fixtures or property installed or left in the Premises, and Tenant shall be fully responsible for same. Tenant shall be responsible for the prompt removal of all rubbish and refuse left by Tenant’s contractors and by the delivery of Tenant’s personal property into the Premises. Tenant shall be liable for the repair of any damage to the Tenant Improvement Work to the extent such damage is caused by Tenant or any of its agents, employees, contractors, subcontractors or invitees during their entry into the Premises.
7. DELAY.
7.1 Force Majeure Delays. The term “Force Majeure Delay” shall mean any delay in the completion of the Tenant Improvement Work which is attributable to: (1) strike, lockout, or other labor or industrial disturbance, civil disturbance, judicial order, governmental rule or regulation, act of public enemy, war, riot, sabotage, blockade, embargo, inability to secure customary materials or supplies; (2) inability to secure building permits and approvals; (3) delay in completing the construction of the Tenant Improvement Work despite Landlord’s diligent efforts to complete same, because of changes in any laws subsequent to the execution date hereof or changes in the interpretation of any such law by the applicable building department; or (4) lightning, earthquake, fire, storm, hurricane, tornado, flood, washout, explosion, or any other cause beyond the reasonable control or mitigation of Landlord.
7.2 Tenant Delay. The term “Tenant Delay” shall mean, with respect to the completion of the Tenant Improvement Work, delay which is attributable to any of the following: (1) actual delay in the giving of authorizations or approvals by Tenant or in the selection of any materials or colors of paint or carpet (to the extent Tenant is expressly granted under this Improvement Agreement the right to select any such materials (provided that Tenant shall have the right to select the color(s) of the paint and carpet in accordance with the last sentence of Paragraph 4 above); (2) the negligent or willfully wrongful acts or failures to act, of Tenant, its agents, or contractors, where such acts or failures to act actually delay the completion of the Tenant Improvement Work; (3) material interference by Tenant, its agents, or contractors with the completion of Tenant Improvement Work, including delays resulting from entry into the Premises by such persons as contemplated in Paragraph 6 above or pursuant to Paragraph 3.3 of the Lease; (4) any extension of time required to complete the Tenant Improvement Work because of changes to
the Approved Plans or the Tenant Improvement Work requested by Tenant, including any delays caused by requests for Extra Work pursuant to Paragraph 5 above; (5) delay attributable to Tenant’s requirement for materials, components, finishes or improvements which are not available in a commercially reasonable time given the anticipated date of substantial completion of the Tenant Improvement Work and which are different from, or not included in, Landlord’s standard improvement package items for the Building; (6) a breach by Tenant of any of the material terms of this Improvement Agreement or the Lease; or (7) any other event which is expressly identified as a Tenant Delay under this Improvement Agreement or in the Lease.
8. REPRESENTATIONS AND WARRANTIES. Landlord’s general contractor responsible for constructing or installing the Tenant Improvement Work shall warrant the Tenant Improvement Work (but not any equipment included in the Tenant Improvement Work or any material or equipment that Landlord or its general contractor may reuse in the Premises, such as occupancy sensors, HVAC equipment, or other reusable wear and tear items) against defects in material and workmanship for a period of twelve (12) months from the Commencement Date. Said warranty extends only to Tenant and shall be effective only as to defects of which Landlord and the general contractor are notified in writing by Tenant within the warranty period. The general contractor’s sole obligation shall be either to repair or replace, as the general contractor and Landlord’s architect determine appropriate, any defect which is warranted hereunder. Any repair or replacement is warranted against defects in material and workmanship for a period ending on the date said warranty expires with regard to the original construction to which the repair or replacement was made. Tenant agrees that Landlord, Landlord’s general contractor and Landlord’s architect shall not be liable for consequential damages arising as a result of a defect warranted hereunder. Tenant covenants that it will not pursue any remedy against Landlord, Landlord’s general contractor or Landlord’s architect as a result of such consequential damages, if any. Landlord shall inform Tenant of all written equipment warranties existing in favor of Landlord which affect any equipment included in the Tenant Improvement Work. Landlord shall reasonably cooperate with Tenant in enforcing such warranties.
The warranties given or to be given set forth in this Paragraph 8 are all of the warranties of Landlord, Landlord’s general contractor and Landlord’s architect with respect to the Tenant Improvement Work. LANDLORD, LANDLORD’S GENERAL CONTRACTOR AND LANDLORD’S ARCHITECT MAKE NO OTHER EXPRESS OR IMPLIED WARRANTY WITH RESPECT TO THE CONSTRUCTION OR OPERATION OF THE TENANT IMPROVEMENT WORK INCLUDING, WITHOUT LIMITATION, ANY WARRANTIES OF FITNESS FOR PURPOSE OR MERCHANTABILITY.
Tenant covenants that Tenant will not pursue any action against Landlord, Landlord’s general contractor or Landlord’s architect if the Tenant Improvement Work made in accordance with the Approved Plans fails to meet Tenant’s purpose. Landlord makes no warranty, express or implied, of fitness for purpose or merchantability, of any equipment or fixtures included in the Premises. Tenant acknowledges that Tenant shall rely upon the manufacturer of such equipment or fixtures for any warranty with respect thereto.
[END OF TEXT OF IMPROVEMENT AGREEMENT]
EXHIBIT C-1
INDEX SHEET

EXHIBIT C-2
TENTATIVE CONSTRUCTION SCHEDULE

EXHIBIT D
COMMENCEMENT DATE LETTER
Re: | Lease dated March ____, 2018, between Orchard Parkway San Jose, LLC, a California limited liability company, as Landlord, and Calix, Inc., as Tenant, concerning that premises, consisting of approximately 64,991 rentable square feet, more or less, consisting of the entire rentable areas of the building having a street address of 2777 Orchard Parkway, San Jose, California (the “Premises”). |
Ladies and Gentlemen:
In accordance with the subject Lease, we wish to advise and/or confirm as follows:
1. Landlord delivered possession of the Premises to Tenant on _________________, with all improvements and work, if any, completed in a good and workmanlike manner and otherwise in the condition required under the Lease and Tenant accepted possession of the Premises.
2. The Commencement Date of the Lease Term for the Premises is _____________, 201_ (the “Commencement Date”) and the initial Lease Term for the Premises expires on ________________, 202_ (the “Ending Date”), unless sooner terminated according to the terms of the Lease.
3. That in accordance with the Lease, monthly base Rent shall commence to accrue on ________________, 2018 (except that monthly base Rent shall be conditionally abated for the first three (3) full months of the Lease Term in accordance with (and subject to) the provisions of Paragraph 1.8 of the Lease), and Tenant’s obligation to pay Tenant’s percentage share of Operating Expenses (as described below) shall commence to accrue on the Commencement Date. The Converted Amount (as defined in Paragraph 1.8) is the amount of __________________________ Dollars ($__,___.00).
4. Tenant’s percentage share of Operating Expenses is one hundred percent (100%) as to the Building and ___________________ percent (____.00%) as to the Project.
5. Each party represents and warrants to the other that it is duly authorized to enter into this document and that the person signing on its behalf is duly authorized to sign on behalf of such party.
LANDLORD:
ORCHARD PARKWAY SAN JOSE, LLC,
a California limited liability company
By: ________________________
Name: ________________________
Its: ________________________
ACCEPTED AND AGREED:
TENANT:
CALIX, INC.,
a Delaware corporation
By:
Name:
Its:
EXHIBIT E
INTENTIONALLY OMITTED
[to be attached]
EXHIBIT F
LEGAL DESCRIPTION OF LAND

EXHIBIT G
FORM OF SIGHT DRAFT
DATE: _______________ REF. NO. ___________________
AT SIGHT OF THIS DRAFT
PAY TO THE ORDER OF US$_________________
US DOLLARS _____________________________________________________________________
DRAWN UNDER SILICON VALLEY BANK, SANTA CLARA, CALIFORNIA, IRREVOCABLE STANDBY
LETTER OF CREDIT NUMBER NO. _______________________ DATED ___________________
TO: SILICON VALLEY BANK
3003 TASMAN DRIVE _______________________________
SANTA CLARA, CA 95054 (BENEFICIARY'S NAME)
...............................................................
Authorized Signature
GUIDELINES TO PREPARE THE DRAFT
1. | DATE: ISSUANCE DATE OF DRAFT. |
2. | REF. NO.: BENEFICIARY'S REFERENCE NUMBER, IF ANY. |
3. | PAY TO THE ORDER OF: NAME OF BENEFICIARY AS INDICATED IN THE L/C (MAKE |
SURE BENEFICIARY ENDORSES IT ON THE REVERSE SIDE).
4. | US$: AMOUNT OF DRAWING IN FIGURES. |
5. | USDOLLARS: AMOUNT OF DRAWING IN WORDS. |
6. | LETTER OF CREDIT NUMBER: SILICON VALLEY BANK'S STANDBY L/C NUMBER THAT PERTAINS TO THE DRAWING. |
7. | DATED: ISSUANCE DATE OF THE STANDBY L/C. |
8. | BENEFICIARY'S NAME: NAME OF BENEFICIARY AS INDICATED IN THE L/C. |
9. | AUTHORIZED SIGNATURE: SIGNED BY AN AUTHORIZED SIGNER OF BENEFICIARY. |
IF YOU HAVE QUESTIONS RELATED TO THIS STANDBY LETTER OF CREDIT PLEASE CONTACT US AT ______________.
ALL THE DETAILS SET FORTH HEREIN IN THIS LETTER OF CREDIT DRAFT IS APPROVED BY APPLICANT. IF THERE IS ANY DISCREPANCY BETWEEN THE DETAILS OF THIS LETTER OF CREDIT DRAFT AND THE LETTER OF CREDIT APPLICATION, BETWEEN APPLICANT AND SILICON VALLEY BANK, THE DETAILS HEREOF SHALL PREVAIL.”
________________________________________ ________________
APPLICANT’S SIGNATURE(S) DATE
NET LEASE AGREEMENT
by and between
CALIX, INC.
a Delaware corporation
(“Tenant”)
and
ORCHARD PARKWAY SAN JOSE, LLC
a California limited liability company
(“Landlord”)